62 000 000 Р 777 600 $ или 672 500

Информация об помещении

1
Этаж

Состояние и оснащение

Количество этажей
1
Развернуть
Агент
+7 (931) 554-88-70
Начать чат с агентом

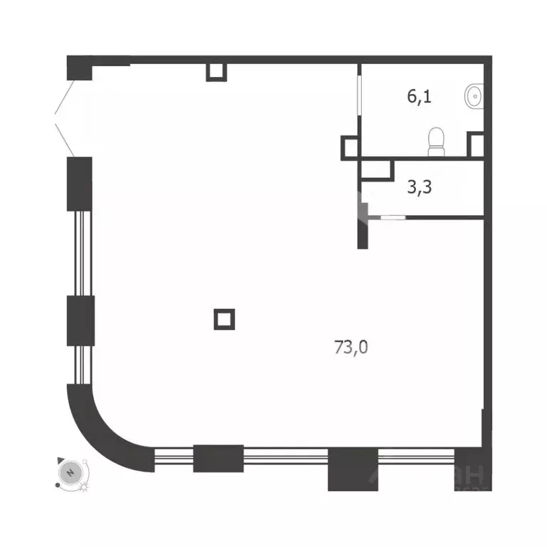
Помещение свободного назначения в Москва Дорожная ул., 54К4С19 (490 м)

Предлагаем купить помещение под производство, фасовку или автосервис как готовый арендный бизнес на охраняемой территории. Удобная локация. - текущий арендатор - автосервис BMW- высота потолков 6м- въездные ворота- чистый арендный поток - 30 квт- отопление (идет монтаж стационарного отопления), все коммуникации подведеныОперативный показ, звоните

Читать полностью
    Позвонить Написать
    62 000 000 Р777 600 $ или 672 500
    Агент
    +7 (931) 554-88-70
    Начать чат с агентом
    Похожие предложения
    Помещение свободного назначения в Москва Лыткаринская ул., 2АС1 (201 ... - Фото 1
    Помещение свободного назначения в Москва Лыткаринская ул., 2АС1 (201 ... - Фото 2
    Арт.Продается отдельно стоящее здание, свободного назначения, площадью 201 кв.м., расположенное на земельном участке, площадью 30 соток, огороженная территория, в пешей доступности метро Косино, и станция Ухтомская. объект расположен к коттеджной зоне...
    • 1/1 эт.
    63 000 000 Р
    Агент
    +7 (981) Показать номер
    Посмотреть контакты
    Помещение свободного назначения в Москва 3-я оч., Шагал жилой ... - Фото 1
    Помещение свободного назначения в Москва 3-я оч., Шагал жилой ... - Фото 2
    1083457. Предлагаем помещение свободного назначения в ЖК Shagal , площадью 82,4 кв. м, расположенное на первом этаже 13-этажного жилого дома. 3 очередь, 3 этап, корпус 6. Без комиссии для покупателя.Преимущества объекта:-в престижном Даниловском районе...
    • 1/13 эт.
    61 109 145 Р
    Агент
    +7 (938) Показать номер
    Посмотреть контакты
    Помещение свободного назначения в Москва 3-я Гражданская ул., 1 (89 м) - Фото 1
    Помещение свободного назначения в Москва 3-я Гражданская ул., 1 (89 м) - Фото 2
    1065307. Предлагаем помещение свободного назначения в ЖК Sokolinn Park , площадью 88.5 кв. м, расположенное на первом этаже 22-этажного жилого дома. Без комиссии для покупателя.Преимущества объекта:-первая линия ул. 3-я Гражданская;-ЖК состоит из 2 корпусов...
    • 1/22 эт.
    62 847 660 Р
    Агент
    +7 (938) Показать номер
    Посмотреть контакты
    Помещение свободного назначения в Москва Юту жилой комплекс (93 м) - Фото 1
    Помещение свободного назначения в Москва Юту жилой комплекс (93 м) - Фото 2
    1000567. Предлагаем помещение свободного назначения в ЖК ЮТУ , площадью 92.7 кв. м, расположенное на первом этаже 29-этажного жилого дома. Без комиссии для покупателя.Преимущества объекта:-первая линия ул. Лодочная;-ЖК состоит из 2 башен переменной этажности...
    • 1/29 эт.
    61 645 500 Р
    Агент
    +7 (938) Показать номер
    Посмотреть контакты
    Помещение свободного назначения в Москва Лодочная ул., 27К2 (103 м) - Фото 1
    979239. Предлагаем помещение свободного назначения в ЖК ЮТУ , площадью 102.6 кв. м, расположенное на первом этаже 29-этажного жилого дома. Без комиссии для покупателя.Преимущества объекта:-первая линия ул. Лодочная;-ЖК состоит из 2 башен переменной этажности...
    • 1/29 эт.
    62 441 600 Р
    Агент
    +7 (938) Показать номер
    Посмотреть контакты

    Не нашли подходящего объявления?

    Оставьте заявку, и наши риэлторы подберут псн в районе Москвы

    (0)