62 847 660 Р 788 300 $ или 681 700

Информация об помещении

1
Этаж

Состояние и оснащение

Количество этажей
22
Развернуть
Агент
+7 (938) 656-74-88
Начать чат с агентом

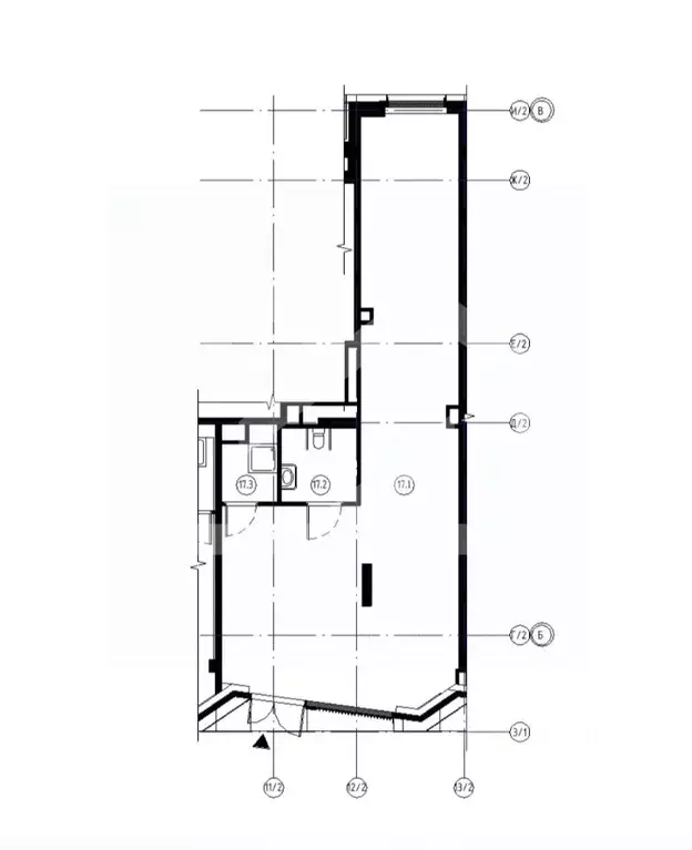
Помещение свободного назначения в Москва 3-я Гражданская ул., 1 (89 м)

1065307. Предлагаем помещение свободного назначения в ЖК Sokolinn Park , площадью 88.5 кв. м, расположенное на первом этаже 22-этажного жилого дома. Без комиссии для покупателя.Преимущества объекта:-первая линия ул. 3-я Гражданская;-ЖК состоит из 2 корпусов переменной этажности, рассчитанных на 211 квартир;-5 минут на автомобиле от станции метро Преображенская площадь ;-удобная транспортная доступность: 1.5 км до Белокаменного шоссе, 1.8 км до Богородского и Открытого шоссе, 4.3 км до Щёлковского шоссе и СВХ;-плотный жилой массив;-развитая инфраструктура района;-высокий автомобильный и пешеходный трафик;-отлично просматривается, находится в легком доступе для потенциальных клиентов;-гибкая планировка, позволяющая адаптировать пространство под различные нужды;-подходит под любой вид деятельности: ритейл, кофейня, салон, аптека, офис, услуги;-витринное остекление;-возможность размещения вывески;-наземная парковка.Технические параметры объекта:-отдельный вход с улицы.-электрическая мощность: 10 кВт.Ввод в эксплуатацию: II квартал 2028 года. Свяжитесь с нами для получения дополнительной информации

Читать полностью
    Позвонить Написать
    62 847 660 Р788 300 $ или 681 700
    Агент
    +7 (938) 656-74-88
    Начать чат с агентом
    Похожие предложения
    Помещение свободного назначения в Москва 3-я Гражданская ул., 1 (89 м) - Фото 1
    Помещение свободного назначения в Москва 3-я Гражданская ул., 1 (89 м) - Фото 2
    1065307. Предлагаем помещение свободного назначения в ЖК Sokolinn Park , площадью 88.5 кв. м, расположенное на первом этаже 22-этажного жилого дома. Без комиссии для покупателя.Преимущества объекта:-первая линия ул. 3-я Гражданская;-ЖК состоит из 2 корпусов...
    • 1/22 эт.
    62 847 660 Р
    Агент
    +7 (938) Показать номер
    Посмотреть контакты
    Помещение свободного назначения в Москва 3-я Гражданская ул., 1 (89 м) - Фото 1
    Помещение свободного назначения в Москва 3-я Гражданская ул., 1 (89 м) - Фото 2
    1065307. Предлагаем помещение свободного назначения в ЖК Sokolinn Park , площадью 88.5 кв. м, расположенное на первом этаже 22-этажного жилого дома. Без комиссии для покупателя.Преимущества объекта:-первая линия ул. 3-я Гражданская;-ЖК состоит из 2 корпусов...
    • 1/22 эт.
    62 847 660 Р
    Агент
    +7 (938) Показать номер
    Посмотреть контакты
    Помещение свободного назначения в Москва Жилой комплекс Преображенская ... - Фото 1
    Помещение свободного назначения в Москва Жилой комплекс Преображенская ... - Фото 2
    В проекте премиум-класса Преображенская площадь предлагаются к продаже коммерческие помещения. Потенциальная доходность:Продажа помещения в готовом состоянии- Срок инвестиции 4 года;- Годовая доходность 12 Сдача помещения в аренду- Срок инвестиции 8-10...
    • 1/17 эт.
    63 376 218 Р
    Агент
    +7 (986) Показать номер
    Посмотреть контакты
    Помещение свободного назначения в Москва Жилой комплекс Преображенская ... - Фото 1
    Помещение свободного назначения в Москва Жилой комплекс Преображенская ... - Фото 2
    В проекте премиум-класса Преображенская площадь предлагаются к продаже коммерческие помещения. Потенциальная доходность:Продажа помещения в готовом состоянии- Срок инвестиции 4 года;- Годовая доходность 12 Сдача помещения в аренду- Срок инвестиции 8-10...
    • 1/17 эт.
    63 220 678 Р
    Агент
    +7 (986) Показать номер
    Посмотреть контакты
    Помещение свободного назначения в Москва Лыткаринская ул., 2АС1 (201 ... - Фото 1
    Помещение свободного назначения в Москва Лыткаринская ул., 2АС1 (201 ... - Фото 2
    Арт.Продается отдельно стоящее здание, свободного назначения, площадью 201 кв.м., расположенное на земельном участке, площадью 30 соток, огороженная территория, в пешей доступности метро Косино, и станция Ухтомская. объект расположен к коттеджной зоне...
    • 1/1 эт.
    63 000 000 Р
    Агент
    +7 (981) Показать номер
    Посмотреть контакты

    Не нашли подходящего объявления?

    Оставьте заявку, и наши риэлторы подберут псн в районе Москвы

    (0)