160 000 000 Р 2 031 800 $ или 1 757 700

Информация об помещении

1
Этаж

Состояние и оснащение

Количество этажей
10
Развернуть
Агент
+7 (980) 280-59-30
Начать чат с агентом

Помещение свободного назначения в Москва Кутузовский просп., 35 (149 ...

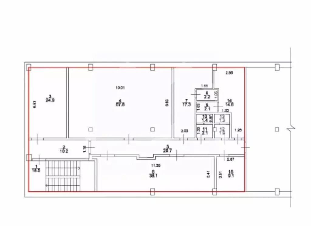
ID 53747 Продается ПСН общей площадью 149 м2, расположенное на первом этаже жилого дома по Кутузовскому проспекту. Помещение с отдельным входом, отличной отделкой, смешанной планировки. Все коммуникации в наличии, электричество 25 кВт. Отличная транспортная доступность, две минуты пешком от станции метро Кутузовская . Отличный пешеходный и автомобильный трафик. Номер в базе: J59175

Читать полностью
    Позвонить Написать
    160 000 000 Р2 031 800 $ или 1 757 700
    Агент
    +7 (980) 280-59-30
    Начать чат с агентом
    Похожие предложения
    Помещение свободного назначения в Москва Рабочая ул., 84С4 (688 м) - Фото 1
    Помещение свободного назначения в Москва Рабочая ул., 84С4 (688 м) - Фото 2
    ПРОДАЖА помещения свободного назначения в креативном кластере Красный путь в ЦАО Помещение площадью 688,2 м2 С отдельным входом Адрес: Рабочая улица 84 стр 4 Историческое здание XIX века.Внутри есть вся необходимая для бизнеса и творчества инфраструктура:Укрепленные...
    • 1/2 эт.
    161 727 000 Р
    Агент
    +7 (923) Показать номер
    Посмотреть контакты
    Помещение свободного назначения в Москва Новочеремушкинская ул., 71/32 ... - Фото 1
    Помещение свободного назначения в Москва Новочеремушкинская ул., 71/32 ... - Фото 2
    Собственник продает коммерческое помещениесвободного назначения — блок 2764.8 кв.м.(суммарная площадь всех блоков — 3939 кв.м.).Объект расположен на первом и втором этажахэлитного жилого комплекса Дом Газпрома .Быстрый выход на сделку Полное сопровождение...
    • 1/21 эт.
    168 256 000 Р
    Агент
    +7 (923) Показать номер
    Посмотреть контакты
    Помещение свободного назначения в Москва Шелепихинская наб., 38А (162 ... - Фото 1
    Помещение свободного назначения в Москва Шелепихинская наб., 38А (162 ... - Фото 2
    Арт.. Продажа коммерческого помещения в ЖК Сидней Сити, корпус 6/3Сроки сдачи: 3 квартал 2027 корпуса 6.1, 6.2, 6.3Стоимость:Цена за 1 м2: Характеристики помещения:общая площадь 162 м2состоит из 2 блоков: 65.8м2 и 96.2м21 этаж2 входа с улицывитринное...
    • 1/1 эт.
    153 900 000 Р
    Агент
    +7 (985) Показать номер
    Посмотреть контакты
    Помещение свободного назначения в Москва ул. Кухмистерова, 20к2 (930 ... - Фото 1
    Помещение свободного назначения в Москва ул. Кухмистерова, 20к2 (930 ... - Фото 2
    Лот: 37678. Предлагаем готовый арендный бизнес ОСЗ 930 м2 с сетевым арендатором сетевой супермаркет Магнит на ул. Кухмистерова, д. 20к2 (10 минут пешком от м. Печатники). Площадь в двух уровнях: первый этаж и подвал, открытая планировка. Отдельный вход...
    • 1/5 эт.
    165 000 000 Р
    Агент
    +7 (986) Показать номер
    Посмотреть контакты
    Помещение свободного назначения в Москва, Москва, Щербинка ш. ... - Фото 1
    Помещение свободного назначения в Москва, Москва, Щербинка ш. ... - Фото 2
    643256. Предлагаем торговое помещение в отдельно стоящем двухэтажном здании с сетевым арендатором Светофор, площадью 1 773 кв. м. 1 этаж и подвал. Без комиссии для покупателя.Преимущества объекта:-пешая доступность от станции МЦД-2 Щербинка (17 минут...
    • 1/2 эт.
    150 000 000 Р
    Агент
    +7 (938) Показать номер
    Посмотреть контакты

    Не нашли подходящего объявления?

    Оставьте заявку, и наши риэлторы подберут псн в районе Москвы

    (0)