165 000 000 Р 2 031 400 $ или 1 758 400

Информация об помещении

1
Этаж

Состояние и оснащение

Количество этажей
5
Развернуть
Агент
+7 (986) 323-87-37
Начать чат с агентом

Помещение свободного назначения в Москва ул. Кухмистерова, 20к2 (930 ...

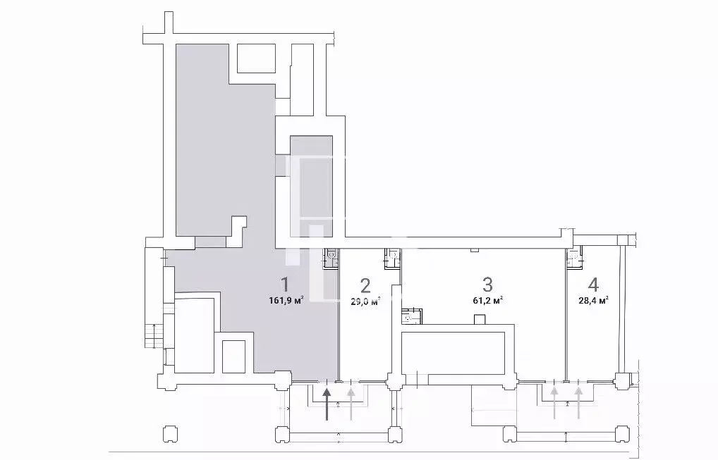
Лот: 37678. Предлагаем готовый арендный бизнес ОСЗ 930 м2 с сетевым арендатором сетевой супермаркет Магнит на ул. Кухмистерова, д. 20к2 (10 минут пешком от м. Печатники). Площадь в двух уровнях: первый этаж и подвал, открытая планировка. Отдельный вход и зона разгрузки. Парковка перед фасадом на 25 м/м. Место для размещения рекламы. Витринное остекление.Арендаторы: сетевой супермаркет Магнит (первый этаж 460 м2), ДДА с 2022 г на 10 лет, МАП или 6 от ТО, подвал - Бильярдный клуб ДДА с 1 янв 2023 год на 5 лет, МАП, антенна Ростелеком (на крыше) -.

Читать полностью
    Позвонить Написать
    165 000 000 Р2 031 400 $ или 1 758 400
    Агент
    +7 (986) 323-87-37
    Начать чат с агентом
    Похожие предложения
    Помещение свободного назначения в Москва Пятницкая ул., 16С1 (78 м) - Фото 1
    Помещение свободного назначения в Москва Пятницкая ул., 16С1 (78 м) - Фото 2
    Лот: 37834. Помещение свободного назначения формата Street Retail в ЦАО Москвы. 2 минуты пешком до станции метро Новокузнецкая. Расположено на первой линии Пятницкой улицы. Сложившееся торговое окружение. Трафик:чел/час. Подойдёт для любого вида деятельности....
    • 1/5 эт.
    180 000 000 Р
    Агент
    +7 (986) Показать номер
    Посмотреть контакты
    Помещение свободного назначения в Москва Новослободская ул., 57/65 ... - Фото 1
    Помещение свободного назначения в Москва Новослободская ул., 57/65 ... - Фото 2
    Арт.Предлагается в продажу помещение , общей площадью 502м2 с высоким пешеходным и автомобильным трафиком .Помещение имеет два отдельных входа с улицы и со двора. Рядом общегородская бесплатная парковка и во дворе общедомовая парковка .Локация:Находится...
    • 1/5 эт.
    164 000 000 Р
    Агент
    +7 (916) Показать номер
    Посмотреть контакты
    Помещение свободного назначения в Москва Долгоруковская ул., 40 (162 ... - Фото 1
    Помещение свободного назначения в Москва Долгоруковская ул., 40 (162 ... - Фото 2
    К покупке предлагается помещение свободного назначения на улице Долгоруковская. Шаговая доступность от ст. метро Новослободская — 1 минута пешком.Отличная пешеходная и транспортная доступность. Высокий рекламный потенциал и возможность размещения вывесок...
    • 1/13 эт.
    171 600 000 Р
    Агент
    +7 (985) Показать номер
    Посмотреть контакты
    Помещение свободного назначения в Москва Пятницкая ул., 16С1 (78 м) - Фото 1
    Помещение свободного назначения в Москва Пятницкая ул., 16С1 (78 м) - Фото 2
    Лот: 37560. Помещение свободного назначения формата Street Retail в ЦАО Москвы. 2 минуты пешком до станции метро Новокузнецкая. Расположено на первой линии Пятницкой улицы. Сложившееся торговое окружение. Трафик:чел/час. Подойдёт для любого вида деятельности....
    • 1/5 эт.
    180 000 000 Р
    Агент
    +7 (986) Показать номер
    Посмотреть контакты
    Помещение свободного назначения в Московская область, Солнечногорск ... - Фото 1
    Помещение свободного назначения в Московская область, Солнечногорск ... - Фото 2
    Продажа производственно-складского помещения 1304 кв.м в ЕсиповоВысота: 8 мНагрузка на пол: 4 т/кв.мСрок сдачи 4 квартал 2025ВАЖНОПрямая продажа от собственникаПродажа по УСНОСНОВНЫЕ ХАРАКТЕРИСТИКИ- Площадь: 1304 кв.м- Температура: Сухой- Возможность...
    • 1/3 эт.
    169 520 000 Р
    Агент
    +7 (985) Показать номер
    Посмотреть контакты

    Не нашли подходящего объявления?

    Оставьте заявку, и наши риэлторы подберут псн в районе Москвы

    (0)