40 000 000 Р 476 200 $ или 411 100

Информация об помещении

цоколь
Этаж

Состояние и оснащение

Количество этажей
9
Развернуть
Агент
+7 (967) 843-17-40
Начать чат с агентом

Помещение свободного назначения в Москва Лобненская ул., 6 (300 м)

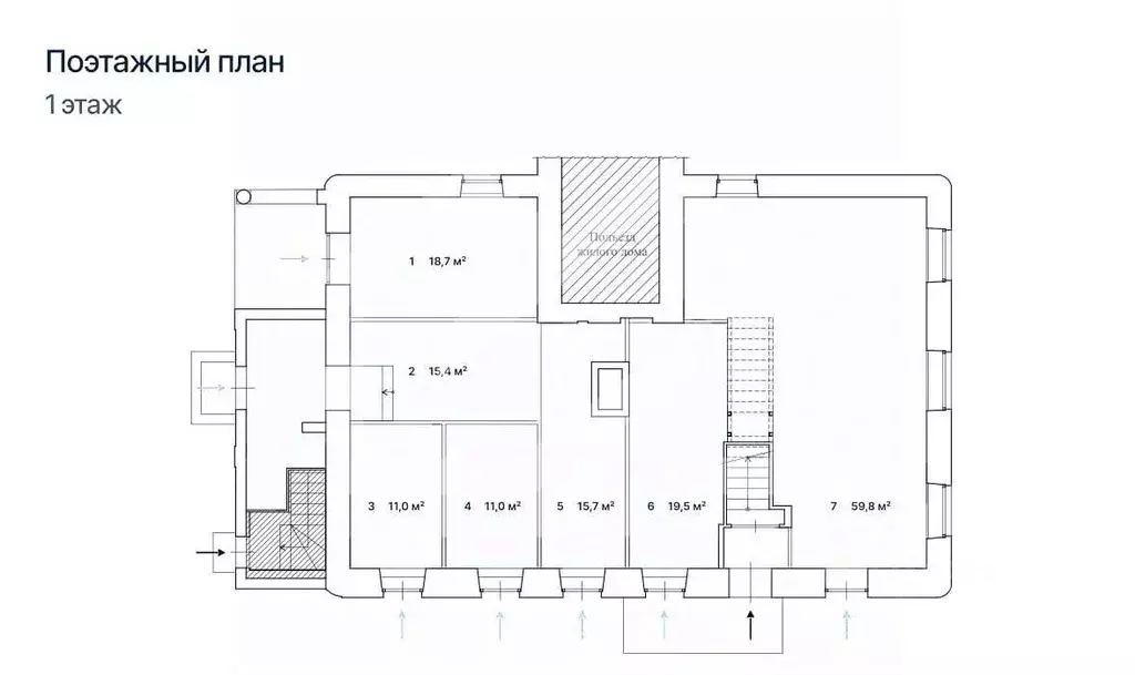
Арт.Продается 300 кв.м. (ПСН) помещение свободного назначения в 15 минутах пешком от метро Лианозово, в 200 метров от Дмитровского шоссе. Шикарный подъезд и парковочные места. Возможность для различной реализации Ваших бизнес идей. В помешение 16 кабинетов и общая кухня ( тоже с мокрой точкой и уже оборудована всем необходимым ) . В кабинеты заведены мокрые точки и канализация , установлены раковины , можно в кабинеты добавить душевые кабины .Помешение цокольное , над нами коммерция первый этаж . Топовое место возле ТЦ. Отдельный вход с торца здания , можно разгружать грузовые фуры , оживленная улица Уже заехали первые арендаторы Потенциальный МАП 550 000. Окупаемость 6 лет По мере наполнения цена будет рости Причина продажа , вложения в более крупный проект Свежий ремонт, без долгов и обременений.Оперативный показ. Быстрый выход на сделку.

Читать полностью
    Позвонить Написать
    40 000 000 Р476 200 $ или 411 100
    Агент
    +7 (967) 843-17-40
    Начать чат с агентом
    Похожие предложения
    Помещение свободного назначения в Москва Лобненская ул., 6 (300 м) - Фото 1
    Помещение свободного назначения в Москва Лобненская ул., 6 (300 м) - Фото 2
    Продажа арендного бизнеса — 16.5 годовых, окупаемость 6 летПричина продажи: собственник переходит в крупный проектОбъект недвижимости:Помещение свободного назначения, разделенное на 16 кабинетовПодойдет для таких сфер как:ПВЗБьюти-салоныЗвукозаписьОфисыМастерскиеМассажные...
    • -1/9 эт.
    40 000 000 Р
    Агент
    +7 (985) Показать номер
    Посмотреть контакты
    Помещение свободного назначения в Москва ул. Коминтерна, 4 (270 м) - Фото 1
    Помещение свободного назначения в Москва ул. Коминтерна, 4 (270 м) - Фото 2
    Продается помещение свободного назначения на 1 этаже в жилом доме В класса, который находится по адресу: ул. Коминтерна, д. 4. Без комиссии для Покупателя ЛОКАЦИЯ:- Пешая доступность от станций метро Бабушкинская, Свиблово. - Удобный выезд на Ярославское...
    • 1/5 эт.
    39 000 000 Р
    Агент
    +7 (989) Показать номер
    Посмотреть контакты
    Помещение свободного назначения в Москва Бауманская ул., 33/2С3 (19 м) - Фото 1
    Помещение свободного назначения в Москва Бауманская ул., 33/2С3 (19 м) - Фото 2
    1112590. Предлагаем к приобретению торговое помещение, площадью 15,7 кв. м., расположенное на первом этаже жилого дома. Без комиссии для покупателя.Преимущества объекта: -в 65 метрах станция метро Бауманская;-центр плотного жилого массива, премиальная...
    • 1/4 эт.
    39 600 000 Р
    Агент
    +7 (938) Показать номер
    Посмотреть контакты
    Помещение свободного назначения в Москва Родные кварталы жилой ... - Фото 1
    Помещение свободного назначения в Москва Родные кварталы жилой ... - Фото 2
    1094933. Предлагаем к приобретению помещение свободного назначения, площадью 123,5 кв. м., расположенное на первом этаже жилого дома в ЖК Родные кварталы . Без комиссии для покупателя.Преимущества объекта:-первая линия;-ЖК состоит из трёх домов и 8 корпусов...
    • 1/10 эт.
    40 587 040 Р
    Агент
    +7 (938) Показать номер
    Посмотреть контакты
    Помещение свободного назначения в Москва бул. Скандинавский, 17 (158 ... - Фото 1
    Помещение свободного назначения в Москва бул. Скандинавский, 17 (158 ... - Фото 2
    713680. Предлагаем к приобретению торговое помещение, площадью 157,6 кв. м, расположенное на первом этаже жилого дома в ЖК Скандинавия, корпус 8.4. Без комиссии для покупателя.Преимущества объекта: комплекс состоит из 100 домов, этажностью 7-26 этажей;население...
    • 1/12 эт.
    41 000 000 Р
    Агент
    +7 (938) Показать номер
    Посмотреть контакты

    Не нашли подходящего объявления?

    Оставьте заявку, и наши риэлторы подберут псн в районе Москвы

    (0)