39 600 000 Р 471 400 $ или 407 000

Информация об помещении

1
Этаж

Состояние и оснащение

Количество этажей
4
Развернуть
Агент
+7 (938) 656-74-88
Начать чат с агентом

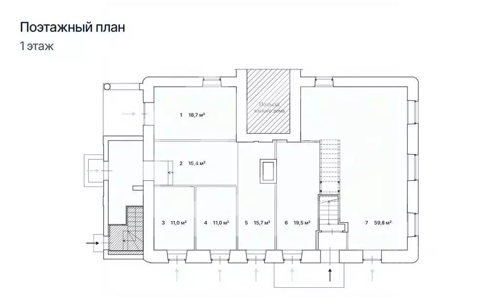
Помещение свободного назначения в Москва Бауманская ул., 33/2С3 (19 м)

1112590. Предлагаем к приобретению торговое помещение, площадью 15,7 кв. м., расположенное на первом этаже жилого дома. Без комиссии для покупателя.Преимущества объекта: -в 65 метрах станция метро Бауманская;-центр плотного жилого массива, премиальная локация;-сложившееся торговое окружение ЦАО;-сверхинтенсивный автомобильный и пешеходный трафик;-планировка — свободная (сетка колонн);-помещения подготовлены под чистовую отделку;-место для вывески;-парковка на улице;-рядом остановки общественного транспорта.Технические параметры объекта:-отдельная входная группа с фасада в каждый блок;-высота потолков: 3,25 м.Свяжитесь с нами для получения дополнительной информации

Читать полностью
    Позвонить Написать
    39 600 000 Р471 400 $ или 407 000
    Агент
    +7 (938) 656-74-88
    Начать чат с агентом
    Похожие предложения
    Помещение свободного назначения в Москва Бауманская ул., 33/2С3 (18 м) - Фото 1
    Помещение свободного назначения в Москва Бауманская ул., 33/2С3 (18 м) - Фото 2
    Арт.ОписаниеПродажа помещения свободного назначения 18,1 кв.м.Высота потолков — 3,25 м, мокрая точка, современная входная группа, вывеска, свободная планировка. Отлично подойдут под любой вид деятельности: торговое помещение, кафе, аптека, салон красоты,...
    • 1/3 эт.
    39 600 000 Р
    Агент
    +7 (916) Показать номер
    Посмотреть контакты
    Помещение свободного назначения в Москва Бауманская ул., 33/2С3 (19 м) - Фото 1
    Помещение свободного назначения в Москва Бауманская ул., 33/2С3 (19 м) - Фото 2
    1112590. Предлагаем к приобретению торговое помещение, площадью 15,7 кв. м., расположенное на первом этаже жилого дома. Без комиссии для покупателя.Преимущества объекта: -в 65 метрах станция метро Бауманская;-центр плотного жилого массива, премиальная...
    • 1/4 эт.
    39 600 000 Р
    Агент
    +7 (938) Показать номер
    Посмотреть контакты
    Помещение свободного назначения в Москва Северный ао, Соул жилой ... - Фото 1
    Помещение свободного назначения в Москва Северный ао, Соул жилой ... - Фото 2
    1090763. Предлагаем помещение свободного назначения в ЖК бизнес-класса SOUL , площадью 59.3 кв. м, расположенное на первом этаже 23-этажного жилого дома. Корпус: Unique. Этап 3. Без комиссии для покупателя.Преимущества объекта:-ЖК состоит из 9 корпусов...
    • 1/23 эт.
    39 550 728 Р
    Агент
    +7 (938) Показать номер
    Посмотреть контакты
    Помещение свободного назначения в Москва Малый Гнездниковский пер., 10 ... - Фото 1
    Помещение свободного назначения в Москва Малый Гнездниковский пер., 10 ... - Фото 2
    Добрый день Продаем помещение с АРЕНДАТОРОМ и с ОТДЕЛЬНЫМ ВХОДОМ в ЖИЛОМ доме на 1 этаже рядом ул. Тверская ПРОДАЖА БЕЗ КОМИССИИ Описание и фотографии соответствуют действительности.Если ВЫ сейчас продаете свою недвижимость, мы можем сразу КУПИТЬ ЕЁ :)Безопасно...
    • 1/4 эт.
    39 999 000 Р
    Агент
    +7 (986) Показать номер
    Посмотреть контакты
    Продажа ПСН, м. Водный стадион, ул. Михалковская - Фото 1
    Продажа ПСН, м. Водный стадион, ул. Михалковская - Фото 2
    Продажа ПСН, м. Водный стадион, ул. Михалковская - Фото 3
    Продажа ПСН, м. Водный стадион, ул. Михалковская - Фото 4
    Продажа ПСН, м. Водный стадион, ул. Михалковская - Фото 5
    Продажа ПСН, м. Водный стадион, ул. Михалковская - Фото 6
    Продажа ПСН, м. Водный стадион, ул. Михалковская - Фото 7
    Продажа ПСН, м. Водный стадион, ул. Михалковская - Фото 8
    Продажа ПСН, м. Водный стадион, ул. Михалковская - Фото 9
    Продажа ПСН, м. Водный стадион, ул. Михалковская - Фото 10
    Продажа ПСН, м. Водный стадион, ул. Михалковская - Фото 11
    Продажа ПСН, м. Водный стадион, ул. Михалковская - Фото 12
    Продажа ПСН, м. Водный стадион, ул. Михалковская - Фото 13
    Продажа ПСН, м. Водный стадион, ул. Михалковская - Фото 14
    Продажа ПСН, м. Водный стадион, ул. Михалковская - Фото 15
    Продажа ПСН, м. Водный стадион, ул. Михалковская - Фото 16
    общая площадь 420м², полезная площадь 420м²

    Арендный бизнес. Продажа помещения площадью 420 м2, расположенного в Бизнес-центре класса В+, в районе Коптево, САО. БЦ находится в пешей доступности от м.Водный стадион (10 минут пешком). Помещение - на цокольном этаже 8-ми этажного здания Бизнес парка,...
    • 420 м²
    • -1-й эт.
    40 000 000 Р
    Агент
    +7 (903) Показать номер
    Посмотреть контакты

    Не нашли подходящего объявления?

    Оставьте заявку, и наши риэлторы подберут псн в районе Москвы

    (0)