209 300 000 Р 2 491 700 $ или 2 151 300

Информация об помещении

8
Этаж

Состояние и оснащение

Количество этажей
13
Развернуть
Агент
+7 (938) 656-74-88
Начать чат с агентом

Помещение свободного назначения в Москва Холодильный пер., 3к1 (419 м)

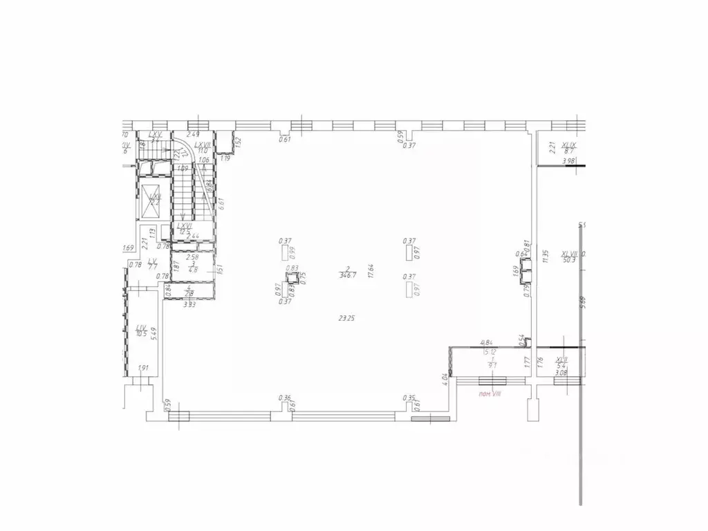
838707. Предлагаем офисное помещение площадью 418.6 кв. м, расположенное на 8 этаже бизнес-центра Башня Рябов Преимущества объекта:- Бизнес-центр класса A- Шаговая доступность от станции метро Тульская (2 минуты пешком)- Этаж: 8- Помещение предлагается в состоянии под отделку- Планировка открытая- Панорамное остекление- Трехуровневый подземный паркинг- Высота потолков: 3.7 м.Оперативно организуем для Вас показ и ответим на все вопросы.Свяжитесь с нами для получения дополнительной информации

Читать полностью
    Позвонить Написать
    209 300 000 Р2 491 700 $ или 2 151 300
    Агент
    +7 (938) 656-74-88
    Начать чат с агентом
    Похожие предложения
    Помещение свободного назначения в Москва Холодильный пер., 3к1с8 (429 ... - Фото 1
    Помещение свободного назначения в Москва Холодильный пер., 3к1с8 (429 ... - Фото 2
    839623. Предлагаем офисное помещение с гарантированным арендным потоком, площадью 428,8 кв. м., расположенное на 2 этаже бизнес-квартала Товарищество Рябовской Мануфактуры Преимущества объекта:- Бизнес-центр класса В+- Шаговая доступность от станции...
    • 2/2 эт.
    210 112 000 Р
    Агент
    +7 (938) Показать номер
    Посмотреть контакты
    Помещение свободного назначения в Москва 3-й Павелецкий проезд, 3 (363 ... - Фото 1
    Помещение свободного назначения в Москва 3-й Павелецкий проезд, 3 (363 ... - Фото 2
    642527. Предлагаем торговое помещение с надежными арендаторами Клиника, Сода и Бритва, площадью 363.4 кв. м., расположенное на первом этаже жилого дома в ЖК Резиденции композиторов . Без комиссии для покупателя.Преимущества объекта:-первая линия;-ЖК...
    • 1/16 эт.
    218 040 000 Р
    Агент
    +7 (938) Показать номер
    Посмотреть контакты
    Помещение свободного назначения в Москва Трифоновская ул., 12 (1208 м) - Фото 1
    Помещение свободного назначения в Москва Трифоновская ул., 12 (1208 м) - Фото 2
    Лот: 38611. Предлагается помещение на первой линии домов в крупном жилом массиве. Отличная видимость, хороший рекламный потенциал. Интенсивный пешеходный трафик. 10 минут пешком от ст. метро Марьина Роща и Достоевская .Распределение площади: 1 этаж...
    • 1/2 эт.
    200 000 000 Р
    Агент
    +7 (986) Показать номер
    Посмотреть контакты
    Помещение свободного назначения в Москва Трифоновская ул., 12 (1208 м) - Фото 1
    Помещение свободного назначения в Москва Трифоновская ул., 12 (1208 м) - Фото 2
    Лот: 38584. Предлагается помещение на первой линии домов в крупном жилом массиве. Отличная видимость, хороший рекламный потенциал. Интенсивный пешеходный трафик. 10 минут пешком от ст. метро Марьина Роща и Достоевская .Распределение площади: 1 этаж...
    • 1/2 эт.
    200 000 000 Р
    Агент
    +7 (986) Показать номер
    Посмотреть контакты
    Помещение свободного назначения в Москва ул. Свободы, 35С2 (1399 м) - Фото 1
    Помещение свободного назначения в Москва ул. Свободы, 35С2 (1399 м) - Фото 2
    Помещение свободного назначения с открытой планировкой площадью 1 399 м расположено на 4 этаже в бизнес-центре Level work Свободы . Объект свободен от отделки, что позволяет адаптировать его под стиль любой компании. Установлены системы приточно-вытяжной...
    • 4/8 эт.
    210 560 000 Р
    Агент
    +7 (923) Показать номер
    Посмотреть контакты

    Не нашли подходящего объявления?

    Оставьте заявку, и наши риэлторы подберут псн в районе Москвы

    (0)