200 000 000 Р 2 493 000 $ или 2 174 300

Информация об помещении

1
Этаж

Состояние и оснащение

Количество этажей
2
Развернуть
Агент
+7 (986) 323-87-37
Начать чат с агентом

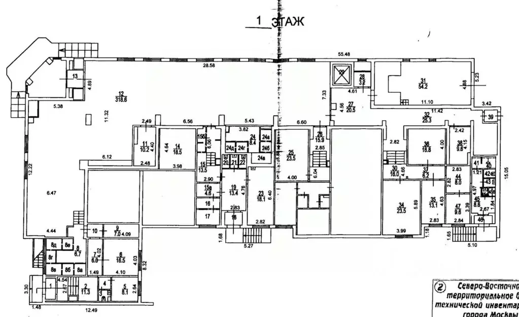
Помещение свободного назначения в Москва Трифоновская ул., 12 (1208 м)

Лот: 38584. Предлагается помещение на первой линии домов в крупном жилом массиве. Отличная видимость, хороший рекламный потенциал. Интенсивный пешеходный трафик. 10 минут пешком от ст. метро Марьина Роща и Достоевская .Распределение площади: 1 этаж 776,4 кв. м, Подвал 431,9 кв. м. Входная группа: отдельный вход. Высота потолков:1 этаж 2,7 мПодвал 1,8 мМощность: 35 кВт.

Читать полностью
    Позвонить Написать
    200 000 000 Р2 493 000 $ или 2 174 300
    Агент
    +7 (986) 323-87-37
    Начать чат с агентом
    Похожие предложения
    Помещение свободного назначения в Москва Трифоновская ул., 12 (1208 м) - Фото 1
    Помещение свободного назначения в Москва Трифоновская ул., 12 (1208 м) - Фото 2
    Лот: 38611. Предлагается помещение на первой линии домов в крупном жилом массиве. Отличная видимость, хороший рекламный потенциал. Интенсивный пешеходный трафик. 10 минут пешком от ст. метро Марьина Роща и Достоевская .Распределение площади: 1 этаж...
    • 1/2 эт.
    200 000 000 Р
    Агент
    +7 (986) Показать номер
    Посмотреть контакты
    Продажа ПСН, м. Лихоборы, Черепановых проезд - Фото 1
    Продажа ПСН, м. Лихоборы, Черепановых проезд - Фото 2
    Продажа ПСН, м. Лихоборы, Черепановых проезд - Фото 3
    Продажа ПСН, м. Лихоборы, Черепановых проезд - Фото 4
    Продажа ПСН, м. Лихоборы, Черепановых проезд - Фото 5
    Продажа ПСН, м. Лихоборы, Черепановых проезд - Фото 6
    Продажа ПСН, м. Лихоборы, Черепановых проезд - Фото 7
    Продажа ПСН, м. Лихоборы, Черепановых проезд - Фото 8
    Продажа ПСН, м. Лихоборы, Черепановых проезд - Фото 9
    Продажа ПСН, м. Лихоборы, Черепановых проезд - Фото 10
    Продажа ПСН, м. Лихоборы, Черепановых проезд - Фото 11
    общая площадь 1848.8м², полезная площадь 1848.8м²

    От собственника. Арендный бизнес. Продажа административного здания, расположенного в САО, Головинский район, на проезде Черепановых, в 4-х минутах пешком от МЦК «Лихоборы» и «Окружная». Здание отдельностоящее (ОСЗ) 1981 года постройки, общая площадь 1848,8...
    • 1 848.8 м²
    • 1-й эт.
    203 368 000 Р
    Агент
    +7 (903) Показать номер
    Посмотреть контакты
    Продажа ПСН, ул. Вольная - Фото 1
    Продажа ПСН, ул. Вольная - Фото 2
    Продажа ПСН, ул. Вольная - Фото 3
    Продажа ПСН, ул. Вольная - Фото 4
    Продажа ПСН, ул. Вольная - Фото 5
    Продажа ПСН, ул. Вольная - Фото 6
    Продажа ПСН, ул. Вольная - Фото 7
    Продажа ПСН, ул. Вольная - Фото 8
    Продажа ПСН, ул. Вольная - Фото 9
    Продажа ПСН, ул. Вольная - Фото 10
    Продажа ПСН, ул. Вольная - Фото 11
    Продажа ПСН, ул. Вольная - Фото 12
    Продажа ПСН, ул. Вольная - Фото 13
    Продажа ПСН, ул. Вольная - Фото 14
    Продажа ПСН, ул. Вольная - Фото 15
    Продажа ПСН, ул. Вольная - Фото 16
    Продажа ПСН, ул. Вольная - Фото 17
    общая площадь 1539.8м², полезная площадь 1539.8м²

    Продажа нежилого 3-х этажного отдельно стоящего здания (ОСЗ) в стиле лофт, общей площадью 1539,8 м2. ОСЗ расположено на закрытой территории производственно-складского комплекса. Здание кирпичное, без подвала. В 2022 году был выполнен капитальный ремонт...
    • 1 539.8 м²
    • 1-й эт.
    199 000 000 Р
    Агент
    +7 (903) Показать номер
    Посмотреть контакты
    Продажа ПСН, м. Тульская, Холодильный пер. - Фото 1
    Продажа ПСН, м. Тульская, Холодильный пер. - Фото 2
    Продажа ПСН, м. Тульская, Холодильный пер. - Фото 3
    Продажа ПСН, м. Тульская, Холодильный пер. - Фото 4
    Продажа ПСН, м. Тульская, Холодильный пер. - Фото 5
    Продажа ПСН, м. Тульская, Холодильный пер. - Фото 6
    Продажа ПСН, м. Тульская, Холодильный пер. - Фото 7
    Продажа ПСН, м. Тульская, Холодильный пер. - Фото 8
    Продажа ПСН, м. Тульская, Холодильный пер. - Фото 9
    Продажа ПСН, м. Тульская, Холодильный пер. - Фото 10
    Продажа ПСН, м. Тульская, Холодильный пер. - Фото 11
    общая площадь 415.4м², полезная площадь 415.4м²

    ПСН площадью 415,4 масположено в ЛОФТ- квартале Товарищество Рябовской Мануфактуры, в 100 метрах от метро Тульская. Помещение на 1-м этаже в 2-х этажном здании (корпус 1 строение 3), с высокими потолками, большими арочными окнами и всеми центральными...
    • 415.4 м²
    • 1-й эт.
    191 084 000 Р
    Агент
    +7 (903) Показать номер
    Посмотреть контакты
    Помещение свободного назначения в Москва Жилой комплекс Преображенская ... - Фото 1
    Помещение свободного назначения в Москва Жилой комплекс Преображенская ... - Фото 2
    В проекте премиум-класса Преображенская площадь предлагаются к продаже коммерческие помещения. Потенциальная доходность:Продажа помещения в готовом состоянии- Срок инвестиции 4 года;- Годовая доходность 12 Сдача помещения в аренду- Срок инвестиции 8-10...
    • 1/17 эт.
    196 286 334 Р
    Агент
    +7 (986) Показать номер
    Посмотреть контакты

    Не нашли подходящего объявления?

    Оставьте заявку, и наши риэлторы подберут псн в районе Москвы

    (0)