180 000 000 Р 2 348 600 $ или 1 996 300

Информация об помещении

1
Этаж

Состояние и оснащение

Количество этажей
7
Развернуть
Агент
+7 (938) 656-74-88
Начать чат с агентом

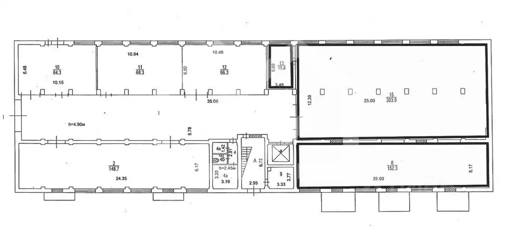
Помещение свободного назначения в Москва Озерковская наб., 26 (384 м)

641880-gab . Предлагаем торговое помещение формата Street Retail с надежным арендатором - рестораном, площадью 383,5 кв. м., расположенное на первом этаже, антресоли и в подвале в элитном жилом комплексе класса люкс Аквамарин . Без комиссии для покупателя.Преимущества объекта:-первая линия;-пешая доступность от станции метро Новокузнецкая (11 минут пешком);-объект отлично просматривается, находится в легком доступе для клиентов;-развитая инфраструктура района;-надежный арендатор;-зальная планировка;-дизайнерский ремонт от арендатора;-панорамное остекление, из помещения открывается вид на реку;-место для вывески;-зона разгрузки/погрузки;-вытяжка для общепита;-парковка перед зданием;-есть возможность организации летней веранды.Технические параметры объекта:-2 отдельные входные группы с фасада и со двора;-электрическая мощность: 130 кВт;-высота потолков: от 2.2 до 3 м.Информация об арендаторе:-арендатор: Ресторан, КДА;-доход:/мес.;-окупаемость: 18.8 лет;-доходность: 5.33 .Свяжитесь с нами для получения дополнительной информации

Читать полностью
    Позвонить Написать
    180 000 000 Р2 348 600 $ или 1 996 300
    Агент
    +7 (938) 656-74-88
    Начать чат с агентом
    Похожие предложения
    Помещение свободного назначения (78.2 м) - Фото 1
    Помещение свободного назначения (78.2 м) - Фото 2
    ПРЯМАЯ ПРОДАЖА ОТ СОБСТВЕННИКА.м. Новокузнецкая, 2 минуты пешком. Сдаётся помещение 78.2 м2.1-й этаж. 1-я линия домов. Отдельный вход.Витрины. Трафик. Хорошее состояние. Потолки 3.2. Вытяжка.Назначение: свободное.Идеальное использование: общепит, магазин,...
    • 1/3 эт.
    180 000 000 Р
    Агент
    +7 (926) Показать номер
    Посмотреть контакты
    Помещение свободного назначения (78.2 м) - Фото 1
    Помещение свободного назначения (78.2 м) - Фото 2
    ПРЯМАЯ ПРОДАЖА ОТ СОБСТВЕННИКА.м. Новокузнецкая, 2 минуты пешком. Сдаётся помещение 78.2 м2.1-й этаж. 1-я линия домов. Отдельный вход.Витрины. Трафик. Хорошее состояние. Потолки 3.2. Вытяжка.Назначение: свободное.Идеальное использование: общепит, магазин,...
    • 1/3 эт.
    180 000 000 Р
    Агент
    +7 (926) Показать номер
    Посмотреть контакты
    Помещение свободного назначения в Москва Пятницкая ул., 16С1 (78 м) - Фото 1
    Помещение свободного назначения в Москва Пятницкая ул., 16С1 (78 м) - Фото 2
    Лот: 37994. Помещение свободного назначения формата Street Retail в ЦАО Москвы. 2 минуты пешком до станции метро Новокузнецкая. Расположено на первой линии Пятницкой улицы. Сложившееся торговое окружение. Трафик:чел/час. Подойдёт для любого вида деятельности....
    • 1/5 эт.
    180 000 000 Р
    Агент
    +7 (986) Показать номер
    Посмотреть контакты
    Помещение свободного назначения в Москва 2-я Кабельная ул., 2С50 (2200 ... - Фото 1
    Помещение свободного назначения в Москва 2-я Кабельная ул., 2С50 (2200 ... - Фото 2
    761187-wf . Складской комплекс общей площадью 2 200 кв. м в районе Лефортово. Объект расположен на территории завода Москабельмет .Преимущества:15 минут пешком от ст. метро Авиамоторная .Выезд на Шоссе Энтузиастов, Рязанский проспект и ЮВХ.Сложившееся...
    • 1/2 эт.
    180 000 000 Р
    Агент
    +7 (938) Показать номер
    Посмотреть контакты
    Помещение свободного назначения в Москва пер. Любучанский, 1к3 (1426 ... - Фото 1
    Помещение свободного назначения в Москва пер. Любучанский, 1к3 (1426 ... - Фото 2
    991930-wf . Предлагается складское помещение общей площадью 1426 кв. м. находящееся в составе производственно-складского комплекса в НАО. 1, 2, 3 этаж. Преимущества: Объект расположен в Новой Москве вблизи аэропорта Остафьево. 14 км от МКАД и 3 км от...
    • 1/3 эт.
    184 845 250 Р
    Агент
    +7 (938) Показать номер
    Посмотреть контакты

    Не нашли подходящего объявления?

    Оставьте заявку, и наши риэлторы подберут псн в районе Москвы

    (0)