180 000 000 Р 2 290 500 $ или 1 939 400

Информация об помещении

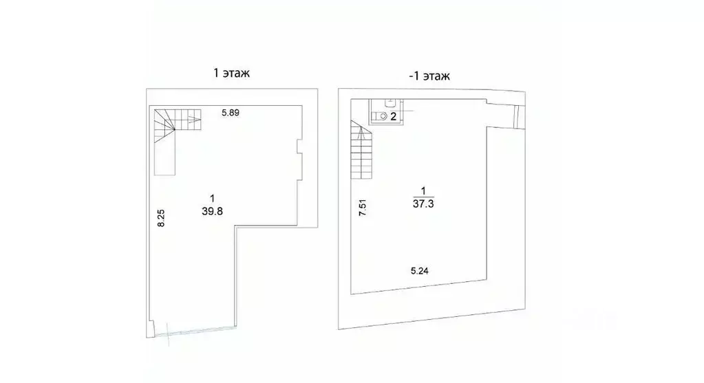
1
Этаж

Состояние и оснащение

Количество этажей
5
Развернуть
Агент
+7 (986) 323-87-37
Начать чат с агентом

Помещение свободного назначения в Москва Пятницкая ул., 16С1 (78 м)

Лот: 37994. Помещение свободного назначения формата Street Retail в ЦАО Москвы. 2 минуты пешком до станции метро Новокузнецкая. Расположено на первой линии Пятницкой улицы. Сложившееся торговое окружение. Трафик:чел/час. Подойдёт для любого вида деятельности.

Читать полностью
    Позвонить Написать
    180 000 000 Р2 290 500 $ или 1 939 400
    Агент
    +7 (986) 323-87-37
    Начать чат с агентом
    Похожие предложения
    Помещение свободного назначения в Москва Озерковская наб., 26 (384 м) - Фото 1
    641880 . Предлагаем торговое помещение формата Street Retail с надежным арендатором - рестораном, площадью 383,5 кв. м., расположенное на первом этаже, антресоли и в подвале в элитном жилом комплексе класса люкс Аквамарин . Без комиссии для покупателя.Преимущества...
    • 1/7 эт.
    180 000 000 Р
    Агент
    +7 (938) Показать номер
    Посмотреть контакты
    Помещение свободного назначения в Москва ул. Сергея Бондарчука, 6 (210 ... - Фото 1
    Помещение свободного назначения в Москва ул. Сергея Бондарчука, 6 (210 ... - Фото 2
    Id 57586. Продажа просторного коммерческого помещения площадью 210 м с открытой планировкой в престижном клубном доме РЕКА (Раменки).Ключевые преимущества:Элитный район Раменки, всего 12 минут пешком от метро Мичуринский проспект .Первый этаж с антресолью,...
    • 1/8 эт.
    190 000 000 Р
    Агент
    +7 (985) Показать номер
    Посмотреть контакты
    Помещение свободного назначения в Москва Чапаевский пер., 3 (458 м) - Фото 1
    Помещение свободного назначения в Москва Чапаевский пер., 3 (458 м) - Фото 2
    Шикарное помещение свободного назначения в офисно-жилом комплексе Триумф-Палас Располагается на первом этаже, общая площадь - 457.5 кв.м. назначение - нежилое. Есть возможность увеличить площадь этого помещения за счет продажи 962, 1. кв.м....
    • 1/57 эт.
    170 000 000 Р
    Агент
    +7 (923) Показать номер
    Посмотреть контакты
    Продажа ПСН, м. Дмитровская, ул. Добролюбова - Фото 1
    Продажа ПСН, м. Дмитровская, ул. Добролюбова - Фото 2
    Продажа ПСН, м. Дмитровская, ул. Добролюбова - Фото 3
    Продажа ПСН, м. Дмитровская, ул. Добролюбова - Фото 4
    Продажа ПСН, м. Дмитровская, ул. Добролюбова - Фото 5
    Продажа ПСН, м. Дмитровская, ул. Добролюбова - Фото 6
    Продажа ПСН, м. Дмитровская, ул. Добролюбова - Фото 7
    Продажа ПСН, м. Дмитровская, ул. Добролюбова - Фото 8
    общая площадь 826.6м², полезная площадь 826.6м²

    От собственника - арендный бизнес. Продажа нежилого 1-но этажного отдельно стоящего здания (ОСЗ) без подвала, в 15 минутах пешком от 2-х станций метро - Дмитровская и Бутырская. Общая площадь здания 826,6 м2, подходит под автосервис, автомобильные боксы,...
    • 826.6 м²
    • 1-й эт.
    182 000 000 Р
    Агент
    +7 (903) Показать номер
    Посмотреть контакты
    Продажа ПСН, м. Проспект Мира, Мира пр-кт. - Фото 1
    Продажа ПСН, м. Проспект Мира, Мира пр-кт. - Фото 2
    Продажа ПСН, м. Проспект Мира, Мира пр-кт. - Фото 3
    Продажа ПСН, м. Проспект Мира, Мира пр-кт. - Фото 4
    Продажа ПСН, м. Проспект Мира, Мира пр-кт. - Фото 5
    Продажа ПСН, м. Проспект Мира, Мира пр-кт. - Фото 6
    общая площадь 186.3м², полезная площадь 186.3м²

    ПСН общей площадью 186,3 м2, находится в 1 минуте пешком от станции метро Проспект Мира, ЦАО, район Мещанский. Помещение расположено на 1 этаже (123,5 м2) и в подвале (62,8 м2) жилого дома. 1-я линия домов. Высота потолков 4,2 метров, есть 2 отдельных...
    • 186.3 м²
    • 1-й эт.
    187 000 000 Р
    Агент
    +7 (903) Показать номер
    Посмотреть контакты

    Не нашли подходящего объявления?

    Оставьте заявку, и наши риэлторы подберут псн в районе Москвы

    (0)