Россия, Москва, Левел Нижегородская жилой комплекс, 2

Реализация объекта недвижимости приостановлена

Информация об помещении

1
Этаж

Состояние и оснащение

Количество этажей
11
Развернуть

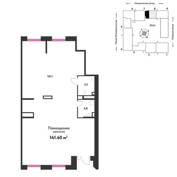
Помещение свободного назначения в Москва Левел Нижегородская жилой ...

Продаётся помещение свободного назначения площадью 116.6 кв. м. в новостройке Левел Нижегородская по адресу Москва, ЮВАО, Нижегородский, Перовское шоссе, д. 21, корп. 2. Помещение со свободной планировкой. Окна с видом во двор. Высота потолков 4.80 м. Отдельный вход со двора. Стоимость помещения — Способы оплаты и более подробная информация по телефону.

Читать полностью

    Реализация объекта недвижимости приостановлена

    Не нашли подходящего объявления?

    Оставьте заявку, и наши риэлторы подберут псн в районе Москвы

    (0)