84 000 000 Р 1 047 000 $ или 913 200

Информация об помещении

1
Этаж

Состояние и оснащение

Количество этажей
12
Развернуть
Агент
+7 (916) 235-89-20
Начать чат с агентом

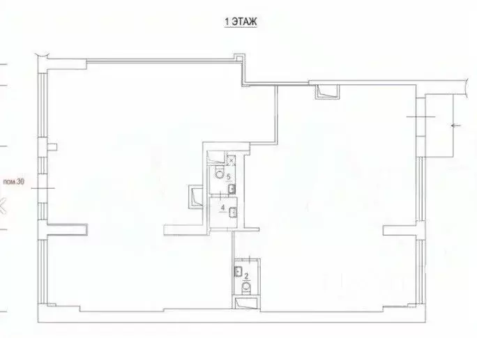
Помещение свободного назначения в Москва Ленинградский просп., 71КБ ...

Лот 160175.Предлагается в продажу помещение свободного назначение на первой линии Ленинградского проспекта площадью 105.4 кв.м. Объект находится в очень оживлённом месте, в непосредственной близости от метро Сокол. Интенсивный пешеходный и автомобильный трафик обеспечивает данное помещение высоким рекламным и маркетинговым потенциалом. Идеально подходит под медицинскую, фармакологическую и образовательную деятельность.Технические характеристики:1 этаж жилого дома. Общая площадь 105.4 кв.м. ( 62.8 по первому этажу и 42.6 кв.м. антресоль.). Входная группа с фасадаПланировка — открытая (свободная), перекрытия—ж/б, высота потолка 4.9м. по 1-му и 2.2 м на антресоли).Помещение с внутренней отделкойВсе городские инженерные коммуникацииВысокий рекламный потенциал и места для размещения вывесок Отличная пешеходная и транспортная доступностьКоммерческие усовия:Стоимость продажи:;Стоимость за 1 кв.м.:;

Читать полностью
    Позвонить Написать
    84 000 000 Р1 047 000 $ или 913 200
    Агент
    +7 (916) 235-89-20
    Начать чат с агентом
    Похожие предложения
    Помещение свободного назначения (105 м) - Фото 1
    Помещение свободного назначения (105 м) - Фото 2
    Лот №1053967 Предложение от Собственника Напишите нам в Ватсап, чтобы получить ПОДРОБНУЮ ПРЕЗЕНТАЦИЮ С ПЛАНИРОВКОЙ И ФОТОГРАФИЯМИ Продаётся помещение свободного назначения общей площадью 105.4 м2. Топовая локация: объект расположен всего в 50 метрах...
    • 1/9 эт.
    84 000 000 Р
    Агент
    +7 (495) Показать номер
    Посмотреть контакты
    Помещение свободного назначения (105.4 м) - Фото 1
    Помещение свободного назначения (105.4 м) - Фото 2
    Продажа помещения 105.4 м2 Ленинградский проспект 71к ГШаговая доступность от ст. метро «Сокол — менее 1 минуты пешком. Отличная пешеходная и транспортная доступность.Помещение расположено в крупном сложившемся жилом районе с высокой плотностью застройки...
    • 1/8 эт.
    84 000 000 Р
    Агент
    +7 (964) Показать номер
    Посмотреть контакты
    Продается ПСН 493.8 м2 - Фото 1
    Продается ПСН 493.8 м2 - Фото 2
    Продается ПСН 493.8 м2 - Фото 3
    Продается ПСН 493.8 м2 - Фото 4
    Продается ПСН 493.8 м2 - Фото 5
    Продается ПСН 493.8 м2 - Фото 6
    Продается ПСН 493.8 м2 - Фото 7
    Продается ПСН 493.8 м2 - Фото 8
    Продается ПСН 493.8 м2 - Фото 9
    Продается ПСН 493.8 м2 - Фото 10
    полезная площадь 493.8м²

    Предлагается коммерческое помещение ПОД АВТОМОЙКУ (мойку автомобилей) площадью 493,8 м2 на минус первом этаже 33-этажного жилого дома в ЖК «Тринити-2». Основные преимущества: 1. Закрытый паркинг с внешним входом делает автомойку доступной не только...
    • 493.8 м²
    • -1/34 эт.
    84 146 000 Р
    Агент
    +7 (495) Показать номер
    Посмотреть контакты
    Помещение свободного назначения в Москва Кочновский проезд, 4к1 (180 ... - Фото 1
    Помещение свободного назначения в Москва Кочновский проезд, 4к1 (180 ... - Фото 2
    711070-gab . Предлагаем помещение свободного назначения формата street-retail с арендаторами ВкусВилл и 4hands (80 кв. м.) в ЖК Аэробус , площадью 180 кв. м, расположенное на первом этаже 34-этажного жилого дома. Без комиссии для покупателя.Преимущества...
    • 1/34 эт.
    84 000 000 Р
    Агент
    +7 (938) Показать номер
    Посмотреть контакты
    Помещение свободного назначения в Москва Изумрудная ул., 24К1 (285 м) - Фото 1
    Помещение свободного назначения в Москва Изумрудная ул., 24К1 (285 м) - Фото 2
    Лот 159869.Продаётся помещение свободного назначения, по адресу: Москва, Изумрудная ул., 24к1, площадью - 285 кв.м.Ближайшая станция метро - Бабушкинская, 18 минут пешком. Помещение расположено на 1 этаже дома с коммерческими помещениями. В шаговой доступности...
    • 1/16 эт.
    83 000 000 Р
    Агент
    +7 (916) Показать номер
    Посмотреть контакты

    Не нашли подходящего объявления?

    Оставьте заявку, и наши риэлторы подберут псн в районе Москвы

    (0)