79 200 000 Р 952 800 $ или 836 600

Информация об помещении

1
Этаж

Состояние и оснащение

Количество этажей
3
Развернуть
Агент
+7 (986) 274-27-15
Начать чат с агентом

Помещение свободного назначения в Москва Бауманская ул., 33/2С3 (66 м)

ЛотПредложение от Собственника Продаётся помeщение cвободного нaзначeния площадью 66 м2 всего в 1 минуте пешком oт cтанции мeтpo Баумaнcкaя на интенсивном пешеходном трафике.В помещение отдельный вход с улицы, круглосуточный доступ, открытая планировка, потолки 3.25 м, будет подготовлено под чистовую отделку. Идеально подойдёт под магазин, шоурум, бутик, кафе, кофейню, аптеку, оптику, студию красоты, ювелирный магазин, банк, салон связи, офис продаж, медицинский центр, услуги населению, цветы и другие виды коммерческого использования.Чтобы получить ПОДРОБНУЮ ПРЕЗЕНТАЦИЮ С ПЛАНИРОВКОЙ И ФОТОГРАФИЯМИ, звоните или отправьте свой email и номер телефона в сообщении на портале. Высылаем в течение 15 минут по запросу Конт. лицо: Сергей Федорович, доб. 218, ЛОТ 1018993

Читать полностью
    Позвонить Написать
    79 200 000 Р952 800 $ или 836 600
    Агент
    +7 (986) 274-27-15
    Начать чат с агентом
    Похожие предложения
    Помещение свободного назначения в Москва Бауманская ул., 33/2С3 (66 м) - Фото 1
    Помещение свободного назначения в Москва Бауманская ул., 33/2С3 (66 м) - Фото 2
    Продажа новых помещений торгового и любого свободного назначения.Высота потолков — 3,25 мСвободная планировка.Помещение подготовлено под чистовую отделку.До ст. метро Бауманская — менее 1 минуты пешкомНаходится вблизи центральных переулков Москвы, таких...
    • 1/3 эт.
    79 200 000 Р
    Агент
    +7 (981) Показать номер
    Посмотреть контакты
    Помещение свободного назначения в Москва Бауманская ул., 33/2С3 (66 м) - Фото 1
    Помещение свободного назначения в Москва Бауманская ул., 33/2С3 (66 м) - Фото 2
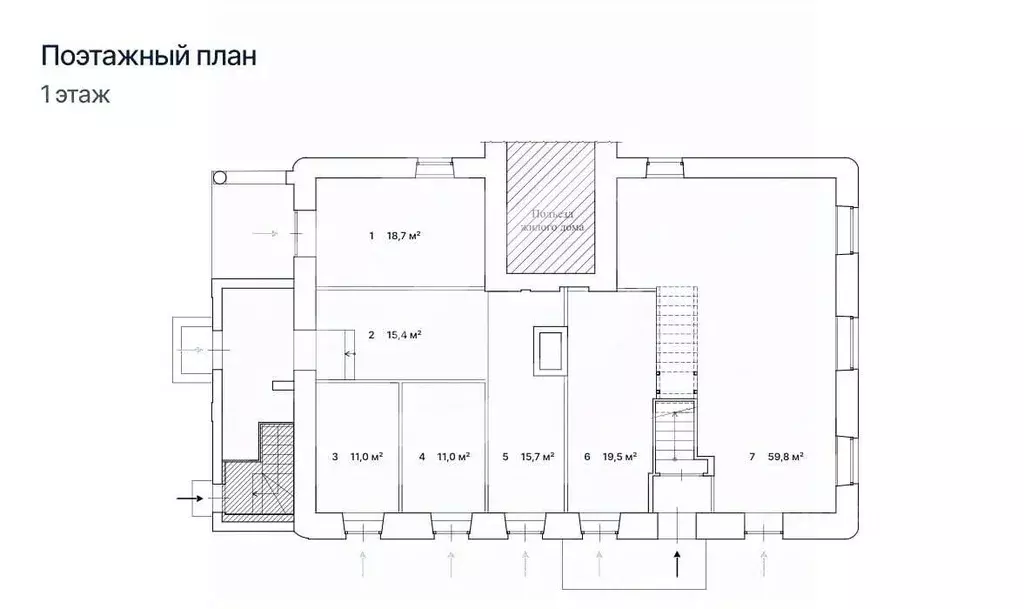
    1112596. Предлагаем к приобретению торговое помещение, площадью 59,8 кв. м., расположенное на первом этаже жилого дома. Без комиссии для покупателя.Преимущества объекта: -в 65 метрах станция метро Бауманская;-центр плотного жилого массива, премиальная...
    • 1/4 эт.
    79 200 000 Р
    Агент
    +7 (938) Показать номер
    Посмотреть контакты
    Помещение свободного назначения в Москва Бауманская ул., 33/2С3 (66 м) - Фото 1
    Помещение свободного назначения в Москва Бауманская ул., 33/2С3 (66 м) - Фото 2
    Арт.ОписаниеПродажа помещения свободного назначения 65,9 кв.м.Высота потолков — 3,25 м, мокрая точка, современная входная группа, вывеска, свободная планировка. Отлично подойдут под любой вид деятельности: торговое помещение, кафе, аптека, салон красоты,...
    • 1/3 эт.
    79 200 000 Р
    Агент
    +7 (916) Показать номер
    Посмотреть контакты
    Продажа ПСН, м. Тульская, Холодильный пер. - Фото 1
    Продажа ПСН, м. Тульская, Холодильный пер. - Фото 2
    Продажа ПСН, м. Тульская, Холодильный пер. - Фото 3
    Продажа ПСН, м. Тульская, Холодильный пер. - Фото 4
    Продажа ПСН, м. Тульская, Холодильный пер. - Фото 5
    Продажа ПСН, м. Тульская, Холодильный пер. - Фото 6
    Продажа ПСН, м. Тульская, Холодильный пер. - Фото 7
    Продажа ПСН, м. Тульская, Холодильный пер. - Фото 8
    Продажа ПСН, м. Тульская, Холодильный пер. - Фото 9
    Продажа ПСН, м. Тульская, Холодильный пер. - Фото 10
    общая площадь 185.1м², полезная площадь 185.1м²

    ЮАО, Даниловский район, 100 метров от метро Тульская! Арендный бизнес. ПСН площадью 185,1 м2 (№4103) расположено в Деловом квартале в стиле Лофт – в ДК «Товарищество Рябовской Мануфактуры», в 3-х минутах пешком от метро Тульская. Помещение расположено...
    • 185.1 м²
    • 1-й эт.
    79 593 000 Р
    Агент
    +7 (903) Показать номер
    Посмотреть контакты
    Помещение свободного назначения (570.7 м) - Фото 1
    Помещение свободного назначения (570.7 м) - Фото 2
    Продажа ПСН 570,7 м2 м. Верхние Лихоборы в САО Описание : продажа помещения, складского назначения с высотой потолков до 6 метров. открытое пространство и антресоль 50 м2. Расположение : комплекс производственно-складской на Лихоборской набережной, 11....
    • 1 этаж
    79 898 000 Р
    Агент
    +7 (932) Показать номер
    Посмотреть контакты

    Не нашли подходящего объявления?

    Оставьте заявку, и наши риэлторы подберут псн в районе Москвы

    (0)