125 000 000 Р 1 604 900 $ или 1 360 300

Информация об помещении

1
Этаж

Состояние и оснащение

Количество этажей
8
Развернуть
Агент
+7 (938) 656-74-88
Начать чат с агентом

Помещение свободного назначения в Москва ул. Маршала Василевского, 5К1 ...

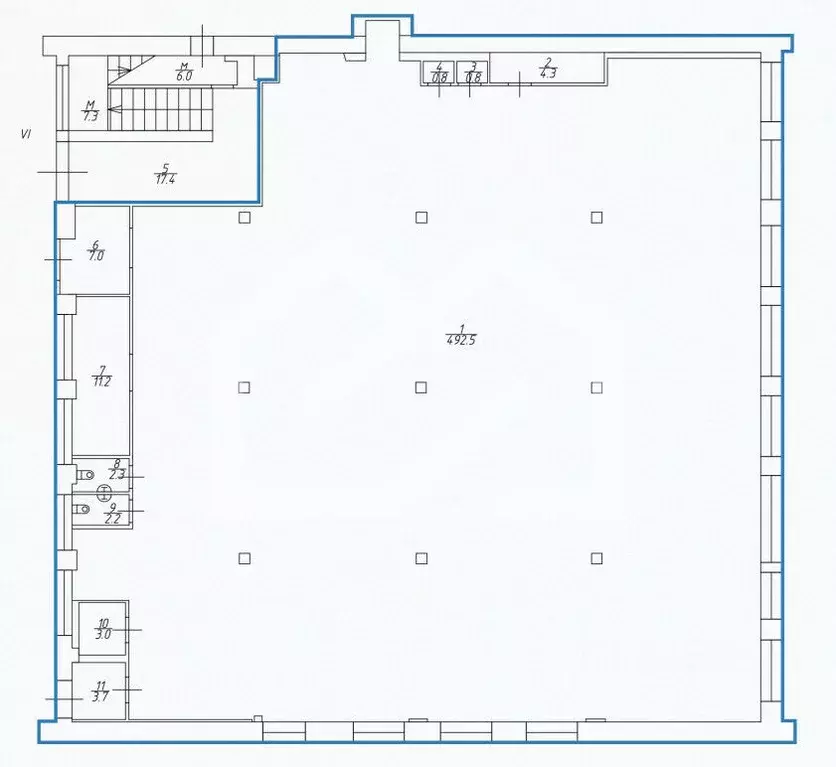
643271 . Предлагаем помещение свободного назначения формата Street Retail с арендатором супермаркет Дикси , площадью 481 кв. м., расположенное на первом этаже и в подвале жилого дома. Без комиссии для покупателя. Преимущества объекта:-первая линия;-8 минут пешком от станции метро Щукинская;-густонаселённый жилой массив;-развитая инфраструктура района;-интенсивный автомобильный и пешеходный трафик;-объект отлично просматривается, находится в легком доступе для клиентов;-надежный сетевой арендатор;-свободная планировка;-витринное остекление;-место для вывески;-центральное отопление, горячее и холодное водоснабжение;-наземная парковка;-автобусная остановка прямо напротив входа;-возможность перепланировки. Технические параметры объекта:-отдельный вход с улицы и две дополнительные входные группы со двора;-площадь по этажам:1 этаж - 316 кв. м., цоколь с окнами - 165 кв. м.;-электрическая мощность: 73 кВт;-высота потолков: 6,3 м (возможность устройства антресоли). Информация об арендаторе: -арендатор: супермаркет Дикси ;-прибыль:/мес.;-окупаемость: 10,4 лет;-доходность: 9,6 . Вакантная площадь: 200 кв. м. (1 этаж - 30 кв. м. и подвал с окнами) с отдельным входом со двора. Свяжитесь с нами для получения дополнительной информации

Читать полностью
    Позвонить Написать
    125 000 000 Р1 604 900 $ или 1 360 300
    Агент
    +7 (938) 656-74-88
    Начать чат с агентом
    Похожие предложения
    Помещение свободного назначения в Москва ул. Маршала Василевского, 5К1 ... - Фото 1
    Помещение свободного назначения в Москва ул. Маршала Василевского, 5К1 ... - Фото 2
    Лот 988628 Предложение от Собственника Продается помещение свободного назначения, Общая площадь 481.20 кв.м. Потолки 6 м. Из которой 316 кв.м. Сдано магазину Дикси. МАП . Безусловная индексация с 3-его года 5 . и свободное помещение цокольного этажа,...
    • -1/8 эт.
    125 000 000 Р
    Агент
    +7 (986) Показать номер
    Посмотреть контакты
    Помещение свободного назначения в Москва Дмитровское ш., 182к1 (1758 ... - Фото 1
    Помещение свободного назначения в Москва Дмитровское ш., 182к1 (1758 ... - Фото 2
    Предлагается к продаже четырехэтажное кирпичное здания, общей площадью почти 1800 кв. метров на участке земли (ИЖС) почти 15 соток. Задние после глобальной перестройки, завершенной в 2009 году. Во время ремонта был полностью укреплен фундамент здания,...
    • 1/4 эт.
    120 000 000 Р
    Агент
    +7 (985) Показать номер
    Посмотреть контакты
    Помещение свободного назначения в Москва ул. Большая Якиманка, 39 (130 ... - Фото 1
    Помещение свободного назначения в Москва ул. Большая Якиманка, 39 (130 ... - Фото 2
    643980 . Предлагаем к приобретению помещение свободного назначения с арендатором Офис, площадью 130 кв. м., расположенное на первом этаже административного здания. Без комиссии для покупателя.Преимущества объекта:-первая линия ул. Большая Якиманка;-пешая...
    • 1/6 эт.
    130 000 000 Р
    Агент
    +7 (938) Показать номер
    Посмотреть контакты
    Помещение свободного назначения в Москва Высоковольтный проезд, 7 (661 ... - Фото 1
    Помещение свободного назначения в Москва Высоковольтный проезд, 7 (661 ... - Фото 2
    Административное здание Высоковольтный, 7 класса CПлощадь: 661,2 м2Стоимость за 1 м2: 189 050,. включая НДССтоимость площади:,. включая НДССистема налогообложения: НДСГотовность: готово к въездуЭтаж: 1Планировка: смешаннаяНаличие с/у: , В этом же зданииСтатус:...
    • 1/2 эт.
    124 999 998 Р
    Агент
    +7 (911) Показать номер
    Посмотреть контакты
    Помещение свободного назначения в Москва Старокалужское ш., 62 (528 м) - Фото 1
    Помещение свободного назначения в Москва Старокалужское ш., 62 (528 м) - Фото 2
    760724 . Предлагаем помещение свободного назначения формата с арендатором OZON в БЦ Валлекс , площадью 527.8 кв. м, расположенное на первом этаже 5-этажного здания. Без комиссии для покупателя.Преимущества объекта:-первая линия Старокалужского шоссе;-шаговая...
    • 1/9 эт.
    136 000 000 Р
    Агент
    +7 (938) Показать номер
    Посмотреть контакты

    Не нашли подходящего объявления?

    Оставьте заявку, и наши риэлторы подберут псн в районе Москвы

    (0)