71 000 000 Р 907 600 $ или 771 000

Информация об помещении

1
Этаж

Состояние и оснащение

Количество этажей
22
Развернуть
Агент
+7 (938) 656-74-88
Начать чат с агентом

Помещение свободного назначения в Москва Новоалексеевская ул., 16к4 ...

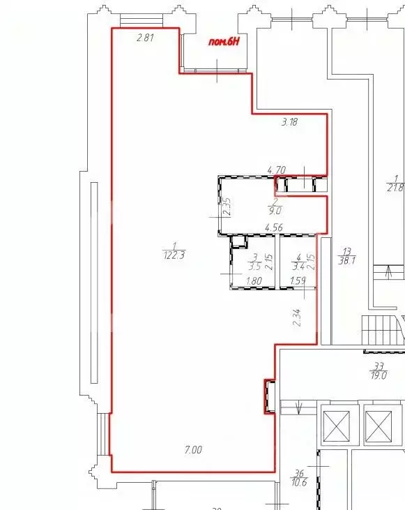
1022493 . Предлагаем помещение свободного назначения формата street-retail с арендатором Красное Белое в ЖК Серебряный фонтан , площадью 138.2 кв. м, расположенное на первом этаже 22-этажного жилого дома. Без комиссии для покупателя.Преимущества объекта:-ЖК состоит из 4 корпусов переменной этажности (от 19 до 20 этажей), рассчитанных на 2 014 квартир;-шаговая доступность от станции метро Алексеевская (4 минуты пешком);-удобная транспортная доступность: 1 км до проспекта Мира, 3.8 км до ТТК, 6.4 км до Ярославского шоссе;-плотный жилой массив;-развитая инфраструктура района;-высокий автомобильный и пешеходный трафик;-отлично просматривается, находится в легком доступе для потенциальных клиентов;-гибкая планировка, позволяющая адаптировать пространство под различные нужды;-витринное остекление;-возможность размещения вывески;-наземная парковка.Технические параметры объекта:-отдельный вход с улицы.-электрическая мощность: 27 кВт.-высота потолков: 5.5 м.Информация об арендаторе: -арендатор: Красное Белое.-прибыль: по запросу.-окупаемость: по запросу.-доходность: по запросу.Свяжитесь с нами для получения дополнительной информации

Читать полностью
    Позвонить Написать
    71 000 000 Р907 600 $ или 771 000
    Агент
    +7 (938) 656-74-88
    Начать чат с агентом
    Похожие предложения
    Продажа ПСН, м. Белорусская, ул. Грузинский Вал - Фото 1
    Продажа ПСН, м. Белорусская, ул. Грузинский Вал - Фото 2
    Продажа ПСН, м. Белорусская, ул. Грузинский Вал - Фото 3
    Продажа ПСН, м. Белорусская, ул. Грузинский Вал - Фото 4
    общая площадь 19.7м², полезная площадь 19.7м²

    Продажа помещения свободного назначения напротив выхода из метро и Белорусского вокзала, 10 метров до станции метро Белорусская. 1-я линия домов. Сверхинтенсивный пешеходный и автомобильный трафик, отличная транспортная доступность, сложившееся торговое...
    • 19.7 м²
    • 1-й эт.
    71 000 000 Р
    Агент
    +7 (903) Показать номер
    Посмотреть контакты
    Помещение свободного назначения в Москва просп. Вернадского, 94к1 (450 ... - Фото 1
    Помещение свободного назначения в Москва просп. Вернадского, 94к1 (450 ... - Фото 2
    ID: L12868ПРЕДУСМОТРЕН СУЩЕСТВЕННЫЙ ТОРГ Коммерческое помещение в ЖК Миракс Парк Расположение: район Ленинского проспекта.Этаж: промежуточный уровень между подвалом и первым этажом.Основные параметры:общая площадь — 450 м площадь по полу — 411 м высота...
    • 1/31 эт.
    72 000 000 Р
    Агент
    +7 (985) Показать номер
    Посмотреть контакты
    Помещение свободного назначения в Москва Дмитровский проезд, вл1Г (135 ... - Фото 1
    Помещение свободного назначения в Москва Дмитровский проезд, вл1Г (135 ... - Фото 2
    ID: L13033Помещение свободного назначения без отделкиПлощадь: 134.9мЭтаж: 2, отдельный входМожет использоваться под магазин, салон красоты, общепит О здании:STONE Дмитровская. Класс A . Общая площадь - 49 000 кв.м.Наземная площадь - 42 000 кв.м.Общая...
    • 2/23 эт.
    70 957 400 Р
    Агент
    +7 (923) Показать номер
    Посмотреть контакты
    Помещение свободного назначения в Москва ул. Сретенка, 27С1 (23 м) - Фото 1
    Помещение свободного назначения в Москва ул. Сретенка, 27С1 (23 м) - Фото 2
    Торговое помещение расположены на первой линии улицы Сретенки - когда-то главной торговой артерии старой Москвы. Здание находится в минуте от метро Сухаревская. Интенсивный пешеходный и автомобильный поток обеспечиваются лидогенерируюющими соседями здания,...
    • 1/3 эт.
    70 000 000 Р
    Агент
    +7 (981) Показать номер
    Посмотреть контакты
    Помещение свободного назначения в Москва ул. Воейкова, 2 (130 м) - Фото 1
    Помещение свободного назначения в Москва ул. Воейкова, 2 (130 м) - Фото 2
    Продается помещение в ЖК без единого арендатора Предложение с НДС 20 Помещение угловое, много окон и высокие потолки, достаточная электроэнергия. Подходит под разные виды деятельности. В ЖК нет ни одного арендатора, выбор максимальный.Собственность...
    • 1/11 эт.
    70 000 000 Р
    Агент
    +7 (915) Показать номер
    Посмотреть контакты

    Не нашли подходящего объявления?

    Оставьте заявку, и наши риэлторы подберут псн в районе Москвы

    (0)