Россия, Москва, ул. Инженера Кнорре, 7к5
24 500 000 Р 312 400 $ или 264 900

Информация об помещении

1
Этаж

Состояние и оснащение

Количество этажей
10
Развернуть
Агент
+7 (933) 936-99-34
Начать чат с агентом

Помещение свободного назначения в Москва ул. Инженера Кнорре, 7к5 (172 ...

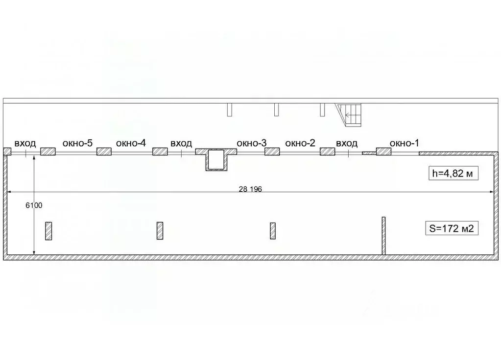
Юридически Москва Помещение не цоколь, не подвал. Минус 1ый этаж. Инсоляцией помещение обеспечено.Предлагается коммерческое помещение с тремя входами и пятью панорамными окнами, что обеспечивает естественную инсоляцию В КАЖДОМ Высота потолков — 4,82 м. Есть возможность установки антресоли МОЖНО РАЗДЕЛИТЬ НА 3 ПОМЕЩЕНИЯ Есть возможность получения лицензии на продажу алкоголя. Расположено всего в 100 метрах ЖК HОМЕCITY бизнес-класса, введён в эксплуатацию в декабре 2022 года, полностью заселен.Население комплекса — около 2 350 человек. В жилом комплексе всего 15 коммерческих помещений, что гарантирует стабильный трафик покупателей.Возможна аренда для трёх арендаторов с отдельными входами: у каждого — свой вход и 1 - 2 окна.Про ЖК:Проект бизнес - класса, уникальный для данной локации — ЖК HОМЕCITY . Построен по монолитной технологии с вентилируемыми фасадами и облицовкой клинкерной плиткой Feldhaus (Германия). До станции метро Румянцево — всего 1 км (13 минут пешком), до Киевского шоссе — 1 км, до МКАД — 3 км. НомЕCITY является важной частью комплексного развития территории Новой Москвы: благоустроенная территория площадью 45 га, современные офисные здания класса А бизнес-парка Соmсity , сетевой 4-звёздочный отель Azimut City Hotel Comcity Москва , школа и детский сад. Архитектурное решение разработано студией Сергей Киселев и партнёрами; генеральный подрядчик — Renaissance Construction (Турция) . Общая площадь застройки комплекса — 1,2 га, из которых 50 занимает благоустройство по проекту голландского архитектурно-градостроительного бюро MЛА+.Фасады выполнены из витражного остекления с металлическим профилем и энергоэффективными двухкамерными стеклопакетами с закалённым и мультифункциональным стеклом.

Читать полностью
    Позвонить Написать
    24 500 000 Р312 400 $ или 264 900
    Агент
    +7 (933) 936-99-34
    Начать чат с агентом
    Похожие предложения
    Помещение свободного назначения 96 м2 - Фото 1
    Помещение свободного назначения 96 м2 - Фото 2
    Помещение свободного назначения 96 м2 - Фото 3
    Помещение свободного назначения 96 м2 - Фото 4
    Помещение свободного назначения 96 м2 - Фото 5
    Помещение свободного назначения 96 м2 - Фото 6
    Помещение свободного назначения 96 м2 - Фото 7
    Помещение свободного назначения 96 м2 - Фото 8
    Помещение свободного назначения 96 м2 - Фото 9
    Помещение свободного назначения 96 м2 - Фото 10
    Помещение свободного назначения 96 м2 - Фото 11
    Помещение свободного назначения 96 м2 - Фото 12
    Помещение свободного назначения 96 м2 - Фото 13
    Помещение свободного назначения 96 м2 - Фото 14
    Помещение свободного назначения 96 м2 - Фото 15
    Помещение свободного назначения 96 м2 - Фото 16
    Помещение свободного назначения 96 м2 - Фото 17
    Помещение свободного назначения 96 м2 - Фото 18
    Помещение свободного назначения 96 м2 - Фото 19
    Помещение свободного назначения 96 м2 - Фото 20
    полезная площадь 96м²

    Продaм помещение свободного назначения в доме бизнec-клacса с возможностью организации летней веранды. Адрес: Новоясеневский бульвар, д. 9 Площадь: 96 кв.м Этаж: 9 Современное просторное пространство с высокими потолками. Возможные варианты использования:...
    • 96 м²
    • 9/23 эт.
    24 999 936 Р
    Агент
    +7 (939) Показать номер
    Посмотреть контакты
    Прямая продажа от застройщика - Фото 1
    Прямая продажа от застройщика - Фото 2
    Прямая продажа от застройщика - Фото 3
    Прямая продажа от застройщика - Фото 4
    Прямая продажа от застройщика - Фото 5
    Прямая продажа от застройщика - Фото 6
    Прямая продажа от застройщика - Фото 7
    Прямая продажа от застройщика - Фото 8
    Прямая продажа от застройщика - Фото 9
    Прямая продажа от застройщика - Фото 10
    Прямая продажа от застройщика - Фото 11
    Прямая продажа от застройщика - Фото 12
    Прямая продажа от застройщика - Фото 13
    Прямая продажа от застройщика - Фото 14
    Прямая продажа от застройщика - Фото 15
    Прямая продажа от застройщика - Фото 16
    Прямая продажа от застройщика - Фото 17
    Прямая продажа от застройщика - Фото 18
    Прямая продажа от застройщика - Фото 19
    Прямая продажа от застройщика - Фото 20
    полезная площадь 58.4м²

    Предлагается в продажу торговое помещение, расположенное в ЖК «1-й Измайловский»
    • 58.4 м²
    • 1/25 эт.
    24 952 480 Р
    Агент
    +7 (495) Показать номер
    Посмотреть контакты
    Прямая продажа от застройщика - Фото 1
    Прямая продажа от застройщика - Фото 2
    Прямая продажа от застройщика - Фото 3
    Прямая продажа от застройщика - Фото 4
    Прямая продажа от застройщика - Фото 5
    Прямая продажа от застройщика - Фото 6
    Прямая продажа от застройщика - Фото 7
    Прямая продажа от застройщика - Фото 8
    Прямая продажа от застройщика - Фото 9
    Прямая продажа от застройщика - Фото 10
    Прямая продажа от застройщика - Фото 11
    Прямая продажа от застройщика - Фото 12
    Прямая продажа от застройщика - Фото 13
    Прямая продажа от застройщика - Фото 14
    Прямая продажа от застройщика - Фото 15
    Прямая продажа от застройщика - Фото 16
    Прямая продажа от застройщика - Фото 17
    Прямая продажа от застройщика - Фото 18
    Прямая продажа от застройщика - Фото 19
    полезная площадь 90.1м²

    Предлагается в продажу торговое помещение, расположенное в ЖК «1-й Ленинградский»
    • 90.1 м²
    • 1/14 эт.
    24 477 000 Р
    Агент
    +7 (495) Показать номер
    Посмотреть контакты
    Прямая продажа от застройщика - Фото 1
    Прямая продажа от застройщика - Фото 2
    Прямая продажа от застройщика - Фото 3
    Прямая продажа от застройщика - Фото 4
    Прямая продажа от застройщика - Фото 5
    Прямая продажа от застройщика - Фото 6
    Прямая продажа от застройщика - Фото 7
    Прямая продажа от застройщика - Фото 8
    Прямая продажа от застройщика - Фото 9
    полезная площадь 106.8м²

    Предлагается в продажу нежилое помещение свободного назначения, расположенное в ЖК бизнес-класса "Зодиак". ЖК "Зодиак" расположен в САО г. Москвы (Сосновая аллея, дом 1) . Дом сдан в эксплуатацию в 2011 году. Рядом 4 станции метро: «Тушинская», метро...
    • 106.8 м²
    • 1/30 эт.
    25 845 600 Р
    Агент
    +7 (495) Показать номер
    Посмотреть контакты
    Помещение свободного назначения в Москва ул. Багрицкого, 3К1 (44 м) - Фото 1
    Помещение свободного назначения в Москва ул. Багрицкого, 3К1 (44 м) - Фото 2
    ОбъектВаш ключ к пассивному доходу: Уникальное предложение на первой линии Продается помещение 44,4 м с действующим долгосрочным договором аренды с федеральной аптечной сетью Вита . Это не просто недвижимость — это готовый бизнес, приносящий стабильную...
    • 1/9 эт.
    25 500 000 Р
    Агент
    +7 (992) Показать номер
    Посмотреть контакты

    Не нашли подходящего объявления?

    Оставьте заявку, и наши риэлторы подберут псн в районе Москвы

    (0)