Узнать последнюю цену

Реализация объекта недвижимости приостановлена

Информация об помещении

975.3 м2
Площадь
2
Этаж

Состояние и оснащение

Общая площадь складского комплекса, м2
975.3
Развернуть

Продажа производственного помещения, м. Отрадное, Алтуфьевское ш.

Арт.
Продается помещение – производственный блок – 975,3 кв.м на первом этаже, в многоэтажном производственном здании формата Light Industrial общей площадью 133 700 кв.м.
Помещение состоит из производственного блока и АБК на антресоли (расположенной на отметке +4 метра).
Состав помещений блока:Общая площадь блока: 975,3 кв. м;Производственная площадь: 767,3 кв. м;Антресоль: 208 кв. м;Количество ворот: 2 шт.
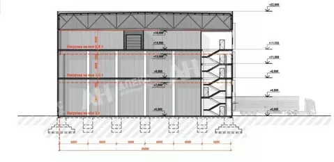
Основные технические параметры здания:Высота потолка – 7 метров;Нагрузка на пол – 4 т/кв.м ( на первом этаже) и 1,5 т/кв.м. (на 2 -4 этажах);Шаг колонн в производственной зоне – 12м х 12м;Антресоль – под размещение АБК.Четыре производственных этажа соединены автомобильными рампами с возможностью подъезда среднетоннажного автотранспорта на этаж.Все помещения обеспечены возможностью разгрузки крупнотоннажного и малотоннажного транспорта;Автпаркинг на кровле здания;Вертикальное сообщение обеспечено общими грузовыми лифтами. Грузовые лифты подъемной массой 5 тонн, габарит кабины 3х3,6 м, предназначенные для вертикального перемещения грузов между этажами. Обеспечивают возможность обработки грузов крупнотоннажного транспорта;Все коммуникации – центральные;Высокоскоростной интернет.
Здание подходит под разные виды производств (кроме пищевых).
Отличная локация! Близость к основным магистралям обеспечивает удобную логистику как для персонала, так и для грузоперевозок. До Алтуфьевского шоссе – 2 минуты, до Северо-Восточной хорды (СВХ) и Дмитровского шоссе – 5 минут, до Третьего транспортного кольца (ТТК) – 7 минут.
Имеются так же и другие блоки площадью от 800 до 2000 кв.м, кроме того возможно объединять блоки под технологические потребности арендатора. Звоните идет активное бронирование помещений!
Оперативный показ и быстрый выход на сделку!

Читать полностью
    Узнать последнюю цену

    Реализация объекта недвижимости приостановлена

    Не нашли подходящего объявления?

    Оставьте заявку, и наши риэлторы подберут производственное помещение в районе Москвы

    (0)