214 394 500 Р 2 655 600 $ или 2 315 200

Информация об помещении

2
Этаж

Состояние и оснащение

Количество этажей
3
Развернуть
Агент
+7 (986) 274-27-15
Начать чат с агентом

Производственное помещение в Московская область, Люберцы ...

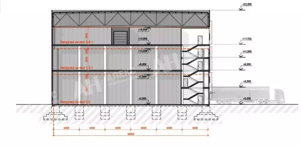
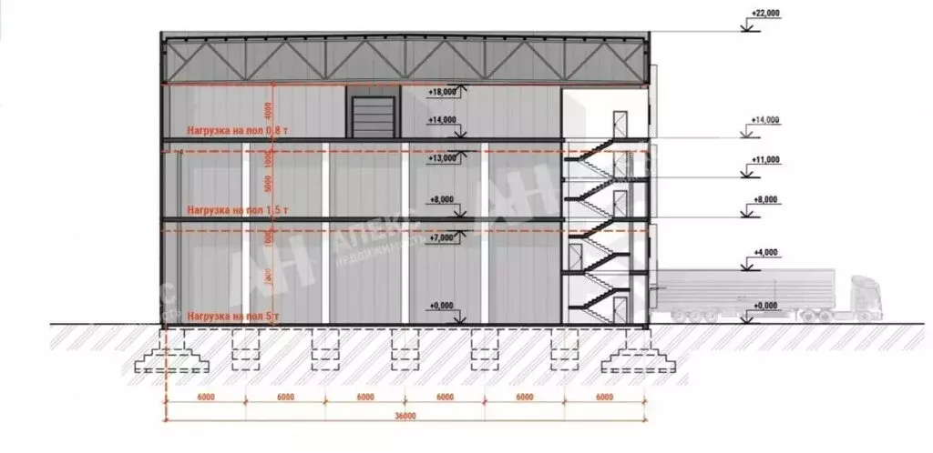
Лот 972552 Предложение от Собственника Продажа помещений в современном складском комплексе (А) расположен на территории индустриального парка Завод в Люберцах, в центре крупной промышленной зоны. Объект обладает выгодным расположением: в пяти минутах ходьбы находится станция МЦД-3 Панки , а в десяти минутах — станция Люберцы . Развитая транспортная логистика обеспечивает доступность — 8 км от МКАД, что занимает около 20 минут на автомобиле, и 2 км от трассы М5 Урал . Инфраструктура района включает магазины, аптеки и кафе в шаговой доступности. Для сотрудников предусмотрены близлежащий жилой массив и удобные транспортные узлы. Территория комплекса является огороженной и оборудована парковкой. Управление объектом осуществляет собственная управляющая компания.Индустриальный парк Завод в Люберцах реализуется в рамках концепции Конструктор , которая позволяет собственнику адаптировать помещение под конкретные производственные или складские задачи. Для каждого резидента парка предусмотрены выделенные парковочные места и погрузочная зона. На территории парка функционируют столовая, тренажерный зал и общежитие для рабочих. Есть возможность адаптации под нужны заказчика. В каждом блоке предусмотрен офис, кухня, душевая, санузел, тех.помещения. Технические характеристики: Высота потолков: 1ый этаж - 7м, 2й - 5м, 3ий - 4м. Нагрузка: 1ый - 5 т/м, 2й этаж - 1,5 т/м, 3ий - 0.8 т/м. Выделенная мощность: 25 кВт в каждом блоке (возможно увеличение, выделенная мощность на индустриальный парк 4,2 мВт). Собственная котельная мощностью 19 МВт/час, магистральный газ с ежегодным лимитом . тонн условного топлива, все центральные коммуникации. Объект обеспечен всеми необходимыми инженерными системами, включая современную систему автоматического пожаротушения, центральное отопление, водоснабжение и канализацию. Срок сдачи 2кв 2026г.Актуальные площади и цены (м2):1864.3 м2 (2 эт.) -. В цену включено: НДС 20 .Чтобы получить ПОДРОБНУЮ ПРЕЗЕНТАЦИЮ С ПЛАНИРОВКОЙ И ФОТОГРАФИЯМИ, звоните или отправьте свой email и номер телефона в сообщении на портале. Высылаем в течение 15 минут по запросу Конт. лицо: Алексей Владимирович, доб. 217, ЛОТ 972552

Читать полностью
    Позвонить Написать
    214 394 500 Р2 655 600 $ или 2 315 200
    Агент
    +7 (986) 274-27-15
    Начать чат с агентом
    Похожие предложения в Люберцах
    Производственное помещение в Московская область, Люберцы ... - Фото 1
    Производственное помещение в Московская область, Люберцы ... - Фото 2
    Лот 972529 Предложение от Собственника Продажа помещений в современном складском комплексе (А) расположен на территории индустриального парка Завод в Люберцах, в центре крупной промышленной зоны. Объект обладает выгодным расположением: в пяти минутах...
    • 1/2 эт.
    208 472 000 Р
    Агент
    +7 (986) Показать номер
    Посмотреть контакты
    Производственное помещение (1813 м) - Фото 1
    Производственное помещение (1813 м) - Фото 2
    Лот №972528 Предложение от Собственника Напишите нам в Ватсап, чтобы получить ПОДРОБНУЮ ПРЕЗЕНТАЦИЮ С ПЛАНИРОВКОЙ И ФОТОГРАФИЯМИ Продажа помещений в современном складском комплексе (А) расположен на территории индустриального парка «Завод в Люберцах,...
    • 1/2 эт.
    208 472 000 Р
    Агент
    +7 (495) Показать номер
    Посмотреть контакты
    Производственное помещение (1864 м) - Фото 1
    Производственное помещение (1864 м) - Фото 2
    Лот №972552 Предложение от Собственника Напишите нам в Ватсап, чтобы получить ПОДРОБНУЮ ПРЕЗЕНТАЦИЮ С ПЛАНИРОВКОЙ И ФОТОГРАФИЯМИ Продажа помещений в современном складском комплексе (А) расположен на территории индустриального парка «Завод в Люберцах,...
    • 2/3 эт.
    214 394 496 Р
    Агент
    +7 (495) Показать номер
    Посмотреть контакты
    Производственное помещение (1781 м) - Фото 1
    Производственное помещение (1781 м) - Фото 2
    Лот №972552 Предложение от Собственника Напишите нам в Ватсап, чтобы получить ПОДРОБНУЮ ПРЕЗЕНТАЦИЮ С ПЛАНИРОВКОЙ И ФОТОГРАФИЯМИ Продажа помещений в современном складском комплексе (А) расположен на территории индустриального парка «Завод в Люберцах,...
    • 1/3 эт.
    204 849 504 Р
    Агент
    +7 (495) Показать номер
    Посмотреть контакты
    Производственное помещение (1813 м) - Фото 1
    Производственное помещение (1813 м) - Фото 2
    Лот №972529 Предложение от Собственника Напишите нам в Ватсап, чтобы получить ПОДРОБНУЮ ПРЕЗЕНТАЦИЮ С ПЛАНИРОВКОЙ И ФОТОГРАФИЯМИ Продажа помещений в современном складском комплексе (А) расположен на территории индустриального парка «Завод в Люберцах,...
    • 1/2 эт.
    208 472 000 Р
    Агент
    +7 (495) Показать номер
    Посмотреть контакты

    Не нашли подходящего объявления?

    Оставьте заявку, и наши риэлторы подберут производственное помещение в районе Люберец

    (0)