57 366 000 Р 707 000 $ или 614 000

Информация о помещении и здании

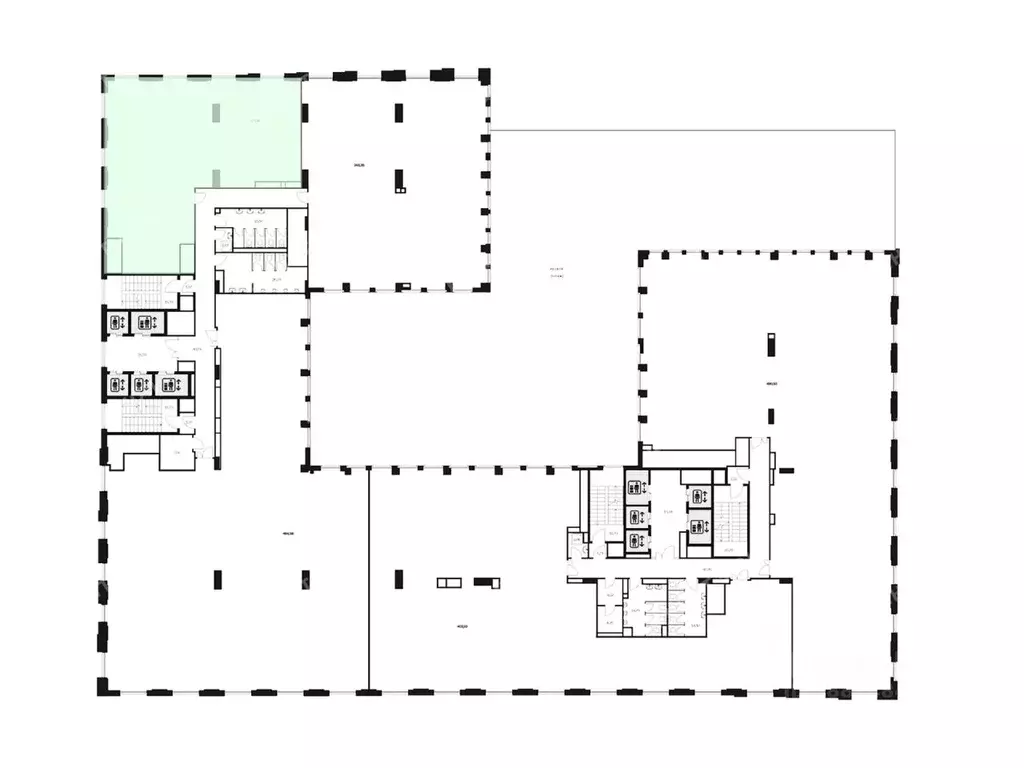
318.7 м2
Площадь
318.7 м2
Общая площадь
5
Этаж
9
Этажность
Развернуть
Агент
Наталья
+7 (903) 170-18-68
Начать чат с агентом

Продажа офиса, м. Воронцовская, Старокалужское ш.

30 метров от м.Воронцовская, ЮЗАО, р-н Коньково. Офисное помещение расположено в Бизнес-центре, на 5-м этаже. Площадь офиса 318,7 м2 (на плане этажа №3). Планировка кабинетная, большие панорамные окна по фасаду, высота потолков 3 метра, санузел. Офис с ремонтом, хорошая инсоляция за счет большого количества окон.
В офисах БЦ созданы условия для комфортной работы: установлено оборудование для приточно-вытяжной вентиляции и сплит-системы для поддержания микроклимата.
Парковка расположена на территории БЦ, наземная и круглосуточно охраняемая, с пропускной системой.
В здании БЦ Валлекс размещаются кафе, шоу-румы, офисы, мед.клиника, стоматологическая клиника, УК.
БЦ Валлекс – это 9-ти этажное здание площадью 24 978,6 м2, построенное в 1965 году. В здании 4 лифта, спринклерная система пожаротушения, круглосуточный пост охраны, системы видеонаблюдения, парковочная зона для 60 автомобилей. Въезд на парковку – через КПП. В офисной части БЦ действует пропускной режим. Здесь работают организации из самых разных сфер бизнеса.
Отличная транспортная доступность, рядом выезды на Профсоюзную улицу и Ленинский проспект. 10 минут пешком от м.Калужская и 2 мин.от м.Воронцовская. Объект № 547770Номер объекта: 5/547770/310

Читать полностью

    Для того, чтобы купить офис площадью 318 кв. метров по адресу: ЮЗАО, Обручевский, м. Воронцовская, Старокалужское ш., 62, позвоните по телефону +7 (903) 170-18-68. Торопитесь! Объявление №601814028 о продаже офиса площадью 318 кв. метров опубликовано Сегодня.

    Позвонить Написать
    57 366 000 Р707 000 $ или 614 000
    Агент
    Наталья
    +7 (903) 170-18-68
    Начать чат с агентом
    Похожие предложения
    Офис в Москва Сиреневый парк жилой комплекс (176 м) - Фото 1
    Офис в Москва Сиреневый парк жилой комплекс (176 м) - Фото 2
    16-й этаж, всего 26 этажей

    Офисное помещение 176.0 кв. м в бизнес-центре АФИ2В Тагильская . Прямая продажа, без комиссии. Объект на стадии активного строительства, готовность ко въезду уточняется по запросу. Округ: Восточный (ВАО). Район: Метрогородок. Характеристики:- Класс:...
    • 16/26 эт.
    57 729 493 Р
    Агент
    +7 (915) Показать номер
    Посмотреть контакты
    Офис в Москва Сиреневый парк жилой комплекс (176 м) - Фото 1
    Офис в Москва Сиреневый парк жилой комплекс (176 м) - Фото 2
    13-й этаж, всего 26 этажей

    Офисное помещение 176.0 кв. м в бизнес-центре АФИ2В Тагильская . Прямая продажа, без комиссии. Объект на стадии активного строительства, готовность ко въезду уточняется по запросу. Округ: Восточный (ВАО). Район: Метрогородок. Характеристики:- Класс:...
    • 13/26 эт.
    56 348 130 Р
    Агент
    +7 (915) Показать номер
    Посмотреть контакты
    Офис в Москва Сиреневый парк жилой комплекс (176 м) - Фото 1
    Офис в Москва Сиреневый парк жилой комплекс (176 м) - Фото 2
    14-й этаж, всего 26 этажей

    Офисное помещение 176.0 кв. м в бизнес-центре АФИ2В Тагильская . Прямая продажа, без комиссии. Объект на стадии активного строительства, готовность ко въезду уточняется по запросу. Округ: Восточный (ВАО). Район: Метрогородок. Характеристики:- Класс:...
    • 14/26 эт.
    56 808 584 Р
    Агент
    +7 (915) Показать номер
    Посмотреть контакты
    Продажа офиса 114.5 м2 - Фото 1
    Продажа офиса 114.5 м2 - Фото 2
    Продажа офиса 114.5 м2 - Фото 3
    Продажа офиса 114.5 м2 - Фото 4
    Продажа офиса 114.5 м2 - Фото 5
    Продажа офиса 114.5 м2 - Фото 6
    Продажа офиса 114.5 м2 - Фото 7
    Продажа офиса 114.5 м2 - Фото 8
    Продажа офиса 114.5 м2 - Фото 9
    Продажа офиса 114.5 м2 - Фото 10
    Продажа офиса 114.5 м2 - Фото 11
    Продажа офиса 114.5 м2 - Фото 12
    Продажа офиса 114.5 м2 - Фото 13
    Продажа офиса 114.5 м2 - Фото 14
    Продажа офиса 114.5 м2 - Фото 15
    Продажа офиса 114.5 м2 - Фото 16
    Продажа офиса 114.5 м2 - Фото 17
    реализуемая площадь 114.5м², 12-й этаж, всего 27 этажей

    Рассрочка 0% В проекте уже возведен монолит. Ведутся инженерные и фасадные работы. Продается офисное помещение класса «А» площадью 114,5 м2 в ультрасовременном комплексе бизнес-класса - ЭМОУШН от ГК ОСНОВА, расположенном в престижном районе Хорошёво-Мнёвники....
    • 114.5 м²
    • A
    • 12/27 эт.
    • парковка
    56 105 000 Р
    Агент
    +7 (495) Показать номер
    Посмотреть контакты
    Продажа офиса 123.8 м2 - Фото 1
    Продажа офиса 123.8 м2 - Фото 2
    Продажа офиса 123.8 м2 - Фото 3
    Продажа офиса 123.8 м2 - Фото 4
    Продажа офиса 123.8 м2 - Фото 5
    Продажа офиса 123.8 м2 - Фото 6
    Продажа офиса 123.8 м2 - Фото 7
    Продажа офиса 123.8 м2 - Фото 8
    Продажа офиса 123.8 м2 - Фото 9
    Продажа офиса 123.8 м2 - Фото 10
    Продажа офиса 123.8 м2 - Фото 11
    Продажа офиса 123.8 м2 - Фото 12
    Продажа офиса 123.8 м2 - Фото 13
    Продажа офиса 123.8 м2 - Фото 14
    Продажа офиса 123.8 м2 - Фото 15
    Продажа офиса 123.8 м2 - Фото 16
    Продажа офиса 123.8 м2 - Фото 17
    реализуемая площадь 123.8м², 6-й этаж, всего 27 этажей

    Рассрочка 0% В проекте уже возведен монолит. Ведутся инженерные и фасадные работы. Продается офисное помещение класса «А» площадью 123,8 м2 в ультрасовременном комплексе бизнес-класса - ЭМОУШН от ГК ОСНОВА, расположенном в престижном районе Хорошёво-Мнёвники....
    • 123.8 м²
    • A
    • 6/27 эт.
    • парковка
    57 567 000 Р
    Агент
    +7 (495) Показать номер
    Посмотреть контакты

    Не нашли подходящего объявления?

    Оставьте заявку, и наши риэлторы подберут офис в районе Москвы

    (0)