Россия, Москва, Сиреневый парк жилой комплекс
56 348 130 Р 693 100 $ или 603 100

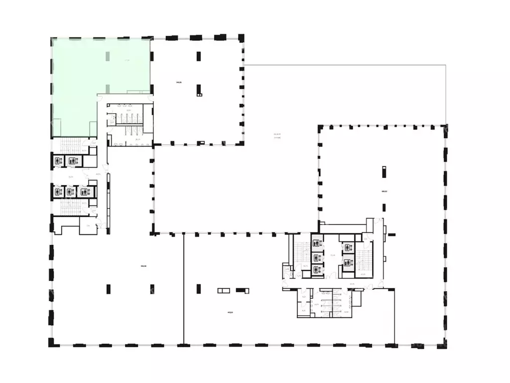
Информация о помещении и здании

13
Этаж
26
Этажность
Развернуть
Агент
+7 (915) 266-41-29
Начать чат с агентом

Офис в Москва Сиреневый парк жилой комплекс (176 м)

Офисное помещение 176.0 кв. м в бизнес-центре АФИ2В Тагильская . Прямая продажа, без комиссии. Объект на стадии активного строительства, готовность ко въезду уточняется по запросу. Округ: Восточный (ВАО). Район: Метрогородок. Характеристики:- Класс: A; - Арендопригодная площадь: 55218.1818; - Код налоговой: 18; - Высота потолков: 3 м, 5 м; - Наличие лифта: Есть. Стоимость: Финансовые условия: - Налог: Не облагается налогом. Оформление сделки напрямую от собственника, без комиссии.Готовы оперативно организовать просмотр в удобное время, предоставить PDF-презентацию и план. Точное местоположение объекта можно найти по данным координатам: 55.818106,37.751228 ID = c_1790140

Читать полностью
    Позвонить Написать
    56 348 130 Р693 100 $ или 603 100
    Агент
    +7 (915) 266-41-29
    Начать чат с агентом
    Похожие предложения в Москве
    Продажа офиса 137 м2 - Фото 1
    Продажа офиса 137 м2 - Фото 2
    Продажа офиса 137 м2 - Фото 3
    Продажа офиса 137 м2 - Фото 4
    Продажа офиса 137 м2 - Фото 5
    Продажа офиса 137 м2 - Фото 6
    Продажа офиса 137 м2 - Фото 7
    Продажа офиса 137 м2 - Фото 8
    Продажа офиса 137 м2 - Фото 9
    Продажа офиса 137 м2 - Фото 10
    Продажа офиса 137 м2 - Фото 11
    Продажа офиса 137 м2 - Фото 12
    Продажа офиса 137 м2 - Фото 13
    Продажа офиса 137 м2 - Фото 14
    реализуемая площадь 137м², 26-й этаж, всего 26 этажей

    Продается коммерческое помещение общей площадью 137 м2 на 26 этаже в строящемся бизнес-центре АФИ2В Тагильская. 26-этажный бизнес-центр АФИ2В Тагильская от девелопера с мировым именем AFI Development - это инновационный комплекс, задающий новый стандарт...
    • 137 м²
    • 26/26 эт.
    56 905 267 Р
    Агент
    +7 (495) Показать номер
    Посмотреть контакты
    Офис в Москва Сиреневый парк жилой комплекс (176 м) - Фото 1
    Офис в Москва Сиреневый парк жилой комплекс (176 м) - Фото 2
    11-й этаж, всего 26 этажей

    Офисное помещение 176.0 кв. м в бизнес-центре АФИ2В Тагильская . Прямая продажа, без комиссии. Объект на стадии активного строительства, готовность ко въезду уточняется по запросу. Округ: Восточный (ВАО). Район: Метрогородок. Характеристики:- Класс:...
    • 11/26 эт.
    55 427 221 Р
    Агент
    +7 (915) Показать номер
    Посмотреть контакты
    Офис в Москва Сиреневый парк жилой комплекс (176 м) - Фото 1
    Офис в Москва Сиреневый парк жилой комплекс (176 м) - Фото 2
    14-й этаж, всего 26 этажей

    Офисное помещение 176.0 кв. м в бизнес-центре АФИ2В Тагильская . Прямая продажа, без комиссии. Объект на стадии активного строительства, готовность ко въезду уточняется по запросу. Округ: Восточный (ВАО). Район: Метрогородок. Характеристики:- Класс:...
    • 14/26 эт.
    56 808 584 Р
    Агент
    +7 (915) Показать номер
    Посмотреть контакты
    Офис в Москва Тагильская ул., вл4 (137 м) - Фото 1
    Офис в Москва Тагильская ул., вл4 (137 м) - Фото 2
    26-й этаж, всего 26 этажей

    Продается офисное помещение на 26 этаже в БЦ AFI2B Тагильская, А класса, который находится по адресу: ул. Тагильская, влд. 4. Без комиссии для Покупателя ЛОКАЦИЯ:- Пешая доступность от станции метро Бульвар Рокоссовского. - Удобный выезд на МСД, Щелковское...
    • 26/26 эт.
    56 905 266 Р
    Агент
    +7 (989) Показать номер
    Посмотреть контакты
    Офис (175.97 м) - Фото 1
    Офис (175.97 м) - Фото 2
    11-й этаж, всего 26 этажей

    Офисное помещение 176.0 кв. м в бизнес-центре «АФИ2В Тагильская . Прямая продажа, без комиссии. Объект на стадии активного строительства, готовность ко въезду уточняется по запросу. Округ: Восточный (ВАО). Район: Метрогородок. Характеристики:- Класс:...
    • 11/26 эт.
    55 427 220 Р
    Агент
    +7 (980) Показать номер
    Посмотреть контакты

    Не нашли подходящего объявления?

    Оставьте заявку, и наши риэлторы подберут офис в районе Москвы

    (0)