Реализация объекта недвижимости приостановлена

Информация о помещении и здании

3
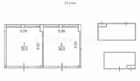
Этажность
Развернуть

Офис (1082 м)

ID: L10547Продаётся трёхэтажное офисное здание кабинетной планировки, расположенное в привлекательной и доступной локации, в районе метро Таганская и Пролетарская. Окружённая развитой инфраструктурой, территория вблизи здания богата разнообразными объектами: рядом имеются банковские отделения, розничные магазины, рестораны, аптеки и разнообразные сервисные службы, такие как салоны красоты. Дополнительным преимуществом является наличие порядка десяти свободных парковочных мест внутри двора, что особенно актуально для автомобилистов и существенно снижает затраты на парковку. В помещении проведен стандартный ремонт, обеспечено полноценное техническое обслуживание. Мощность 100 кВт, централизованное отопление и эффективная система кондиционирования. Участок земли площадью 1065 м2 закреплен договором аренды до 2059 года.Для уточнения параметров аренды или продажи, и записи на индивидуальный просмотр, звоните

Читать полностью

    Реализация объекта недвижимости приостановлена

    Не нашли подходящего объявления?

    Оставьте заявку, и наши риэлторы подберут офис в районе Москвы

    (0)