Россия, Москва, наб. Пресненская, 6с2
281 100 000 Р 3 577 000 $ или 3 028 600

Информация о помещении и здании

2
Этаж
59
Этажность
Развернуть
Агент
+7 (985) 158-20-12
Начать чат с агентом

Офис в Москва наб. Пресненская, 6с2 (375 м)

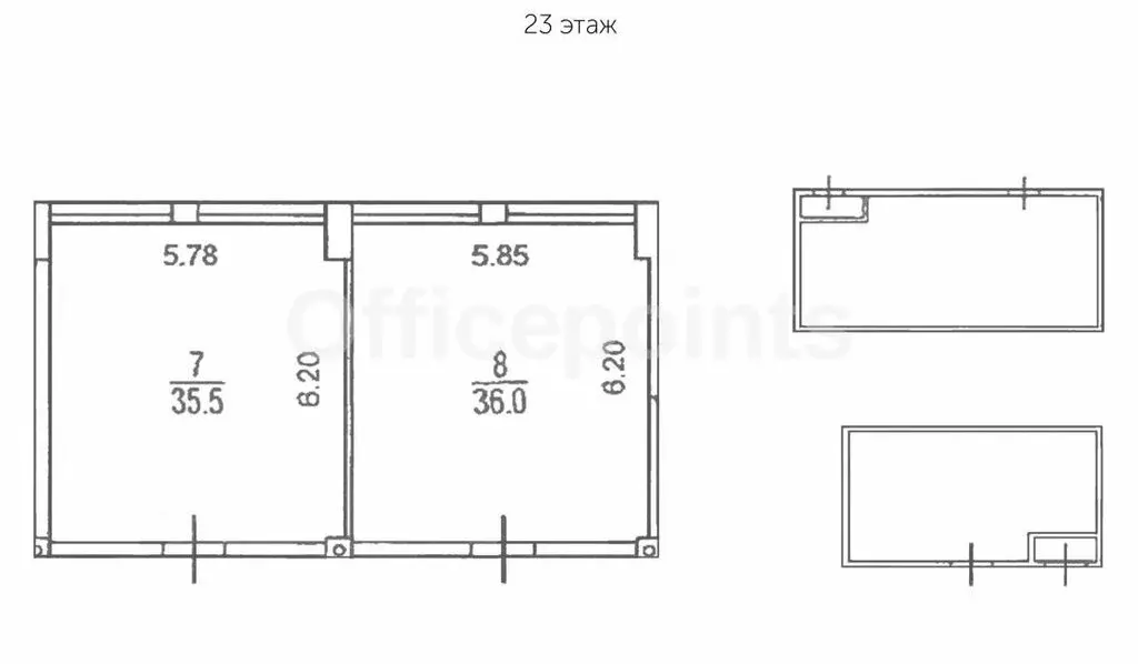
Продаём Офис в бизнес-центре Башня Империя по адресу: Москва, Пресненская набережная, 6с2. Рабочих мест: от 47 до 83*.Площадь: 375 м2.Планировка: смешанная.Состояние: готово к въезду.Цена за м2:Стоимость:Налог: включая НДС.Собственник: юр. лицо.Этаж: 2 из 59.Охрана: круглосуточная охрана здания.Метро рядом: м. Москва-Сити в 2 минутах пешком, м. Деловой центр в 2 минутах пешком. Этот адрес обслуживает налоговая 3. Парковка наземная, подземная.Системы здания:Вентиляция: приточно-вытяжная.Кондиционирование: центральное.Пожарная сигнализация: спринклерная система.Этот лот состоит из нескольких помещений: 253 кв. м. и 122 кв. м.>ID объекта - 06053. Объявление актуально. Пришлём презентацию объекта и альтернатив (5-10 шт.).*Количество рабочих мест рассчитано автоматически: от 4,5 м2 на человека до 8 м2 на человека.Почему клиенты доверяют нам?1. 12000 объектов коммерческой недвижимости Москвы и Области, включая эксклюзивные и внерыночные.2. Работаем без комиссии и скрытых платежей. Вы заключаете договор напрямую с собственником.3. Профессиональное сопровождение: консультации на каждом этапе, помощь в подборе оптимального решения для вашего бизнеса.4. 17 лет опыта в коммерческой недвижимости.Не тратьте время, доверьте поиски нам Позвоните, и мы оперативно организуем просмотр или подготовим подборку объектов.

Читать полностью
    Позвонить Написать
    281 100 000 Р3 577 000 $ или 3 028 600
    Агент
    +7 (985) 158-20-12
    Начать чат с агентом
    Похожие предложения
    Офис (828.1 м) - Фото 1
    Офис (828.1 м) - Фото 2
    10-й этаж, всего 28 этажей

    Продается офисное помещение на 10 этаже в МФК Водный, В+ класса, который находится по адресу: Головинское шоссе, д. 5, к. 1.Шаговая доступность от м. Водный стадион, Балтийская, Коптево. Удобный выезд на Ленинградское шоссе, Авангардную улицу и Кронштадтский...
    • 10/28 эт.
    281 553 984 Р
    Агент
    +7 (925) Показать номер
    Посмотреть контакты
    Офис (1300.9 м) - Фото 1
    Офис (1300.9 м) - Фото 2
    6-й этаж, всего 6 этажей

    Продается офисное помещение на 6 этаже в бизнес-центре Омега Плаза, В+ класса, который находится по адресу: ул. Ленинская Слобода, д. 19, стр. 6.Пешая доступность от станций метро Автозаводская, ЗИЛ. Удобный выезд на Велозаводскую улицу, Симоновский Вал,...
    • 6/6 эт.
    275 920 896 Р
    Агент
    +7 (925) Показать номер
    Посмотреть контакты
    Офис (839 м) - Фото 1
    Офис (839 м) - Фото 2
    17-й этаж, всего 25 этажей

    Продается офисное помещение на 17 и 23 этаже в бизнес-центре В класса, который находится по адресу: ул. Павла Корчагина, д. 2. Без комиссии для Арендатора ЛОКАЦИЯ:– Пешая доступность от станций метро Алексеевская, ВДНХ, Рижская.– Удобный выезд на проспект...
    • 17/25 эт.
    275 000 000 Р
    Агент
    +7 (925) Показать номер
    Посмотреть контакты
    Готовый бизнес.Салон красоты. (ном. объекта: 9703) - Фото 1
    Готовый бизнес.Салон красоты. (ном. объекта: 9703) - Фото 2
    Готовый бизнес.Салон красоты. (ном. объекта: 9703) - Фото 3
    Готовый бизнес.Салон красоты. (ном. объекта: 9703) - Фото 4
    Готовый бизнес.Салон красоты. (ном. объекта: 9703) - Фото 5
    Готовый бизнес.Салон красоты. (ном. объекта: 9703) - Фото 6
    Готовый бизнес.Салон красоты. (ном. объекта: 9703) - Фото 7
    общая площадь офисного здания 460м², реализуемая площадь 460м², 1-й этаж, всего 2 этажа

    ID 9703 Продается помещение общей площадью 462 кв.м. с готовым арендатором. Три этажа (подвал,первый и второй этаж). Просмотр по договоренности.
    • 460 м²
    • 1/2 эт.
    280 000 000 Р
    Агент
    +7 (925) Показать номер
    Агентство
    Panda Estate
    Посмотреть контакты
    Офис в Москва ул. Обручева, Вл23 (602 м) - Фото 1
    Офис в Москва ул. Обручева, Вл23 (602 м) - Фото 2
    17-й этаж, всего 18 этажей

    Офис класса А в ЮЗАО. Финальная стадия строительства. Готовность 90 .Продается офис в новом, концептуальном Бизнес-центре GEOLOG2. Бизнес-центр представляет собой отдельное офисное здание класса А: с просторным двухсветным лобби с панорамными окнами,...
    • 17/18 эт.
    278 216 400 Р
    Агент
    +7 (985) Показать номер
    Посмотреть контакты

    Не нашли подходящего объявления?

    Оставьте заявку, и наши риэлторы подберут офис в районе Москвы

    (0)