Реализация объекта недвижимости приостановлена

Информация о помещении и здании

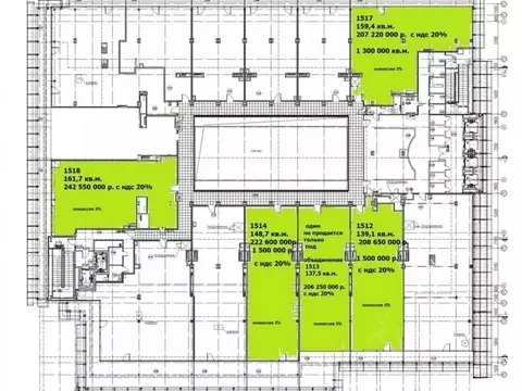
1
Этаж
2
Этажность
Развернуть

Офис (572 м)

ПЛАТИМ ВОЗНАГРАЖЕНИЕ Напишите нам или позвоните. 1) Направим презентацию в Whatsapp. 2) Показ в удобное время. 3) Согласуем условия для Вас и договор. Здание расположено на первой линии Садовнической набережной. Пешая доступность от нескольких станций метро. Описание помещения: Здание не является памятником архитектуры.По одной стене через арку прилегает к гостинице Гестен. Нет прилегающей территории. Железобетонные перекрытия. Отдельный вход. Этаж: 1. Планировка: смешанная. Дизайнерский ремонт. Подходит под: гостиницу. Высота потолка: 3м. Тип налогообложения: УСН. Форма сделки - продажа компании. Налоговая: 05. Лифты: Нет. Вентиляция: Приточно-вытяжная. Кондиционирование: Нет. Безопасность: Круглосуточный доступ, Круглосуточная охрана, Система пожаротушений, Видеонаблюдение. Провайдеры: . Парковка: Наземная. Лот

Читать полностью

    Реализация объекта недвижимости приостановлена

    Не нашли подходящего объявления?

    Оставьте заявку, и наши риэлторы подберут офис в районе Москвы

    (0)