Россия, Москва, 2-я Брестская ул., 6
243 000 000 Р 3 062 800 $ или 2 614 600

Информация о помещении и здании

12
Этаж
12
Этажность
Развернуть
Агент
+7 (989) 407-39-26
Начать чат с агентом

Офис в Москва 2-я Брестская ул., 6 (162 м)

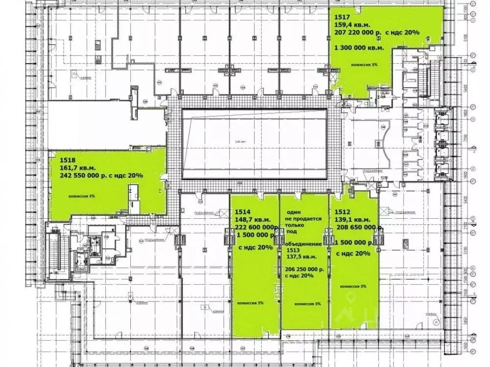
Предложение на продажу 62451.Парковка: Цена с НДС 20 .Продажа офисного помещения 161.7 м в Резиденция Тверская . Элитный комплекс — проект в центре Москвы, недалеко от метро Маяковская.. На 6, 7, 8, 9, 10, 11 этажах комплекса расположены апартаменты/офисы, а на самом верхнем, 12-ом этаже — пентхаусы/офисы с террасами. В каждом из которых имеется свой капсульный лифт.. . Помещение 1518 с отделкой. Оформлена собственность. Общая площадь: 161,7 м. + терраса: 25 м. . Высота потолка: до 4,5 м. . Собственная эксплуатируемая кровля: 103 м. . В холле комплекса вас ждут различные услуги, например: лобби-бар, кабинет ногтевого сервиса и парикмахерских услуг, тренажерный зал, SPA-комплекс с массажным кабинетом, детская игровая комната, домашний кинотеатр, переговорная и сигарная комнаты.. . Имеется многоуровневый современный паркинг-сейф. Основа умной системы парковки — новейшие компьютерные и лазерные технологии. Они позволяют, например, полностью автоматизировать процесс парковки автомобиля. Кроме того, обеспечивают безопасность и сохранность транспортного средства.. . Количество м/м по классам авто: . Класс Седан 108 м/м . Класс SUV (Класс Кроссовер/Jeep) 26 м/м . Стоимость (Седан): м/м. Стоимость SUV (класс Кроссовер/Джип): м/м.Без комиссии.

Читать полностью
    Позвонить Написать
    243 000 000 Р3 062 800 $ или 2 614 600
    Агент
    +7 (989) 407-39-26
    Начать чат с агентом
    Похожие предложения
    м. Киевская, 1-й Тружеников пер., 668 м2, "Продажа здания" (ном. ... - Фото 1
    м. Киевская, 1-й Тружеников пер., 668 м2, "Продажа здания" (ном. ... - Фото 2
    м. Киевская, 1-й Тружеников пер., 668 м2, "Продажа здания" (ном. ... - Фото 3
    м. Киевская, 1-й Тружеников пер., 668 м2, "Продажа здания" (ном. ... - Фото 4
    м. Киевская, 1-й Тружеников пер., 668 м2, "Продажа здания" (ном. ... - Фото 5
    м. Киевская, 1-й Тружеников пер., 668 м2, "Продажа здания" (ном. ... - Фото 6
    м. Киевская, 1-й Тружеников пер., 668 м2, "Продажа здания" (ном. ... - Фото 7
    м. Киевская, 1-й Тружеников пер., 668 м2, "Продажа здания" (ном. ... - Фото 8
    м. Киевская, 1-й Тружеников пер., 668 м2, "Продажа здания" (ном. ... - Фото 9
    м. Киевская, 1-й Тружеников пер., 668 м2, "Продажа здания" (ном. ... - Фото 10
    общая площадь офисного здания 668м², реализуемая площадь 668м², 3-й этаж, всего 3 этажа

    На продажу предлагается отдельно стоящее здание. Удалённость от станции метро Киевская не более 10 минут. Удобная транспортная доступность и выезд на Садовое кольцо и Кутузовский проспект. Четыре уровня - 3 этажа и цоколь. В помещениях выполнен офисный...
    • 668 м²
    • 3/3 эт.
    250 000 000 Р
    Агент
    +7 (926) Показать номер
    Посмотреть контакты
    8-й этаж, всего 8 этажей

    Лучшее предложение в ЗАО Продажа офиса класса В+Назначение - размещение собственной компании или арендный бизнес- быстрая окупаемость- доходность - от 15 Заполненность арендаторами всегда - 100 Размещение собственной компанииПомещение с отделкой из...
    • 8/8 эт.
    239 550 000 Р
    Агент
    +7 (985) Показать номер
    Посмотреть контакты
    2-й этаж, всего 6 этажей

    Собственник продаетБизнес-центр Becker PlazaКласса В+Введен в эксплуатацию в 2009Покупка для размещения собственной компании или как арендный бизнес- быстрая окупаемость- высокая доходностьОфисный блокЭтаж - 2Помещение с качественной отделкойПланировка...
    • 2/6 эт.
    232 260 000 Р
    Агент
    +7 (985) Показать номер
    Посмотреть контакты
    Офис в Москва наб. Пресненская, 12 (285 м) - Фото 1
    Офис в Москва наб. Пресненская, 12 (285 м) - Фото 2
    22-й этаж, всего 97 этажей

    1007428 . Предлагаем офисное помещение площадью 285 кв. м, расположенное на 22 этаже бизнес-центра Башня Федерация Преимущества объекта:- Бизнес-центр класса А- Шаговая доступность от станции метро Деловой Центр (1 минута пешком)- Этаж: 22- Помещение...
    • 22/97 эт.
    242 250 000 Р
    Агент
    +7 (938) Показать номер
    Посмотреть контакты
    Офис в Москва проезд Загорского, 11 (570 м) - Фото 1
    Офис в Москва проезд Загорского, 11 (570 м) - Фото 2
    1-й этаж, всего 5 этажей

    Продаётся офисное помещение на пересечении Аминьевского/Можайского/ Рублевского шоссе и Кутузовского проспекта. В относительной близости станции метро Кунцевская и Давыдково.Офис общей площадью 570 кв.м. с кабинетной планировкой и наличием мебели. 2 входа...
    • 1/5 эт.
    230 000 000 Р
    Агент
    +7 (916) Показать номер
    Посмотреть контакты

    Не нашли подходящего объявления?

    Оставьте заявку, и наши риэлторы подберут офис в районе Москвы

    (0)