7 500 000 Р 94 530 $ или 80 700

Информация об комнате

25.2 м2
Комната
11
Этаж
12
Этажность

Состояние и оснащение

Лифт
есть

Дополнительная информация

Количество комнат
3
Количество продаваемых комнат
1
Лифт
Развернуть
Агент
+7 (980) 149-82-35
Начать чат с агентом

Комната Москва ул. Маршала Федоренко, 14К2 (25.2 м)

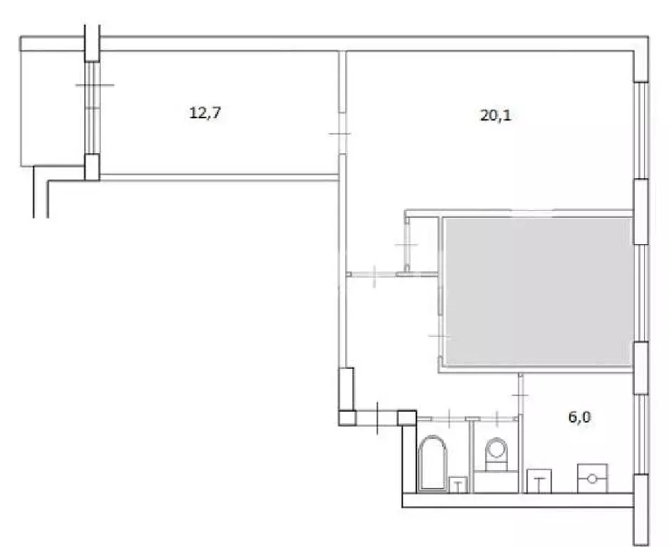
Номер лота: вт-0430351.Продаются 2-е уютные, теплые комнаты в трёхкомнатной квартире, на 11 этаже в 12 этажном доме, с косметическим ремонтом. Серия дома 1605-АМ-12. В тихом, зеленом районе на севере Москвы, в пяти минутах от станции метро Ховрино. Удобная планировка, комнаты изолированные - 13,6 и 11,6 кв.м., с застекленной лоджией, кухня 6,5 кв.м, санузел раздельный. Чистыи? подъезд, два пассажирских лифта. Приветливый, аккуратный сосед. Инфраструктура максимально развита и всё необходимое для жизни находится в пешей? доступности. В районе, 3 детских сада, 2 общеобразовательные школы, бассейн, школа искусств и музыки. Поликлиника, Сбербанк, магазины - Перекресток, Магнит, Пятерочка. Рядом, Химкинскии? лесопарк, ледовыи? дворец имени Михайлова (хоккеи?, фигурное катание, лыжи), конно-спортивная база ЦСКА , зона отдыха Левоборежная , пляж, площадки для занятия спортом, ляжный волейбол. Удобная транспортная доступность до м. Ховрино - 5 минут пешком, до ж/д станции Ховрино Д-3 (Ленинградское направление) - 3 минуты. А также автобус до м. Речнои? вокзал, м.Селигерская, м. Петровско - Разумовская. Взрослые собственники, проживают с 2003 года, приватизация с 2017 года. Быстрыи? выход на сделку, документы готовы, возможна ипотека, а также продажа комнат по отдельности. Оперативныи? показ. Содействие в получении специальных условий и преференций по ипотеке.

Читать полностью
    Позвонить Написать
    7 500 000 Р94 530 $ или 80 700
    Агент
    +7 (980) 149-82-35
    Начать чат с агентом
    Похожие предложения
    Продается комната в 3-комнатной квартире - Фото 1
    Продается комната в 3-комнатной квартире - Фото 2
    Лот 66908 в свободной продаже, 2 комнаты в 3х комнатной коммунальной квартире. Квартира без мебели и ремонта. В собственности более 5-ти лет, 1 взрослый собственник.
    • 1 ком.
    • 5/9 эт.
    • 59 м²
    7 500 000 Р
    Агент
    +7 (916) Показать номер
    Посмотреть контакты
    Продается комната в 3-комнатной квартире - Фото 1
    Продается комната в 3-комнатной квартире - Фото 2
    Лот 66908 в свободной продаже, 2 комнаты в 3х комнатной коммунальной квартире. Квартира без мебели и ремонта. В собственности более 5-ти лет, 1 взрослый собственник.
    • 1 ком.
    • 5/9 эт.
    • 59 м²
    7 500 000 Р
    Агент
    +7 (916) Показать номер
    Посмотреть контакты
    Продается комната в 3-комнатной квартире - Фото 1
    Продается комната в 3-комнатной квартире - Фото 2
    Свободная продажа. Один взрослый собственник. Полная стоимость в ДКП. Уведомление о преимущественном праве покупки отправлено и получено. Быстрый выход на сделку. Предлагается к продаже 2/3 доли в 3-х комнатной квартире. Определён порядок пользования...
    • 1 ком.
    • 1/9 эт.
    • 75 м²
    7 500 000 Р
    Агент
    +7 (903) Показать номер
    Посмотреть контакты
    Комната Москва Донская ул., 28 (17.3 м) - Фото 1
    Комната Москва Донская ул., 28 (17.3 м) - Фото 2
    Номер в базе: 1787945. УНИКАЛЬНОЕ ПРЕДЛОЖЕНИЕ ОТ ЭТАЖИ И БАНКА ПАРТНЕРА НА ПОЛУЧЕНИЕ ИПОТЕЧНОЙ СТАВКИ от 16,4 Продается уютная комната 17.3 кв.м. в трехкомнатной квартире в сталинском доме в центре Москвы .В комнате сделан качественный ремонт.Общая...
    • 1 ком.
    • 7/7 эт.
    • 17.3 м²
    7 425 000 Р
    Агент
    +7 (923) Показать номер
    Посмотреть контакты
    Комната Москва Сумской проезд, 27 (29.3 м) - Фото 1
    Комната Москва Сумской проезд, 27 (29.3 м) - Фото 2
    Вашему вниманию предлагается 2 изолированные комнаты 13.3 кв.м и 16, кв.м в трехкомнатной квартире коммунального заселения.. В третьей комнате проживает очень адекватный молодой человек. Квартира без ремонта. Сосед не против сделать ремонт вместе. Хорошее...
    • 1 ком.
    • 3/9 эт.
    • 29.3 м²
    7 600 000 Р
    Агент
    +7 (984) Показать номер
    Посмотреть контакты

    Не нашли подходящего объявления?

    Оставьте заявку, и наши риэлторы подберут комнату в районе Москвы

    (0)