7 500 000 Р 95 030 $ или 82 090

Информация об комнате

14 м2
Комната
10
Этаж
12
Этажность

Состояние и оснащение

Лифт
есть

Дополнительная информация

Количество комнат
3
Количество продаваемых комнат
1
Лифт
Развернуть
Агент
+7 (915) 207-99-93
Начать чат с агентом

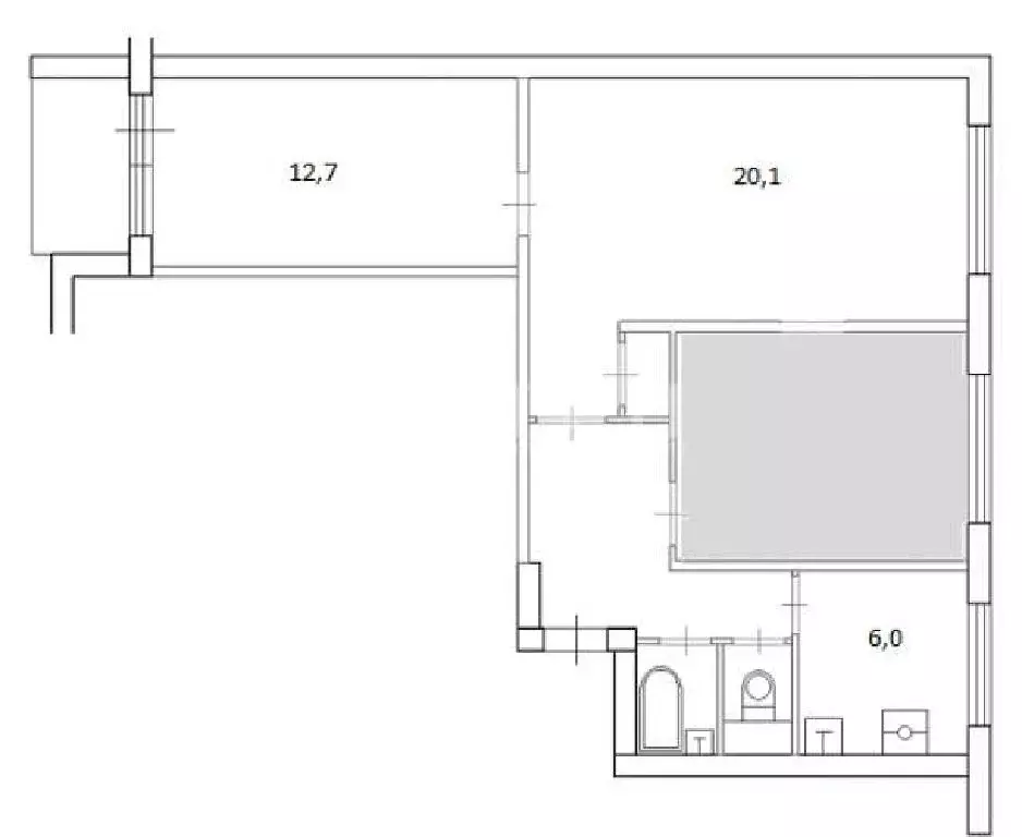
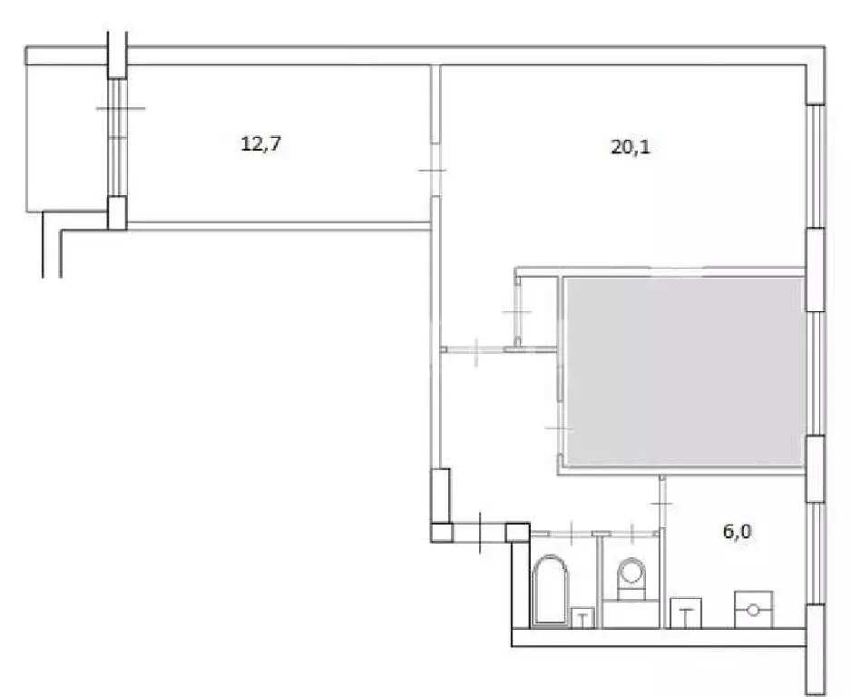
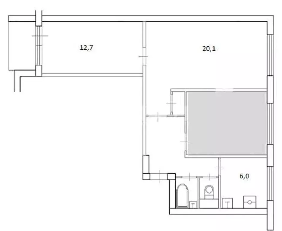
Комната Москва Мичуринский просп., 38 (14.0 м)

Код объекта: 1766454.Уникальное предложение на рынке недвижимости МосквыОписание объекта:Продаётся комната в коммунальной квартире по адресу: Мичуринский проспект, 38, Москва. Комната расположена на 10-м этаже 12-этажного панельного дома, построенного в 1972 году. Общая площадь составляет 14 кв. м, площадь кухни — 10 кв. м. В комнате выполнен косметический ремонт, есть лоджия. Окна выходят на улицу.Преимущества:Выгодная цена: это предложение станет настоящей находкой для тех, кто ищет доступное жильё в Москве. Благодаря привлекательной стоимости, комната может стать отличным вариантом для студентов или молодых специалистов, которые хотят жить в комфорте и безопасности. Удобное расположение: Мичуринский проспект — это один из самых удобных районов Москвы. Здесь хорошо развита инфраструктура, есть всё необходимое для жизни: магазины, школы, детские сады, поликлиники, спортивные клубы. Благодаря хорошей транспортной доступности, вы сможете быстро добраться до любой точки города.Подробности:Комната находится в кирпичном доме с железобетонными перекрытиями. Отопление центральное. В квартире один раздельный санузел. Комната угловая, что обеспечивает хорошую вентиляцию и освещение.Это предложение идеально подходит для тех, кто ищет доступное и удобное жильё в Москве. Не упустите свой шанс стать обладателем этой комнаты Почему стоит выбрать нас?Поможем одобрить ипотеку с сниженной ставкой.Свяжитесь с нами прямо сейчас, чтобы узнать больше о комнате и условиях покупки. Мы будем рады ответить на все ваши вопросы и помочь вам сделать правильный выбор.

Читать полностью
    Позвонить Написать
    7 500 000 Р95 030 $ или 82 090
    Агент
    +7 (915) 207-99-93
    Начать чат с агентом
    Похожие предложения
    Комната Москва просп. Вернадского, 58 (16.5 м) - Фото 1
    Комната Москва просп. Вернадского, 58 (16.5 м) - Фото 2
    Продается уютная комната с балконом в трехкомнатной квартире по адресу: Москва, пр-т Вернадского, 58. Это идеальное предложение для тех, кто ценит комфорт и удобство городской жизни Комната площадью 11,6 кв. м. с балконом — это ваше личное пространство,...
    • 1 ком.
    • 11/22 эт.
    • 16.5 м²
    7 500 000 Р
    Агент
    +7 (933) Показать номер
    Посмотреть контакты
    Продается комната в 3-комнатной квартире - Фото 1
    Продается комната в 3-комнатной квартире - Фото 2
    Лот 66908 в свободной продаже, 2 комнаты в 3х комнатной коммунальной квартире. Квартира без мебели и ремонта. В собственности более 5-ти лет, 1 взрослый собственник.
    • 1 ком.
    • 5/9 эт.
    • 59 м²
    7 500 000 Р
    Агент
    +7 (916) Показать номер
    Посмотреть контакты
    Продается комната в 3-комнатной квартире - Фото 1
    Продается комната в 3-комнатной квартире - Фото 2
    Лот 66908 в свободной продаже, 2 комнаты в 3х комнатной коммунальной квартире. Квартира без мебели и ремонта. В собственности более 5-ти лет, 1 взрослый собственник.
    • 1 ком.
    • 5/9 эт.
    • 59 м²
    7 500 000 Р
    Агент
    +7 (916) Показать номер
    Посмотреть контакты
    Продается комната в 3-комнатной квартире - Фото 1
    Продается комната в 3-комнатной квартире - Фото 2
    Лот 66908 в свободной продаже, 2 комнаты в 3х комнатной коммунальной квартире. Квартира без мебели и ремонта. В собственности более 5-ти лет, 1 взрослый собственник.
    • 1 ком.
    • 5/9 эт.
    • 59 м²
    7 500 000 Р
    Агент
    +7 (916) Показать номер
    Посмотреть контакты
    Продается комната в 3-комнатной квартире - Фото 1
    Продается комната в 3-комнатной квартире - Фото 2
    Свободная продажа. Один взрослый собственник. Полная стоимость в ДКП. Уведомление о преимущественном праве покупки отправлено и получено. Быстрый выход на сделку. Предлагается к продаже 2/3 доли в 3-х комнатной квартире. Определён порядок пользования...
    • 1 ком.
    • 1/9 эт.
    • 75 м²
    7 500 000 Р
    Агент
    +7 (903) Показать номер
    Посмотреть контакты

    Не нашли подходящего объявления?

    Оставьте заявку, и наши риэлторы подберут комнату в районе Москвы

    (0)