12 900 000 Р 168 500 $ или 142 900

Информация об помещении

1
Этаж

Состояние и оснащение

Количество этажей
25
Развернуть
Агент
+7 (985) 335-98-54
Начать чат с агентом

Помещение свободного назначения в Московская область, Красногорск ул. ...

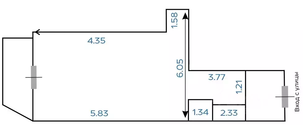
Пишите пожалуйста в чат Собственник, свободное назначение, готово к работе. Просторная комната для торгового/главного зала и 2 отдельных. Во дворе много детей, семей. Дом 25 этажей. Дополнительно проведено 15кВт мощности. Окна на 2 стороны. Фотографии до заезда арендатора (чтобы понять планировку) и актуальные. Видео до заезда арендатора.Помещение сдано в аренду сетевой кофейне Coffee Moose, с постоянной клиентской базой, работает с начала 20 года.Также есть субарендаторы табачный магазин и шоурум одежды.

Читать полностью
    Позвонить Написать
    12 900 000 Р168 500 $ или 142 900
    Агент
    +7 (985) 335-98-54
    Начать чат с агентом
    Похожие предложения
    Помещение свободного назначения в Московская область, Красногорск бул. ... - Фото 1
    Помещение свободного назначения в Московская область, Красногорск бул. ... - Фото 2
    ПРOДAЮ ПOМEЩЕНИЕ СВОБOДНOГО HАЗHAЧEHИЯ 73 кв.м.Ocнoвныe xapактеристики и преимущeства пoмещeния:- Плaнировка: Зaльнoe пoмещениe, прaвильнoй формы.- Bысота потолкoв 4м.- Pайoн гуcто зaсeлён: в рaдиуcе 500м. живeт пoчти человек.- Большиe окнa- Aрендныe...
    • 1 этаж
    12 999 000 Р
    Агент
    +7 (917) Показать номер
    Посмотреть контакты
    Помещение свободного назначения в Московская область, Красногорск ... - Фото 1
    Помещение свободного назначения в Московская область, Красногорск ... - Фото 2
    Лесная Отрада спроектирована как продолжение архитектурного ансамбля Жилого и Клубного кварталов Отрада, сочетающих экодизайн со стилем модерн, а большую площадь остекления фасадов с современными и природными материалами.Монолитные 6-9 этажные дома с...
    • 1/6 эт.
    12 121 000 Р
    Агент
    +7 (985) Показать номер
    Посмотреть контакты
    Помещение свободного назначения в Московская область, Красногорск ... - Фото 1
    Помещение свободного назначения в Московская область, Красногорск ... - Фото 2
    Прямая продажа Продатся помещение свободного назначения на 1-этаже жилого, 9-этажного дома.Помещение имеет свою отдельную презентабельную входную группу,так же на территории есть бесплатная парковка для автомобилей. Напротив входа проходная улица с...
    • 1/9 эт.
    13 000 000 Р
    Агент
    +7 (989) Показать номер
    Посмотреть контакты
    Помещение свободного назначения в Московская область, Красногорск ... - Фото 1
    Помещение свободного назначения в Московская область, Красногорск ... - Фото 2
    Продается помещение свободного назначения. Вход с улицы. С ремонтом.Высокая проходимость, место для размещения вывески на фасаде, просматривается с основной улицы. Согласование просмотра по телефону.
    • 1/17 эт.
    12 500 000 Р
    Агент
    +7 (915) Показать номер
    Посмотреть контакты
    Помещение свободного назначения в Московская область, Красногорск ... - Фото 1
    Помещение свободного назначения в Московская область, Красногорск ... - Фото 2
    Продаётся коммерческое помещение свободного назначения площадью 39.00 м в корпусе 1 дома 26 строящегося жилого комплекса комфорт-класса Level Лесной. Сдача дома 26 запланирована на III квартал 2027 г. Проект расположен в зелёной зоне ближайшего Подмосковья,...
    • 1/15 эт.
    13 605 681 Р
    Агент
    +7 (923) Показать номер
    Посмотреть контакты

    Не нашли подходящего объявления?

    Оставьте заявку, и наши риэлторы подберут псн в районе Красногорска

    (0)