12 121 000 Р 157 900 $ или 134 300

Информация об помещении

1
Этаж

Состояние и оснащение

Количество этажей
6
Развернуть
Агент
+7 (985) 555-47-98
Начать чат с агентом

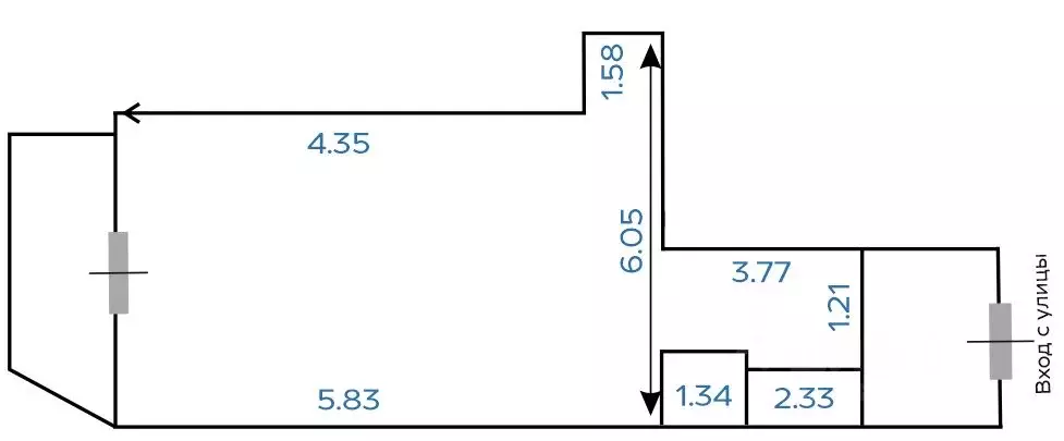
Помещение свободного назначения в Московская область, Красногорск ...

Лесная Отрада спроектирована как продолжение архитектурного ансамбля Жилого и Клубного кварталов Отрада, сочетающих экодизайн со стилем модерн, а большую площадь остекления фасадов с современными и природными материалами.Монолитные 6-9 этажные дома с фасадами из темного и светлого кирпича, дополненные стеклянными плоскостями балконов, гармонично вписываются в природный ландшафт.

Читать полностью
    Позвонить Написать
    12 121 000 Р157 900 $ или 134 300
    Агент
    +7 (985) 555-47-98
    Начать чат с агентом
    Похожие предложения
    Помещение свободного назначения в Московская область, Красногорск ул. ... - Фото 1
    Помещение свободного назначения в Московская область, Красногорск ул. ... - Фото 2
    Код объекта: 2029270.Продается помещение свободного назначения , подойдет под Ваш бизнес. Помещение расположено на первом этаже современного жилого дома . Отдельный вход. Удобная планировка. Активный пешеходный и автомобильный трафик обеспечивают хороший...
    • 1/17 эт.
    11 000 000 Р
    Агент
    +7 (910) Показать номер
    Посмотреть контакты
    Помещение свободного назначения в Московская область, Красногорск ул. ... - Фото 1
    Помещение свободного назначения в Московская область, Красногорск ул. ... - Фото 2
    Продается помещение свободного назначения , подойдет под Ваш бизнес. Помещениеасположено на первом этаже современного жилого дома . Отдельный вход. Удобная планировка. Активный пешеходный и автомобильный трафик обеспечивают хороший канал привлечения клиентов....
    • 1/17 эт.
    11 000 000 Р
    Агент
    +7 (986) Показать номер
    Посмотреть контакты
    Помещение свободного назначения в Московская область, Красногорск бул. ... - Фото 1
    Помещение свободного назначения в Московская область, Красногорск бул. ... - Фото 2
    Уникальная возможность для Вас Продается премиальное помещение свободного назначения площадью 46 м в очень проходимом месте жилого комплекса Изумрудные холмы . Объект полностью готов к запуску бизнеса просто вносите свое направление 1. Идеальное Расположение:...
    • -1/25 эт.
    11 990 000 Р
    Агент
    +7 (985) Показать номер
    Посмотреть контакты
    Помещение свободного назначения в Московская область, Красногорск ... - Фото 1
    Помещение свободного назначения в Московская область, Красногорск ... - Фото 2
    Продается помещение свободного назначения. Вход с улицы. С ремонтом.Высокая проходимость, место для размещения вывески на фасаде, просматривается с основной улицы. Согласование просмотра по телефону.
    • 1/25 эт.
    13 000 000 Р
    Агент
    +7 (923) Показать номер
    Посмотреть контакты
    Помещение свободного назначения в Московская область, Красногорск ... - Фото 1
    Помещение свободного назначения в Московская область, Красногорск ... - Фото 2
    Арт.. Цокольный этаж в жилом доме. площадь 405м. два отдельных входа -можно разделить на два помещения. потолки под 3 метра. с ремонтом. кабинетная планировка. электро мощность 30 кВт. В собственности с 17 года. один собствнник, физик. быстрый выход...
    • -1/9 эт.
    12 500 000 Р
    Агент
    +7 (985) Показать номер
    Посмотреть контакты

    Не нашли подходящего объявления?

    Оставьте заявку, и наши риэлторы подберут псн в районе Красногорска

    (0)