103 090 000 Р 1 309 300 $ или 1 121 800

Информация об помещении

1
Этаж

Состояние и оснащение

Количество этажей
1
Развернуть
Агент
+7 (938) 656-74-88
Начать чат с агентом

Помещение свободного назначения в Московская область, Химки городской ...

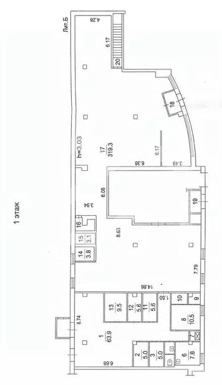
1094173. Предлагается блок площадью 780 кв. м. в современном производственно-складском здание формата Лайт Индастриал, в районе д. Елино по Ленинградскому шоссе.Преимущества:Популярное логистическое и производственное направление в Московском регионе.Быстрый выезд на Ленинградское шоссе (200 м) и М-11 НЕВА (3 км), 18 минут до МКАД.Рядом остановка общественного транспорта до Москвы и Зеленограда.В пешей доступности остановки общественного транспорта в Москву и Зеленоград и станция МЦД-3 Фирсановская.Возможность объединения соседних блоков (здание состоит из 3-х блоков по 780 кв. м.).Профессиональный девелопер и управляющая компания.Мезонин над доками для размещения АБК.Полный пакет коммуникаций (вода, канализация, отопление от своей котельной).Антипылевое покрытие пола.Современный объект формата Лайт Индастриал на популярном и престижном северо-западном направлении, отлично подходящий под нужды малого и среднего бизнеса и производства.Технические характеристики:Общая площадь: 780 кв. м. (в т.ч. АБК на мезонине 168 кв. м.).Рабочая высота: 8 м.Шаг колонн: 12 18 м.Нагрузка на пол не менее 5 т/м.2 доковых ворот с доклевеллерами и докшелтерами.Электрическая мощность: 25 кВт, с возможностью увеличения.Ввод в эксплуатацию в 4 кв. 2026 года.Так как корректный адрес отсутствует на Яндекс.Картах, введен ориентировочный.

Читать полностью
    Позвонить Написать
    103 090 000 Р1 309 300 $ или 1 121 800
    Агент
    +7 (938) 656-74-88
    Начать чат с агентом
    Похожие предложения
    Помещение свободного назначения в Московская область, Химки городской ... - Фото 1
    Помещение свободного назначения в Московская область, Химки городской ... - Фото 2
    1094173. Предлагается блок площадью 780 кв. м. в современном производственно-складском здание формата Лайт Индастриал, в районе д. Елино по Ленинградскому шоссе.Преимущества:Популярное логистическое и производственное направление в Московском регионе.Быстрый...
    • 1/1 эт.
    103 090 000 Р
    Агент
    +7 (938) Показать номер
    Посмотреть контакты
    Помещение свободного назначения в Московская область, Ленинский ... - Фото 1
    Помещение свободного назначения в Московская область, Ленинский ... - Фото 2
    ЛотПредложение от Собственника Продажа коммерческого помещения 409,7 м в ЖК Пригород Лесное .Крупный угловой блок, объединение 4 помещений. Подойдёт под федеральный ритейл, супермаркет, медцентр, фитнес или ресторан.Характеристики:Общая площадь — 409,7...
    • 1/17 эт.
    100 000 000 Р
    Агент
    +7 (986) Показать номер
    Посмотреть контакты
    Продажа ПСН, Богородский г. о. - Фото 1
    Продажа ПСН, Богородский г. о. - Фото 2
    Продажа ПСН, Богородский г. о. - Фото 3
    Продажа ПСН, Богородский г. о. - Фото 4
    Продажа ПСН, Богородский г. о. - Фото 5
    Продажа ПСН, Богородский г. о. - Фото 6
    Продажа ПСН, Богородский г. о. - Фото 7
    Продажа ПСН, Богородский г. о. - Фото 8
    общая площадь 1700м², полезная площадь 1700м²

    Продается действующий техцентр Автопремиум. Полностью оборудован для ремонта и обслуживания легковых и легких коммерческих автомобилей. Свет, вода, отопление, канализация централизованы. Земельный участок 17 соток. Помещение 700 кв.м. Плюс второй участок...
    • 1 700 м²
    • 1-й эт.
    90 000 000 Р
    Агент
    +7 (926) Показать номер
    Посмотреть контакты
    Продажа помещения 643,05 кв.м - Фото 1
    Продажа помещения 643,05 кв.м - Фото 2
    Продажа помещения 643,05 кв.м - Фото 3
    Продажа помещения 643,05 кв.м - Фото 4
    Продажа помещения 643,05 кв.м - Фото 5
    Продажа помещения 643,05 кв.м - Фото 6
    Продажа помещения 643,05 кв.м - Фото 7
    полезная площадь 643м²

    Продаётся универсальное производственно-складское помещение Light Industrial в современном промышленном парке -ICPARK ТИТАН. Назначение: под производство и склад Идеальное расположение для вашего бизнеса - всего 8 км от МКАД по скоростному шоссе М-4...
    • 643 м²
    • 1/1 эт.
    105 138 675 Р
    Агент
    +7 (495) Показать номер
    Посмотреть контакты
    Помещение свободного назначения в Московская область, Видное Заводская ... - Фото 1
    Помещение свободного назначения в Московская область, Видное Заводская ... - Фото 2
    933444. Предлагаем торговую площадь, площадью 464,6 кв. м., расположенное на первом этаже бизнес-центра Капитал Плаза в г. Видное. Без комиссии для покупателя.Преимущества объекта:-транспортная доступность от станций метро Царицыно и Домодедовская (25...
    • 1/6 эт.
    92 920 000 Р
    Агент
    +7 (938) Показать номер
    Посмотреть контакты

    Не нашли подходящего объявления?

    Оставьте заявку, и наши риэлторы подберут псн в районе Елино

    (0)