90 000 000 Р

Информация об помещении

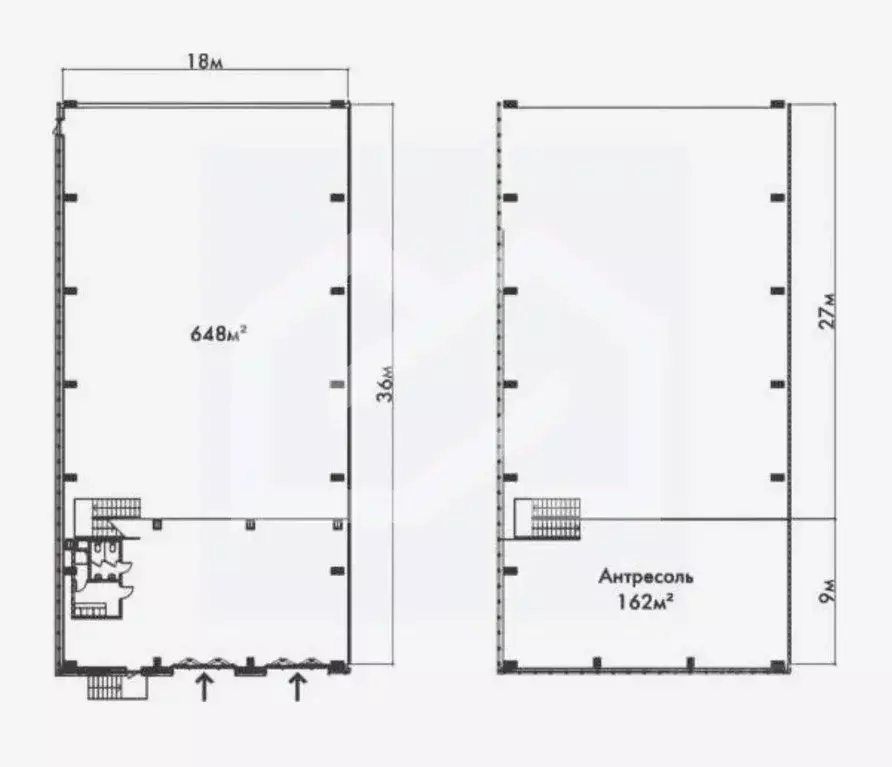
1700.0 м2
Площадь
1
Этаж

Состояние и оснащение

Общая площадь складского комплекса, м2
1700.0
Развернуть
Агент
Мельников Константин
+7 (926) 276-93-95
Начать чат с агентом

Продажа ПСН, Богородский г. о.

Продается действующий техцентр Автопремиум. Полностью оборудован для ремонта и обслуживания легковых и легких коммерческих автомобилей. Свет, вода, отопление, канализация централизованы. Земельный участок 17 соток. Помещение 700 кв.м. Плюс второй участок 12 соток и помещение шиномонтажа(входит в общую стоимость).

Есть разрешение на постройку 450м (например кузовного цеха или склада).

Читать полностью

    Для того, чтобы купить ПСН площадью 1700 кв. метров по адресу: , позвоните по телефону +7 (926) 276-93-95. Торопитесь! Объявление №901057419 о продаже ПСН площадью 1700 кв. метров опубликовано Сегодня.

    Позвонить Написать
    90 000 000 Р
    Агент
    Мельников Константин
    +7 (926) 276-93-95
    Начать чат с агентом
    Похожие предложения
    Продается помещение в ТЦ Терабит с готовым арендным бизнесом.Долгосрочный договор с Х5 индексация 5 в год, арендуют с августа 2025 года.( Показ помещения при личной встрече).Имеется уличный грузовой подъемник и пассажирский лифт на 3 этаж.Общая площадь...
    • 3/3 эт.
    90 480 000 Р
    Агент
    +7 (985) Показать номер
    Посмотреть контакты
    Помещение свободного назначения в Московская область, Одинцовский ... - Фото 1
    Помещение свободного назначения в Московская область, Одинцовский ... - Фото 2
    КОММЕРЧЕСКОЕ ЗДАНИЕ СВОБОДНОГО НАЗНАЧЕНИЯ В С. АКУЛОВО ОДИНЦОВСКОГО РАЙОНА Характepистики объекта:Площадь дома: 759,4 кв. м;В здании 15 комнат, 8 сан/узлов;Отдельно стоящие двухэтажное здание с цоколем;Есть балкон;Материал здания - кирпично-монолитный;Кровля...
    • 3/3 эт.
    90 000 000 Р
    Агент
    +7 (983) Показать номер
    Посмотреть контакты
    Помещение свободного назначения в Московская область, Раменский ... - Фото 1
    Помещение свободного назначения в Московская область, Раменский ... - Фото 2
    Продажа производственно-складского комплекса в Московской областиВ ближайшее время начнется строительство забора по периметру всего участка.Землю можно использовать для сельскохозяйственного производства - рыбная ферма, переработка сельхозпродукции, и...
    • 1/1 эт.
    90 000 000 Р
    Агент
    +7 (984) Показать номер
    Посмотреть контакты
    Данные в объявлении обновляются раз в сутки. Подробные параметры объекта, актуальные данные и НДС посмотрите на сайте электронных торгов.
    • 9 этажей
    90 810 000 Р
    Агент
    +7 (987) Показать номер
    Посмотреть контакты
    Продажа ПСН, м. Южная, ул. Кировоградская - Фото 1
    Продажа ПСН, м. Южная, ул. Кировоградская - Фото 2
    Продажа ПСН, м. Южная, ул. Кировоградская - Фото 3
    Продажа ПСН, м. Южная, ул. Кировоградская - Фото 4
    Продажа ПСН, м. Южная, ул. Кировоградская - Фото 5
    Продажа ПСН, м. Южная, ул. Кировоградская - Фото 6
    Продажа ПСН, м. Южная, ул. Кировоградская - Фото 7
    Продажа ПСН, м. Южная, ул. Кировоградская - Фото 8
    Продажа ПСН, м. Южная, ул. Кировоградская - Фото 9
    Продажа ПСН, м. Южная, ул. Кировоградская - Фото 10
    Продажа ПСН, м. Южная, ул. Кировоградская - Фото 11
    Продажа ПСН, м. Южная, ул. Кировоградская - Фото 12
    Продажа ПСН, м. Южная, ул. Кировоградская - Фото 13
    Продажа ПСН, м. Южная, ул. Кировоградская - Фото 14
    Продажа ПСН, м. Южная, ул. Кировоградская - Фото 15
    Продажа ПСН, м. Южная, ул. Кировоградская - Фото 16
    Продажа ПСН, м. Южная, ул. Кировоградская - Фото 17
    Продажа ПСН, м. Южная, ул. Кировоградская - Фото 18
    Продажа ПСН, м. Южная, ул. Кировоградская - Фото 19
    общая площадь 461.4м², полезная площадь 461.4м²

    Лот 146395. Продается Готовый Арендный Бизнес по адресу: Москва, ЮАО, Кировоградская ул., 4к3А, площадью 461,4 м. 11 минут пешком от станции метро Южная. Центр густонаселённого плотного спального жилого массива. Сверхинтенсивный пешеходный и автомобильный...
    • 461.4 м²
    • 1-й эт.
    90 000 000 Р
    Агентство
    S5Development
    +7 (903) Показать номер
    Посмотреть контакты

    Не нашли подходящего объявления?

    Оставьте заявку, и наши риэлторы подберут псн в районе Богородский г. о.

    (0)