42 000 000 Р 549 300 $ или 465 000

Информация о коттедже

254.6 м2
Площадь
2019
Построен
2
Этажность
6
Количество комнат
16.7 cоток
Участок

Состояние и оснащение

Дом
блочный
Год постройки
2019
Мебель
нет

Дополнительная информация

Дом продаётся вместе с участком
есть
Категория назначения землепользования
знп земли населенных пунктов
Вид разрешенного использования для участка
знп для лпх

Коммуникации

Газоснабжение
имеется
Водоснабжение
центральное
Канализация
есть
Электроснабжение
обеспечено действующим договором с электросбытовой компанией
Развернуть
Агент
МИЭЛЬ
+7 (499) 372-93-34
Начать чат с агентом

Продажа дома, Адуево, Истринский район, 331

Арт.
Продажа дома 255 м с гаражным комплексом и баней с купелью в КП «Дольче Вита», 38 км от МКАД.
Дом, который строили для себя — основательный, готовый к комфортному проживанию. Гаражный комплекс и баня — капитально возведены и подготовлены под отделку. Монолитная плита 80 см, монолитные перекрытия, камин, панорамная веранда. Участок 16.7 соток с ландшафтным дизайном. Гаражный комплекс на 2 авто + хозблок + помещение под генератор. Баня с уникальной купелью 2х2х2 метра! Своя скважина 33 м с разводкой в дом и баню — полная автономность. Лесное озеро в 500 метрах. Истра 10 минут.

О доме.
С первого взгляда — ощущение европейского загородного дома: благородный серо-голубой фасад, аккуратная подсветка, панорамная веранда, ухоженный участок с ландшафтным дизайном.
Вечером дом особенно красив — мягкий свет подчеркивает архитектуру, а через большие окна видно теплое, живое пространство внутри. Зимой он выглядит так же достойно и основательно: массивный, уверенный, с широкими свесами крыши — дом, которому не страшны любые морозы.

Надежность, которую видно и ощущаешь. Этот дом строили для себя, без экономии на скрытых работах и материалах. Это не «дом на продажу», а продуманный, капитальный объект с запасом прочности на десятилетия:
Монолитная плита 80 см по всему периметру
Монолитные перекрытия
Строгое соблюдение технологий и ГОСТов
Утепленный чердак
Энергосберегающие стеклопакеты
Теплые полы, немецкие радиаторы

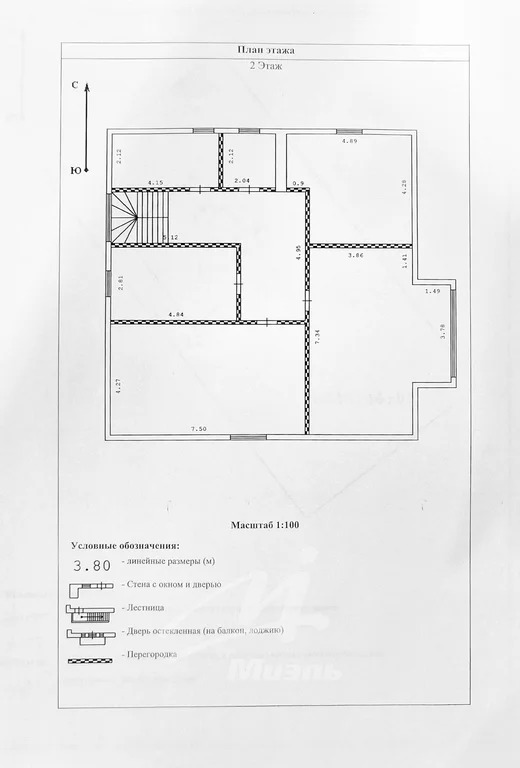
Планировка (255 м)
Первый этаж — свет, воздух и комфорт:
• Кухня 31 м с каменной столешницей и встроенной техникой премиальных брендов
• Эффектная гостиная 40 м с действующим камином
• Кабинет 15 м (идеально для удаленной работы)
• Санузел с душевой, гардеробная, котельная
• Панорамная отапливаемая веранда с зоной кухни и отдыха — можно завтракать и смотреть на сад даже зимой
На фото видно современную кухню с черным каменным фартуком и дизайнерским столом из массива — интерьер стильный, лаконичный и дорогой. Теплый пол, керамогранит, аккуратные потолки — ощущение чистоты и порядка.
Второй этаж:
• 4 изолированные комнаты (под чистовую отделку — создавайте интерьер для себя)
• Раздельный санузел с теплым полом
• Легкая металлическая лестница со стеклянными перилами

Гаражный комплекс и хозблок. На участке расположен капитальный гаражный комплекс — всё под одной крышей:
Просторный гараж на 2 машины с готовым проемом под ворота
Отдельный хозблок — идеальное место для хранения садового инвентаря, инструментов, сезонных вещей. Можно организовать мастерскую.
Техническое помещение под генератор — всё продумано для автономности и комфорта. Никаких переносок под дождём.

Баня с уникальной купелью
Отдельное строение на участке, которое уже сейчас готовит сюрприз будущему владельцу: ключевой элемент — купель 222 м с полноценной глубиной погружения.
Это не декоративная чаша, а капитальная конструкция с серьёзной гидроизоляцией и рассчитанной нагрузкой. Такие купели сложны в изготовлении, а здесь она УЖЕ ГОТОВА.
Гаражный комплекс и баня подготовлены под финальную реализацию — без навязанных решений и компромиссов.
Вы сами определяете формат пространства:
• тип и автоматику ворот
• систему хранения или мастерскую в хозблоке
• оборудование генератора
• конфигурацию парной, печь и материалы отделки
Капитальная база создана. Финальный штрих — под ваш проект.

Участок 16,7 соток — аккуратность в каждой детали
Брусчатка по периметру дома и дорожкам
Дренаж по всему участку
Проведены вода и электричество
Забор с автоматическими воротами
Ландшафт выглядит ухоженным и продуманным — и летом с цветущими гортензиями, и зимой под аккуратным снежным покровом участок сохраняет эстетику и геометрию.
Коммуникации — без компромиссов + полная автономность
Магистральный газ, двухконтурный котел (экономичное отопление)
Центральная канализация
Водоснабжение — двойная защита:
• Подключена центральная вода (основной источник)
• Пробурена собственная скважина 33 метра — это полноценный резерв на любой случай.
Важный плюс, который оценят практичные хозяева:
Разводка от скважины сделана с умом — вода заведена и в дом, и в баню. Даже если по какой-то причине отключат центральное водоснабжение (авария, профилактика, летний перерыв), вы просто переключитесь на свою скважину и будете жить в привычном комфорте:
Электричество: 15 кВт, выделенный интернет
Дополнительная автономность: есть специальное помещение под генератор в гаражном комплексе
Итог: Дом полностью готов к любым сюрпризам коммунальных служб. Вы не замечаете отключений — просто живете в своё удовольствие.

Инфраструктура и локация
Коттеджный поселок бизнес-класса «Дольче Вита»:
Лесное озеро с пляжем — 500 метров от дома
Лодочная станция, рыбалка
Детские и спортивные площадки
Зоны барбекю
Круглосуточная охрана
Асфальтированные дороги
Окружение — лес, тишина, грибы и ягоды в пешей доступности

Транспортная доступность
38 км от МКАД.
Удобные выезды на Новорижское, Волоколамское, Пятницкое шоссе и ЦКАД
До г. Истра — 10 минут
До ж/д станции — 11 минут
Рядом супермаркеты, фермерский рынок, пункты выдачи OZON и WB

Документы
Более 5 лет в собственности
Индивидуальный проект
Полная готовность к сделке

Резюме
Этот дом производит впечатление не показной роскоши, а спокойной уверенности и качества. Он основательный, теплый, продуманный — дом, в который веришь.

Готов организовать показ в любое удобное время. Здесь лучше один раз почувствовать атмосферу, чем долго читать описание.

Читать полностью

    Для того, чтобы купить 2-этажный коттедж по адресу: Адуево, Волоколамское ш., 331, позвоните по телефону +7 (499) 372-93-34. Торопитесь! Объявление №506736687 о продаже двухэтажного коттеджа опубликовано Сегодня.

    Позвонить Написать
    42 000 000 Р549 300 $ или 465 000
    Агент
    МИЭЛЬ
    +7 (499) 372-93-34
    Начать чат с агентом
    Похожие предложения
    Дом в Московская область, муниципальный округ Истра, деревня Адуево ... - Фото 1
    Дом в Московская область, муниципальный округ Истра, деревня Адуево ... - Фото 2
    2 этажа, общая площадь 254м², участок 16 соток

    Арт.Продажа дома 255 м с гаражным комплексом и баней с купелью в КП «Дольче Вита , 38 км от МКАД. Дом, который строили для себя — основательный, готовый к комфортному проживанию. Гаражный комплекс и баня — капитально возведены и подготовлены под...
    • 2 эт.
    • 254 м²
    • 16 сот.
    42 000 000 Р
    Агент
    +7 (926) Показать номер
    Посмотреть контакты
    Продается дом в д. Андреевское - Фото 1
    общая площадь 260м², участок 8 соток

    Эффектный и невероятно просторный коттедж с широкими панорамными окнами для ценителей удобства. Этот дом спроектирован специально для большой семьи и тех, кто любит принимать много гостей. Места хватит всем, ведь в доме есть 6 спальных комнат, включая...
    • 260 м²
    • 8 сот.
    42 161 000 Р
    Агент
    +7 (915) Показать номер
    Посмотреть контакты
    Продается дом в КП Кембридж - Фото 1
    Продается дом в КП Кембридж - Фото 2
    общая площадь 165м², участок 2 сотки

    Идеальное сочетание уюта и современного дизайна Трёхэтажный таунхаус выполнен в актуальном минималистичном стиле с использованием дорогих отделочных материалов. Просторная кухня-гостиная с панорамными окнами, три уютные спальни, кабинет, гардеробные...
    • 165 м²
    • 2 сот.
    42 500 000 Р
    Агент
    +7 (905) Показать номер
    Посмотреть контакты
    Продается дом в д. Красный Поселок - Фото 1
    Продается дом в д. Красный Поселок - Фото 2
    общая площадь 165м², участок 2 сотки

    Идеальное сочетание уюта и современного дизайна Трёхэтажный таунхаус выполнен в актуальном минималистичном стиле с использованием дорогих отделочных материалов. Просторная кухня-гостиная с панорамными окнами, три уютные спальни, кабинет, гардеробные...
    • 165 м²
    • 2 сот.
    42 500 000 Р
    Агент
    +7 (905) Показать номер
    Посмотреть контакты
    Продается дом в КП Дольче Вита - Фото 1
    Продается дом в КП Дольче Вита - Фото 2
    общая площадь 254м², участок 16 соток

    Арт.Продажа дома 255 м2 с гаражным комплексом и баней с купелью в КП Дольче Вита , 38 км от МКАД. Дом, который строили для себя основательный, готовый к комфортному проживанию. Гаражный комплекс и баня капитально возведены и подготовлены под отделку....
    • 254 м²
    • 16 сот.
    42 000 000 Р
    Агент
    +7 (499) Показать номер
    Посмотреть контакты

    Не нашли подходящего объявления?

    Оставьте заявку, и наши риэлторы подберут купить дом в районе Адуево

    (0)