13 000 000 Р 166 000 $ или 142 000

Информация об помещении

1
Этаж

Состояние и оснащение

Количество этажей
3
Развернуть
Агент
+7 (903) 174-09-37
Начать чат с агентом

Помещение свободного назначения (212 м)

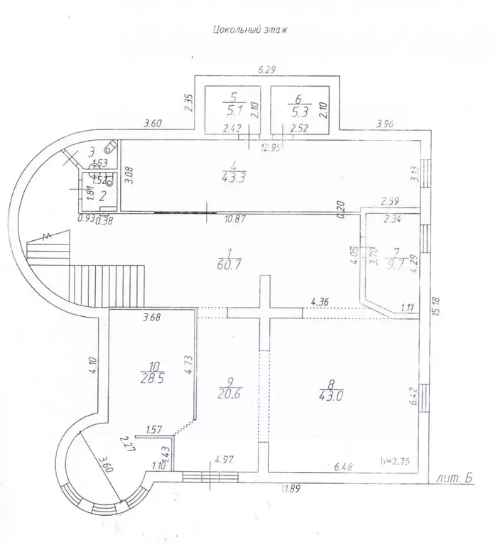
Арт.Продаётся часть отдельно стоящего 2этажного здания — 212 м + открытая асфальтированная парковка 333 м. Адрес: Московская обл., дер. Подосинки, ул. Новые Подосинки, д. 89а. Цена:. Характеристики: Помещение на первом этаже, общая площадь 212 м. Отдельный вход. Открытая парковка 333 м. Освещение, пожарная и охранная сигнализация. Коммуникации: Собственная газовая котельная. Электроснабжение — 35 кВт. Центральные водопровод и канализация. Инвестиционная привлекательность: Идеально под арендный бизнес. Потенциальный месячный доход — 130 000 . Окупаемость — примерно 8,6 лет. Арендаторы: Ozon, Яндекс.Маркет, Avito, офисные помещения и др. Высокий пешеходный трафик, удобная парковка. Локация и доступность: Расположение у ЦКАД, 30 км от МКАД. Удобный подъезд с Дмитровского шоссе; пересечение с трассой А107. Преимущества объекта: • Первая линия: Высокий пешеходный и автомобильный трафик. • Собственная парковка: 333 м асфальтированной площадки (огромный плюс для маркетплейсов). • Экономика: Своя газовая котельная значительно снижает эксплуатационные расходы. • Мощность: 35 кВт. Центральные коммуникации. Объект юридически чист, отдельный вход, доступ 24/7. Меня зовут Анастасия, я эксперт в индустриальной и коммерческой недвижимости. Более 50 успешных сделок в Московской области. Сопровождаю вас на всех этапах — от проверки документов до регистрации собственности. Напишите в сообщении слово «ГАБ , и я вышлю финансовую модель и техпаспорт объекта.

Читать полностью
    Позвонить Написать
    13 000 000 Р166 000 $ или 142 000
    Агент
    +7 (903) 174-09-37
    Начать чат с агентом
    Похожие предложения
    Помещение свободного назначения в Московская область, Дмитровский ... - Фото 1
    Помещение свободного назначения в Московская область, Дмитровский ... - Фото 2
    Арт.Продаётся часть отдельно стоящего 2этажного здания — 212 м + открытая асфальтированная парковка 333 м.Адрес: Московская обл., дер. Подосинки, ул. Новые Подосинки, д. 89а. Цена:.Характеристики: Помещение на первом этаже, общая площадь 212 м. Отдельный...
    • -1/3 эт.
    13 100 000 Р
    Агент
    +7 (986) Показать номер
    Посмотреть контакты
    Помещение свободного назначения в Московская область, Красногорск ... - Фото 1
    Помещение свободного назначения в Московская область, Красногорск ... - Фото 2
    1065060. Предлагаем угловое помещение свободного назначения с сетевым арендатором Студия йоги АРТ-СТУДИЯ в ЖК Новая Рига , площадью 54 кв. м, расположенное на первом этаже 9-этажного жилого дома. Без комиссии для покупателя.Преимущества объекта:-ЖК...
    • 1/8 эт.
    12 000 000 Р
    Агент
    +7 (938) Показать номер
    Посмотреть контакты
    Помещение свободного назначения в Московская область, Красногорск ... - Фото 1
    Помещение свободного назначения в Московская область, Красногорск ... - Фото 2
    1065060. Предлагаем угловое помещение свободного назначения с сетевым арендатором Студия йоги АРТ-СТУДИЯ в ЖК Новая Рига , площадью 54 кв. м, расположенное на первом этаже 9-этажного жилого дома. Без комиссии для покупателя.Преимущества объекта:-ЖК...
    • 1/8 эт.
    12 000 000 Р
    Агент
    +7 (938) Показать номер
    Посмотреть контакты
    Помещение свободного назначения в Московская область, Подольск Рабочая ... - Фото 1
    Помещение свободного назначения в Московская область, Подольск Рабочая ... - Фото 2
    Продается помещение свободного назначения на -1 цокольном этаже в пешей доступности к метро МЦД Д2 Подольск Площадь 70.00м2Свой отдельный вход с оживленной улицы, что обеспечит вам хорошую проходимость, легкий доступ к помещению и возможность привлечь...
    • 1/4 эт.
    13 950 000 Р
    Агент
    +7 (916) Показать номер
    Посмотреть контакты
    Продажа ПСН, Мытищи, Мытищинский район, ул. Трудовая - Фото 1
    Продажа ПСН, Мытищи, Мытищинский район, ул. Трудовая - Фото 2
    Продажа ПСН, Мытищи, Мытищинский район, ул. Трудовая - Фото 3
    Продажа ПСН, Мытищи, Мытищинский район, ул. Трудовая - Фото 4
    Продажа ПСН, Мытищи, Мытищинский район, ул. Трудовая - Фото 5
    Продажа ПСН, Мытищи, Мытищинский район, ул. Трудовая - Фото 6
    Продажа ПСН, Мытищи, Мытищинский район, ул. Трудовая - Фото 7
    Продажа ПСН, Мытищи, Мытищинский район, ул. Трудовая - Фото 8
    Продажа ПСН, Мытищи, Мытищинский район, ул. Трудовая - Фото 9
    Продажа ПСН, Мытищи, Мытищинский район, ул. Трудовая - Фото 10
    Продажа ПСН, Мытищи, Мытищинский район, ул. Трудовая - Фото 11
    Продажа ПСН, Мытищи, Мытищинский район, ул. Трудовая - Фото 12
    Продажа ПСН, Мытищи, Мытищинский район, ул. Трудовая - Фото 13
    Продажа ПСН, Мытищи, Мытищинский район, ул. Трудовая - Фото 14
    Продажа ПСН, Мытищи, Мытищинский район, ул. Трудовая - Фото 15
    Продажа ПСН, Мытищи, Мытищинский район, ул. Трудовая - Фото 16
    Продажа ПСН, Мытищи, Мытищинский район, ул. Трудовая - Фото 17
    общая площадь 53.6м², полезная площадь 53.6м²

    Арт. Помещение 53.6 кв.м. находится на первой линии по улице Трудовая. Активный авто и пешеходный трафик. Рядом идет застройка большого ЖК, что существенно увеличит проходимость, востребованность и стоимость помещения. Помещение имеет два входа, два сан.узла....
    • 53.6 м²
    • 1-й эт.
    12 999 000 Р
    Агент
    +7 (499) Показать номер
    Агентство
    МИЭЛЬ
    Посмотреть контакты

    Не нашли подходящего объявления?

    Оставьте заявку, и наши риэлторы подберут псн в районе Подосинки

    (0)