372 000 Р 4 700 $ или 4 050

Информация об помещении

1
Этаж

Состояние и оснащение

Количество этажей
17
Развернуть
Агент
+7 (938) 656-74-88
Начать чат с агентом

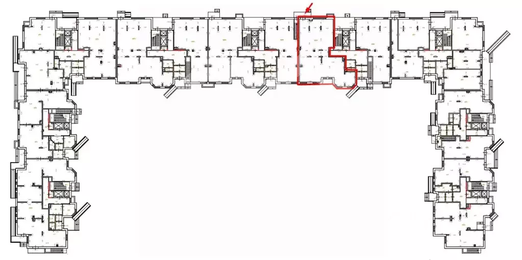
Торговая площадь в Московская область, Звенигород Одинцовский ...

947939-f . Предлагаем помещение свободного назначения формата Street Retail, площадью 185,9 кв. м, расположенное на первом этаже 17-этажного жилого дома в ЖК Восточный , г. Звенигород.Преимущества объекта:-первая линия;-ЖК состоит из 12 корпусов переменной этажности (от 9 до 17 этажей);-8 минут на автомобиле от ж/д станции Звенигород ;-удобная транспортная доступность: 2 км до ЦКАД, 3.5 км до Нахабинского и Ильинского шоссе;-микрорайон на жителей, в доме 845 квартир;-центральная аллея микрорайона;-дефицит коммерческих помещений в ближайшем окружении;-высокий автомобильный и пешеходный трафик;-отлично просматривается, находится в легком доступе для потенциальных клиентов;-гибкая планировка, позволяющая адаптировать пространство под различные нужды;-витринное остекление;-возможность размещения вывески;-наземная парковка.Технические параметры объекта:-отдельный вход с фасада;-электрическая мощность: 37 кВт;-высота потолков: 3.5 м.Свяжитесь с нами для получения дополнительной информации

Читать полностью
    Позвонить Написать
    372 000 Р4 700 $ или 4 050
    Агент
    +7 (938) 656-74-88
    Начать чат с агентом
    Похожие предложения
    Торговая площадь в Московская область, Звенигород Одинцовский ... - Фото 1
    Торговая площадь в Московская область, Звенигород Одинцовский ... - Фото 2
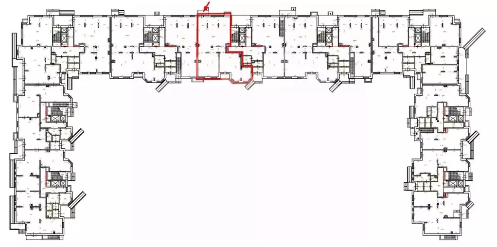
    947939. Предлагаем помещение свободного назначения, площадью 185,9 кв. м, расположенное на первом этаже 17-этажного жилого дома в ЖК Восточный , г. Звенигород.Преимущества объекта:-первая линия;-ЖК состоит из 12 корпусов переменной этажности (от 9 до...
    • 1/17 эт.
    372 000 Р
    Агент
    +7 (938) Показать номер
    Посмотреть контакты
    Торговая площадь в Московская область, Звенигород Одинцовский ... - Фото 1
    Торговая площадь в Московская область, Звенигород Одинцовский ... - Фото 2
    947937. Предлагаем помещение свободного назначения торговое помещение в ЖК Восточный , площадью 185.4 кв. м, расположенное на первом этаже 17-этажного жилого дома.Преимущества объекта:-ЖК состоит из 11 корпусов переменной этажности (от 14 до 17 этажей),...
    • 1/17 эт.
    370 800 Р
    Агент
    +7 (938) Показать номер
    Посмотреть контакты
    Торговая площадь в Московская область, Звенигород Одинцовский ... - Фото 1
    Торговая площадь в Московская область, Звенигород Одинцовский ... - Фото 2
    947941. Предлагаем помещение свободного назначения, площадью 185,1 кв. м, расположенное на первом этаже 17-этажного жилого дома в ЖК Восточный , г. Звенигород.Преимущества объекта:-первая линия;-ЖК состоит из 12 корпусов переменной этажности (от 9 до...
    • 1/17 эт.
    370 200 Р
    Агент
    +7 (938) Показать номер
    Посмотреть контакты
    Торговая площадь в Московская область, Звенигород Одинцовский ... - Фото 1
    Торговая площадь в Московская область, Звенигород Одинцовский ... - Фото 2
    947941-f . Предлагаем помещение свободного назначения формата Street Retail, площадью 185,1 кв. м, расположенное на первом этаже 17-этажного жилого дома в ЖК Восточный , г. Звенигород.Преимущества объекта:-первая линия;-ЖК состоит из 12 корпусов переменной...
    • 1/17 эт.
    370 200 Р
    Агент
    +7 (938) Показать номер
    Посмотреть контакты
    Торговая площадь в Московская область, Звенигород Одинцовский ... - Фото 1
    Торговая площадь в Московская область, Звенигород Одинцовский ... - Фото 2
    947937-f . Предлагаем помещение свободного назначения street-retail в ЖК Восточный , площадью 185.4 кв. м, расположенное на первом этаже 17-этажного жилого дома.Преимущества объекта:-ЖК состоит из 11 корпусов переменной этажности (от 14 до 17 этажей),...
    • 1/17 эт.
    370 800 Р
    Агент
    +7 (938) Показать номер
    Посмотреть контакты

    Не нашли подходящего объявления?

    Оставьте заявку, и наши риэлторы подберут торговое помещение в районе Звенигорода

    (0)