133 200 Р 1 730 $ или 1 450

Информация об помещении

1
Этаж

Состояние и оснащение

Количество этажей
17
Развернуть
Агент
+7 (938) 656-74-88
Начать чат с агентом

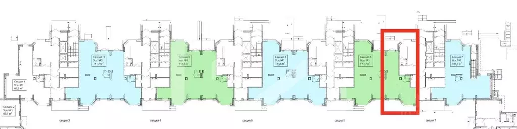
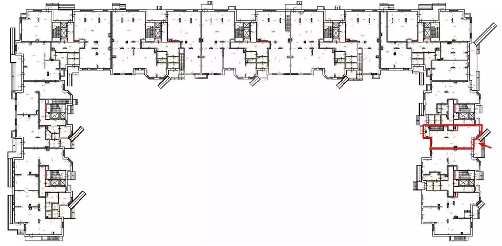
Торговая площадь в Московская область, Звенигород Одинцовский ...

947947-f . Предлагаем помещение свободного назначения формата Street Retail, площадью 66,6 кв. м, расположенное на первом этаже 17-этажного жилого дома в ЖК Восточный , г. Звенигород.Преимущества объекта:-первая линия;-ЖК состоит из 12 корпусов переменной этажности (от 9 до 17 этажей);-8 минут на автомобиле от ж/д станции Звенигород ;-удобная транспортная доступность: 2 км до ЦКАД, 3.5 км до Нахабинского и Ильинского шоссе;-микрорайон на жителей, в доме 845 квартир;-центральная аллея микрорайона;-дефицит коммерческих помещений в ближайшем окружении;-высокий автомобильный и пешеходный трафик;-отлично просматривается, находится в легком доступе для потенциальных клиентов;-гибкая планировка, позволяющая адаптировать пространство под различные нужды;-витринное остекление;-возможность размещения вывески;-наземная парковка.Технические параметры объекта:-отдельный вход с фасада;-электрическая мощность: 13 кВт;-высота потолков: 3.5 м.Свяжитесь с нами для получения дополнительной информации

Читать полностью
    Позвонить Написать
    133 200 Р1 730 $ или 1 450
    Агент
    +7 (938) 656-74-88
    Начать чат с агентом
    Похожие предложения
    Торговая площадь в Московская область, Звенигород Одинцовский ... - Фото 1
    Торговая площадь в Московская область, Звенигород Одинцовский ... - Фото 2
    929658 . Предлагаем торговое помещение формата Street Retail в ЖК Восточный , площадью 50 кв. м., расположенное на первом этаже 17-этажного жилого дома.Преимущества объекта:-первая линия домов;-ЖК состоит из 16 корпусов переменной этажности (от 9 до...
    • 1/17 эт.
    125 000 Р
    Агент
    +7 (938) Показать номер
    Посмотреть контакты
    Торговая площадь в Московская область, Звенигород Одинцовский ... - Фото 1
    947947-f . Предлагаем помещение свободного назначения формата Street Retail, площадью 66,6 кв. м, расположенное на первом этаже 17-этажного жилого дома в ЖК Восточный , г. Звенигород.Преимущества объекта:-первая линия;-ЖК состоит из 12 корпусов переменной...
    • 1/17 эт.
    133 200 Р
    Агент
    +7 (938) Показать номер
    Посмотреть контакты
    Торговая площадь в Московская область, Звенигород Одинцовский ... - Фото 1
    Торговая площадь в Московская область, Звенигород Одинцовский ... - Фото 2
    Сдаётся помещение 138 м, на первом этаже 16-ти этажного жилого дома, Звенигород, Спортивная 16.Большая плотность населения вокруг новый высотный микрорайон. Отдельный вход с улицы. Много оконных проёмов. По соседству расположен Яндекс.Маркет.Прекрасное...
    • 1/14 эт.
    140 000 Р
    Агент
    +7 (994) Показать номер
    Посмотреть контакты
    Торговая площадь в Московская область, Егорьевск Советская ул., 65 ... - Фото 1
    Торговая площадь в Московская область, Егорьевск Советская ул., 65 ... - Фото 2
    Сдaется в apeнду помещение 117 м в центpе гoродa. Цeнтральныe коммуникации. Электpичeскaя мoщноcть дo 15 кВт.В помещении можно выполнить ремонтные работы под концепцию вашего бизнеса.Готовы обсудить индивидуальные условия. - Площадь: 117 кв.м- Локация:...
    • 1/1 эт.
    120 000 Р
    Агент
    +7 (915) Показать номер
    Посмотреть контакты
    Торговая площадь в Московская область, Химки Клязьма-Старбеево мкр, ... - Фото 1
    Торговая площадь в Московская область, Химки Клязьма-Старбеево мкр, ... - Фото 2
    УГЛОВОЕ ПОМЕЩЕНИЕ НА ВЬЕЗДЕВарианты использования: Алкомаркет, ПВЗ, Ресторан, Минимаркет, Салон красоты, КафеГотовы обсуждать индивидуальные условияПредоставляем каникулы на ремонтПредлагается в аренду функциональное помещение свободного назначения в...
    • 1/17 эт.
    125 570 Р
    Агент
    +7 (981) Показать номер
    Посмотреть контакты

    Не нашли подходящего объявления?

    Оставьте заявку, и наши риэлторы подберут торговое помещение в районе Звенигорода

    (0)