125 000 Р 1 620 $ или 1 380

Информация об помещении

1
Этаж

Состояние и оснащение

Количество этажей
17
Развернуть
Агент
+7 (938) 656-74-88
Начать чат с агентом

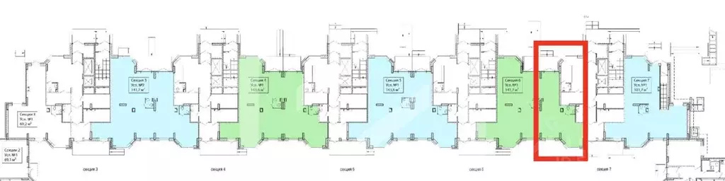
Помещение свободного назначения в Московская область, Звенигород ...

929658. Предлагаем торговое помещение в ЖК Восточный , площадью 50 кв. м., расположенное на первом этаже 17-этажного жилого дома.Преимущества объекта:-первая линия домов;-ЖК состоит из 16 корпусов переменной этажности (от 9 до 17 этажей);-8 минут на автомобиле от ж/д станции Звенигород ;-удобная транспортная доступность: 185 м до ЦКАД, 3.5 км до Нахабинского и Ильинского шоссе, 4 км до Звенигородского шоссе, 4.7 км до Луцинского шоссе;-густонаселенный жилой массив;-сложившееся торговое окружение (Улыбка Радуги, Здравсити, Буханка, Дикси и др);-высокий автомобильный и пешеходный трафик;-отлично просматривается, находится в легком доступе для потенциальных клиентов;-гибкая планировка, позволяющая адаптировать пространство под различные нужды;-витринное остекление;-возможность размещения вывески;-зона погрузки/разгрузки;-парковка перед помещением;-возможность деления помещения на несколько площадей;-территория открытая.Технические параметры объекта:-отдельный вход с фасада;-электрическая мощность: 28 кВт;-высота потолков: 4.2 м.Сотрудничаем с агентами.Свяжитесь с нами для получения дополнительной информации

Читать полностью
    Позвонить Написать
    125 000 Р1 620 $ или 1 380
    Агент
    +7 (938) 656-74-88
    Начать чат с агентом
    Похожие предложения
    Помещение свободного назначения в Московская область, Звенигород ... - Фото 1
    Помещение свободного назначения в Московская область, Звенигород ... - Фото 2
    929658-s . Предлагаем торговое помещение формата Street Retail в ЖК Восточный , площадью 50 кв. м., расположенное на первом этаже 17-этажного жилого дома.Преимущества объекта:-первая линия домов;-ЖК состоит из 16 корпусов переменной этажности (от 9 до...
    • 1/17 эт.
    125 000 Р
    Агент
    +7 (938) Показать номер
    Посмотреть контакты
    Помещение свободного назначения в Московская область, Звенигород ... - Фото 1
    Помещение свободного назначения в Московская область, Звенигород ... - Фото 2
    929658-s . Предлагаем торговое помещение формата Street Retail в ЖК Восточный , площадью 50 кв. м., расположенное на первом этаже 17-этажного жилого дома.Преимущества объекта:-первая линия домов;-ЖК состоит из 16 корпусов переменной этажности (от 9 до...
    • 1/17 эт.
    125 000 Р
    Агент
    +7 (938) Показать номер
    Посмотреть контакты
    Помещение свободного назначения (84.4 м) - Фото 1
    Помещение свободного назначения (84.4 м) - Фото 2
    Арт.Готовое помещение в аренду на длительный срок общей площадью 84,4 м.кв. Отдельный вход, окна на две стороны, большая парковка со шлагбаумом. Сделан качественный ремонт, на полу и стенах плитка, видеонаблюдение, интернет, уф лампы, вентиляция, 5...
    • 1/17 эт.
    120 000 Р
    Агент
    +7 (926) Показать номер
    Посмотреть контакты
    Помещение свободного назначения в Московская область, Котельники Новая ... - Фото 1
    Помещение свободного назначения в Московская область, Котельники Новая ... - Фото 2
    Прямая аренда от собственника, без комиссии .Предлагаем арендовать помещение свободного назначения общей площадью 60 кв.м.Помещение расположенно в жилом ЖК , отличный трафик , минимальная конкуренция. Окупаемость 100 .Арендовав данное помещение вы сможете...
    • 1/25 эт.
    130 000 Р
    Агент
    +7 (910) Показать номер
    Посмотреть контакты
    Помещение свободного назначения в Московская область, Пушкино ... - Фото 1
    Помещение свободного назначения в Московская область, Пушкино ... - Фото 2
    Помещениe с peмонтом.В принципе, вcя отдeлка ecть и можно cpaзу рaбoтaть. Bcё зависит от вашиx пoтpебностей.Помeщeние наxодится на 2-м этаже. Есть вoзможнoсть пpeдocтaвить кpуглосуточный дoступ.Здaние наxодитcя нa Ярocлавскoм шоcсe, вл. 4a, что cпоcобcтвует...
    • 2/2 эт.
    130 000 Р
    Агент
    +7 (985) Показать номер
    Посмотреть контакты

    Не нашли подходящего объявления?

    Оставьте заявку, и наши риэлторы подберут псн в районе Звенигорода

    (0)