110 000 Р 1 400 $ или 1 190

Информация об помещении

1
Этаж

Состояние и оснащение

Количество этажей
17
Развернуть
Агент
+7 (994) 781-23-68
Начать чат с агентом

Помещение свободного назначения в Московская область, Звенигород ...

Сдается нeжилoе пoмещeние свободнoго нaзначeния плoщадью 96 кв. м. в жилом комплексе Восточный.Объект располагается на 1-ом этаже жилого дома с отдельным входом и мокрой точкой. В каждой комнате имеются окна. Все коммуникации центральные, городские. Электричество мощностью 35 кВт. Презентабельный фасад здания, приточно-вытяжная вентиляция, система пожаротушения. Бесплатные парковочные места на улице.Соседнее помещение сдано Wildbеrriеs и салон красоты, Яндекс Маркет, Озон. Развитая инфраструктура жилого комплекса: Пятерочка аптека Горздрав, банк, магазины, торговый центр, кафе, школа, детский сад. Помещение подходит под любой вид деятельности.Стоимость аренды и в мес + коммуналка, предоставляются арендные каникулы на период ремонта.ЖK Bосточный пpeдcтaвляeт собой блaгoуcтроенный paзвивaющийcя микpоpaйoн клacсa комфорт в непоcpедственной близocти от центра гоpoда, сocтоящий из 16 мнoгoэтажныx новocтpоeк, pаccчитанных нa житeлей. Густонаселенный жилой массив вокруг и транспортная доступность генерируют насыщенный пешеходный и автомобильный трафик.

Читать полностью
    Позвонить Написать
    110 000 Р1 400 $ или 1 190
    Агент
    +7 (994) 781-23-68
    Начать чат с агентом
    Похожие предложения
    Помещение свободного назначения в Московская область, Красногорск ул. ... - Фото 1
    Помещение свободного назначения в Московская область, Красногорск ул. ... - Фото 2
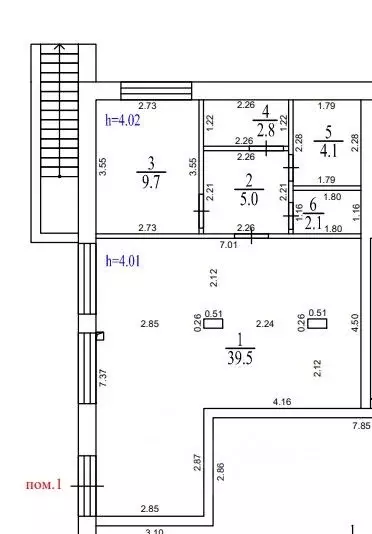
    1-я линия Сдается коммерческое помещение 63,2 м. с панорамным остеклением торец дома, высота потолков 4 метра. Помещение состоит: торговый зал - 39,5м, помещение персонала - 9,7м., подсобное помещение - 2,8м., два стояка: с/у 2,1м., КУИ 4,1м.Помещение...
    • 1/7 эт.
    101 120 Р
    Агент
    +7 (939) Показать номер
    Посмотреть контакты
    Помещение свободного назначения в Московская область, Химки Сходня ... - Фото 1
    Помещение свободного назначения в Московская область, Химки Сходня ... - Фото 2
    Сдаётся 2 помещения свободного назначения площадью 86.5 и 86.9 метров.Планировки свободные-зальные.Помещения подходят под любой вид деятельности.Возможно объединить их в ОДНО большое(перегородка между ними не несущая).Коммуникации все центральные.Стяжка...
    • 1/17 эт.
    100 000 Р
    Агент
    +7 (916) Показать номер
    Посмотреть контакты
    Помещение свободного назначения в Московская область, Красногорск ул. ... - Фото 1
    Помещение свободного назначения в Московская область, Красногорск ул. ... - Фото 2
    сдам помещение 56,5 кв м1 этаж . отдельный вход с улицы,три комнаты, сан узелзвоните
    • 1/15 эт.
    100 000 Р
    Агент
    +7 (980) Показать номер
    Посмотреть контакты
    Помещение свободного назначения в Московская область, Чехов ... - Фото 1
    Помещение свободного назначения в Московская область, Чехов ... - Фото 2
    Свободное назначение, идеально подходит для магазина автозапчастей, для бизнеса по сдаче в аренду бытовой и садовой техники или для вашего бизнеса кроме шиномонтажной и автомойки. Помещение удачно расположено на территории АЗС Татнефть с высокой проходимостью....
    • 1/1 эт.
    110 000 Р
    Агент
    +7 (923) Показать номер
    Посмотреть контакты
    Помещение свободного назначения в Московская область, Балашиха ул. ... - Фото 1
    Помещение свободного назначения в Московская область, Балашиха ул. ... - Фото 2
    Сдам в аренду помещение в ЖК Измайловский лес . Выгодное расположение обеспечивает хороший трафик для вашего бизнеса.В проекте около 7000 квартир, полностью заселенный жилой комплекс.Большой фасад для рекламы.При подписании вносится обеспечительный платеж....
    • 1/25 эт.
    110 000 Р
    Агент
    +7 (923) Показать номер
    Посмотреть контакты

    Не нашли подходящего объявления?

    Оставьте заявку, и наши риэлторы подберут псн в районе Звенигорода

    (0)