250 000 Р 3 080 $ или 2 700

Информация об помещении

1
Этаж

Состояние и оснащение

Количество этажей
6
Развернуть
Агент
+7 (916) 698-78-34
Начать чат с агентом

Помещение свободного назначения в Московская область, Звенигород ...

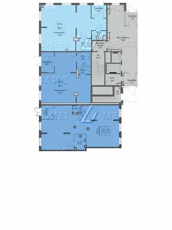
Арт.Сдается помещение свободного назначения 134 кв.м. на 1 этаже 6ти этажного дома в ЖК бизнес-класса Серебряные звоны 2 в исторической части подмосковного Звенигорода.Помещение в чистовом ремонте, два отдельных входа (с улицы и со двора), высота потолков 2,6 м., 1 мокрая точка, 15 кВт, витринное остекление, широкие рекламные возможности, наземная бесплатная парковка, широкие возможности перепланировки, вентиляция, пожаро-охранная сигнализация.ПСН находится в историческом центре г. Звенигород в 42 км от МКАД, в 4 км от ЦКАД на первой линии ул. Игнатьевская. Рядом с жилым комплексом проходят крупные городские магистрали: улицы Московская, Василия Фабричного, Игнатьевская, Фрунзе. 1 минута пешком до остановки общественного транспорта.Стоимость аренды 250.уб/мес УСН, Арендные каникулы. Возможен долгосрочный договор аренды.Прямой договор. Оперативный показ.

Читать полностью
    Позвонить Написать
    250 000 Р3 080 $ или 2 700
    Агент
    +7 (916) 698-78-34
    Начать чат с агентом
    Похожие предложения
    Помещение свободного назначения в Московская область, Звенигород ... - Фото 1
    Помещение свободного назначения в Московская область, Звенигород ... - Фото 2
    Парк-Недвижимость предлагает в долгосрочную аренду торговое помещение на -2 этаже площадью 250 масположенное по адресу: Московская область,г.Звенигород,ул Пролетарская дом 51 Б.Отдельный вход с улицы Здание имеет большую проходимость, удобный подъезд...
    • 2/2 эт.
    250 000 Р
    Агент
    +7 (916) Показать номер
    Посмотреть контакты
    Помещение свободного назначения (83 м) - Фото 1
    Помещение свободного назначения (83 м) - Фото 2
    АРЕНДА ОТ 11 МЕС. Жилой дом. Сдаётся блок с санузлом на первом этаже площадью 83 кв.м с отдельным входом с улицы. Высота потолка 4 м. Новое помещение под чистовую отделку (Shell Core). Вентиляция.УСН. Лот № 240118. С риелторами не сотрудничаем
    • 1/10 эт.
    249 000 Р
    Агент
    +7 (495) Показать номер
    Посмотреть контакты
    Помещение свободного назначения в Московская область, Мытищи ул. ... - Фото 1
    Помещение свободного назначения в Московская область, Мытищи ул. ... - Фото 2
    Предлагается аренда коммерческого помещения без отделки Адрес: г. Мытищи, ул. Рождественская, д. 7 Общая площадь: 144,5 м Статус помещения: свободный тип назначения (можно адаптировать под любую сферу деятельности).Основные плюсы выбора нашей площадки:-...
    • 1/11 эт.
    250 000 Р
    Агент
    +7 (916) Показать номер
    Посмотреть контакты
    Помещение свободного назначения (330 м) - Фото 1
    Помещение свободного назначения (330 м) - Фото 2
    Арт.Без комиссии Прямой представитель собственника Помещение (возможно частями) c ремонтом на 1 линии с 3 входами на трафике. Ключевые преимущества:на трафике рядом Чижик, аптека Здравсити, ветклиникапотолки 3,2мвытяжкаудобная транспортная доступностьгустонаселенный...
    • 1/1 эт.
    245 000 Р
    Агент
    +7 (932) Показать номер
    Посмотреть контакты
    Помещение свободного назначения в Московская область, Химки ... - Фото 1
    Помещение свободного назначения в Московская область, Химки ... - Фото 2
    1002134. Предлагаем помещение свободного назначения, площадью 83,3 кв. м., расположенное на первом этаже жилого дома в ЖК Квартал Ивакино . Угловой блок. Преимущества объекта:-комплекс состоит из 5 корпусов переменной этажности (от 11 до 17 этажей);-15...
    • 1/17 эт.
    250 000 Р
    Агент
    +7 (938) Показать номер
    Посмотреть контакты

    Не нашли подходящего объявления?

    Оставьте заявку, и наши риэлторы подберут псн в районе Звенигорода

    (0)