16 500 000 Р 203 400 $ или 173 500

Информация об помещении

282 м2
Площадь
жилой дом
Тип помещения
цоколь
Этаж

Состояние и оснащение

Количество помещений
1
Ремонт
требуется капитальный
Количество этажей
5

Дополнительная информация

Высота потолков, м.
3.2
Проходимость
1-линия

Оснащённость

Водопровод
есть
Электричество
есть
Отопление
есть
Развернуть
Титусь Александр Алексеевич
PRO
+7 (919) 777-12-36
Профессионал AFY.ru с 2013 г.
Начать чат с агентом

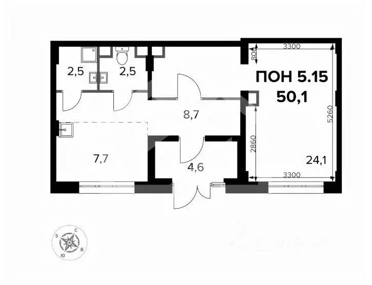
Продается помещение 282 м2 в центре Звенигорода

ЖК "Центральный" г. Звенигород, ул. Почтовая д. 36/2. Центр города.
Продается отличное многофункциональное помещение свободного назначения, общей площадью 281.8 м2. расположенное в цокольном этаже 5 этажного монолитного дома, без отделки, 2 отдельных входа (можно сделать 3-ий), центральное отопление, есть точки присоединения к воде и канализации, электричество 15 Квт, полноценные окна в приямках, дом на 1-линии от дороги, хороший пешеходный трафик.
Транспортная доступность:
Ближайшее шоссе к г. Звенигород - Новорижское шоссе, удаленность от МКАДа - 40 км. Ходят автобусные рейсы до Москвы (метро Строгино, Кунцевская, Тушинская). Также есть возможность доехать до столицы на электричке до Белорусского вокзала.
1 взрослый собственник, документы готовы к сделке. Показ по договоренности.

Читать полностью

    Для того, чтобы купить торговое помещение площадью 282 кв. метра по адресу: Звенигород, Новорижское ш., ул. Почтовая, 36/2, позвоните по телефону +7 (919) 777-12-36. Торопитесь! Объявление №800823450 о продаже торгового помещения площадью 282 кв. метра опубликовано 08 ноября 2025.

    Позвонить Написать
    16 500 000 Р203 400 $ или 173 500
    Титусь Александр Алексеевич
    PRO
    +7 (919) 777-12-36
    Профессионал AFY.ru с 2013 г.
    Начать чат с агентом
    Похожие предложения
    Торговая площадь в Московская область, Звенигород Одинцовский ... - Фото 1
    Торговая площадь в Московская область, Звенигород Одинцовский ... - Фото 2
    Предложение на продажу 46081.Предлагается в продажу помещение в новом ЖК Восточный . Помещение на 1 этаже жилого комплекса общей площадью 69,20 м2. Микрорайон класса комфорт , который состоит из 16 новостроек переменной этажности. Высота новостроек...
    • 1/20 эт.
    17 950 000 Р
    Агент
    +7 (915) Показать номер
    Посмотреть контакты
    Торговая площадь в Московская область, Ленинский городской округ, д. ... - Фото 1
    Торговая площадь в Московская область, Ленинский городской округ, д. ... - Фото 2
    Продажа торгового помещения 52,2 м2 д. Сапроново, жилой комплекс Первый Квартал , корпус 12 (19 минут на транспорте от метро Царицыно). 1 линия домов.Помещение 52,2 масполагается на 1 этаже, открытая планировка, отдельный вход с фасада, витринные окна...
    • 1/11 эт.
    17 320 000 Р
    Агент
    +7 (916) Показать номер
    Посмотреть контакты
    Торговая площадь в Московская область, Щелково Пролетарский просп., 14 ... - Фото 1
    Торговая площадь в Московская область, Щелково Пролетарский просп., 14 ... - Фото 2
    Объект 541096. Продажа готового арендного бизнеса в г. Щелково Помещение расположено на 1-ом этаже в жилом 9-ти этажном доме , рядом плотная многоэтажная застройка с огромным количеством жителей .Отдельный вход со двора , все коммуникации городские...
    • 1/9 эт.
    17 499 000 Р
    Агент
    +7 (989) Показать номер
    Посмотреть контакты
    Торговая площадь в Московская область, Одинцовский городской округ, с. ... - Фото 1
    Торговая площадь в Московская область, Одинцовский городской округ, с. ... - Фото 2
    642785 . Предлагаем к приобретению помещение свободного назначения формата Street Retail в ЖК Равновесие , площадью 65.5 кв. м., расположенное на первом этаже 6-этажного жилого дома. Корпус: 5. Без комиссии для покупателя.Преимущества объекта: -первая...
    • 1/6 эт.
    16 375 000 Р
    Агент
    +7 (916) Показать номер
    Посмотреть контакты
    Торговое помещение 164.4 м2 - Фото 1
    Торговое помещение 164.4 м2 - Фото 2
    Торговое помещение 164.4 м2 - Фото 3
    Торговое помещение 164.4 м2 - Фото 4
    Торговое помещение 164.4 м2 - Фото 5
    Торговое помещение 164.4 м2 - Фото 6
    Торговое помещение 164.4 м2 - Фото 7
    Торговое помещение 164.4 м2 - Фото 8
    Торговое помещение 164.4 м2 - Фото 9
    реализуемая площадь 164.4м²

    Предлагаем Вашему вниманию помещение свободного назначения на первом этаже жилого дома. Ранее здесь располагался детский сад. Просторные изолированные комнаты, отдельный вход. Один взросылый собственник, продажа от физлица. Эксперт по недвижимости...
    • 164.4 м²
    • 1/17 эт.
    17 800 000 Р
    Агент
    +7 (923) Показать номер
    Посмотреть контакты

    Не нашли подходящего объявления?

    Оставьте заявку, и наши риэлторы подберут торговое помещение в районе Звенигорода

    (0)