20 260 000 Р 241 200 $ или 208 200

Информация об помещении

1
Этаж

Состояние и оснащение

Количество этажей
15
Развернуть
Агент
+7 (938) 656-74-88
Начать чат с агентом

Торговая площадь в Московская область, Звенигород Одинцовский ...

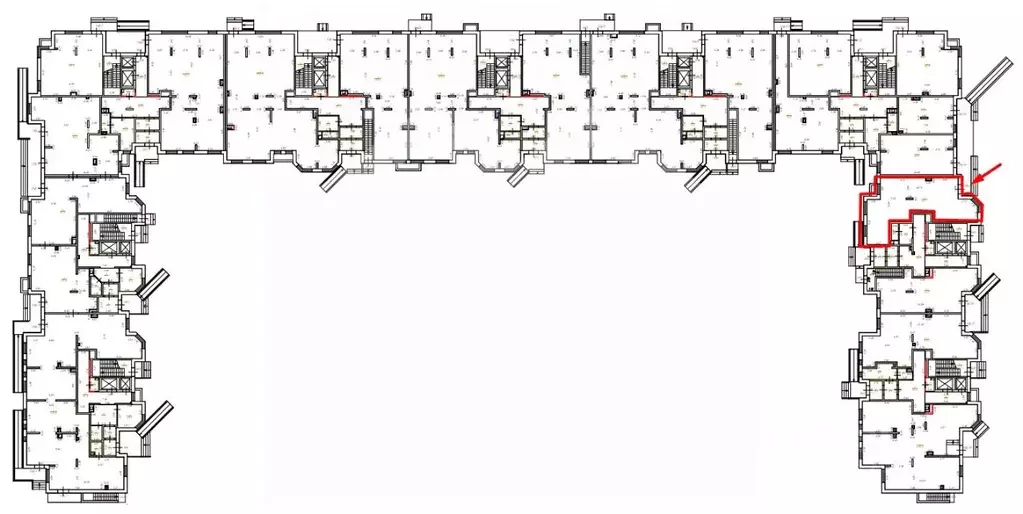
947471. Предлагаем торговое помещение в ЖК Восточный , площадью 84.4 кв. м, расположенное на первом этаже 15-этажного жилого дома. Без комиссии для покупателя.Преимущества объекта:-ЖК состоит из 11 корпусов переменной этажности (от 14 до 17 этажей), рассчитанных на 2 896 квартир;-8 минут на автомобиле от ж/д станции Звенигород ;-удобная транспортная доступность: 2 км до ЦКАД, 3.5 км до Нахабинского и Ильинского шоссе, 4 км до Звенигородского шоссе, 4.7 км до Луцинского шоссе;-плотный жилой массив;-дефицит коммерческих помещений, что гарантирует высокий спрос;-высокий автомобильный и пешеходный трафик;-отлично просматривается, находится в легком доступе для потенциальных клиентов;-гибкая планировка, позволяющая адаптировать пространство под различные нужды;-витринное остекление;-возможность размещения вывески;-наземная парковка.Технические параметры объекта:-отдельный вход с улицы.-электрическая мощность: 17 кВт.-высота потолков: 3.5 м.Свяжитесь с нами для получения дополнительной информации

Читать полностью
    Позвонить Написать
    20 260 000 Р241 200 $ или 208 200
    Агент
    +7 (938) 656-74-88
    Начать чат с агентом
    Похожие предложения
    Торговая площадь в Московская область, Звенигород Одинцовский ... - Фото 1
    Торговая площадь в Московская область, Звенигород Одинцовский ... - Фото 2
    947457. Предлагаем к приобретению помещение свободного назначения, площадью 84,7 кв. м., расположенное на первом этаже жилого дома в ЖК Восточный . Без комиссии для покупателя.Преимущества объекта: -первая линия;-8 минут на автомобиле от ж/д станции...
    • 1/17 эт.
    20 328 000 Р
    Агент
    +7 (938) Показать номер
    Посмотреть контакты
    Торговая площадь в Московская область, Звенигород Одинцовский ... - Фото 1
    Торговая площадь в Московская область, Звенигород Одинцовский ... - Фото 2
    947471. Предлагаем торговое помещение в ЖК Восточный , площадью 84.4 кв. м, расположенное на первом этаже 15-этажного жилого дома. Без комиссии для покупателя.Преимущества объекта:-ЖК состоит из 11 корпусов переменной этажности (от 14 до 17 этажей),...
    • 1/15 эт.
    20 260 000 Р
    Агент
    +7 (938) Показать номер
    Посмотреть контакты
    Торговая площадь в Московская область, Звенигород Одинцовский ... - Фото 1
    Торговая площадь в Московская область, Звенигород Одинцовский ... - Фото 2
    947457. Предлагаем к приобретению помещение свободного назначения, площадью 84,7 кв. м., расположенное на первом этаже жилого дома в ЖК Восточный . Без комиссии для покупателя.Преимущества объекта: -первая линия;-8 минут на автомобиле от ж/д станции...
    • 1/17 эт.
    20 328 000 Р
    Агент
    +7 (938) Показать номер
    Посмотреть контакты
    Торговая площадь в Московская область, Раменское 8с4 (58 м) - Фото 1
    Торговая площадь в Московская область, Раменское 8с4 (58 м) - Фото 2
    ГОТОВЫЙ АРЕНДНЫЙ БИЗНЕС. МО, Раменское, ул летчика Волчкова, 4Арендаторы: • ПВЗ Валдбериз • Площадь: 58 м2Окупаемость: 11 летСтоимость продажи:Мощность: 10 кВт МАП:. ГАП:. Это готовый бизнес с пассивным доходом от надежного арендатора с безупречной...
    • 1/17 эт.
    19 763 674 Р
    Агент
    +7 (933) Показать номер
    Посмотреть контакты
    Торговая площадь в Московская область, Ленинский городской округ, ... - Фото 1
    Торговая площадь в Московская область, Ленинский городской округ, ... - Фото 2
    Лот 154716.Предлагается в продажу торговое помещение в ЖК Пригород лесное, к. 14.2.Пригород Лесное действующий жилой комплекс в котором будет жить 160 000 жителей.Расположен на юге Московской области в 7 км от МКАД.В Пригороде Лесном есть собственные...
    • 1/15 эт.
    20 591 038 Р
    Агент
    +7 (916) Показать номер
    Посмотреть контакты

    Не нашли подходящего объявления?

    Оставьте заявку, и наши риэлторы подберут торговое помещение в районе Звенигорода

    (0)