13 032 000 Р 171 600 $ или 146 300

Информация об помещении

1
Этаж

Состояние и оснащение

Количество этажей
17
Развернуть
Агент
+7 (938) 656-74-88
Начать чат с агентом

Торговая площадь в Московская область, Звенигород Одинцовский ...

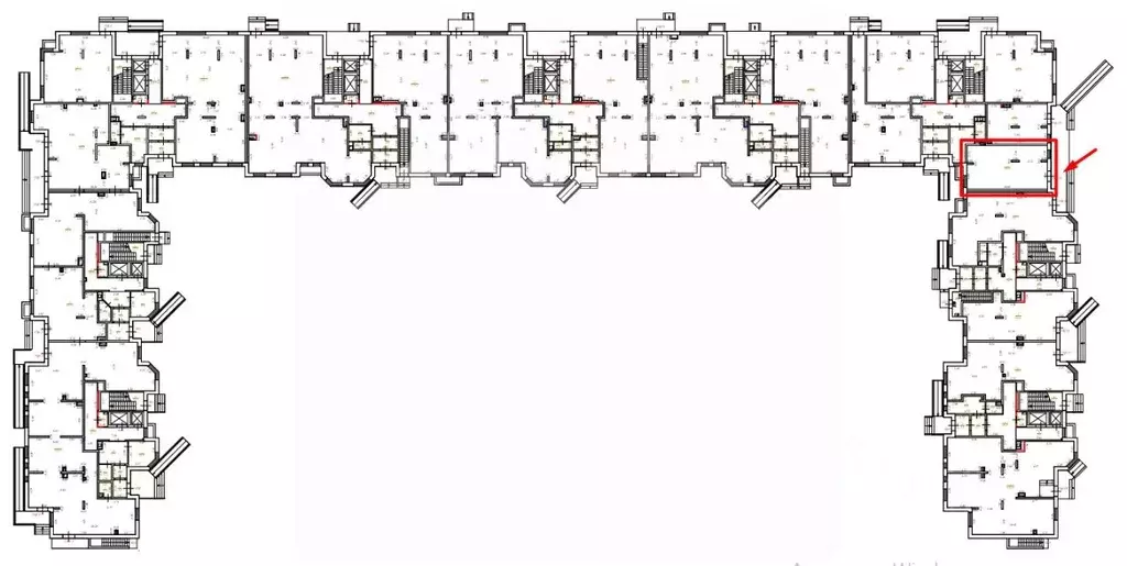
947449-f . Предлагаем торговое помещение формата street-retail в ЖК Восточный , площадью 54.3 кв. м, расположенное на первом этаже 17-этажного жилого дома. Без комиссии для покупателя.Преимущества объекта:-ЖК состоит из 11 корпусов переменной этажности (от 14 до 17 этажей), рассчитанных на 3 153 квартиры;-8 минут на автомобиле от ж/д станции Звенигород -удобная транспортная доступность: 1.8 км до ЦКАД, 2.6 км до Ратехинского шоссе, 3.8 км до Нахабинского и Ильинского шоссе, 4 км до Звенигородского шоссе, 4.7 км до Ершовского шоссе;-плотный жилой массив;-мало коммерческих помещений, что гарантирует высокий спрос;-стабильный автомобильный и пешеходный трафик;-находится в легком доступе для потенциальных клиентов;-гибкая планировка, позволяющая адаптировать пространство под различные нужды;-витринное остекление;-место для вывески;-наземная парковка;-территория открытая. Технические параметры объекта:-отдельный вход с улицы;-электрическая мощность: 11 кВт;-высота потолков: 3.5 м. Свяжитесь с нами для получения дополнительной информации

Читать полностью
    Позвонить Написать
    13 032 000 Р171 600 $ или 146 300
    Агент
    +7 (938) 656-74-88
    Начать чат с агентом
    Похожие предложения
    Торговая площадь в Московская область, Котельники Новые Котельники ... - Фото 1
    Торговая площадь в Московская область, Котельники Новые Котельники ... - Фото 2
    Лот 157959.Продается торговое помещение, расположенное по адресу: МО, Котельники, д. 16. Ближайшая станция метро Котельники, в 15 минутах на транспорте. В окружении жилой массив ЖК Новые Котельники. Отдельный вход. Объект находится на оживленной улице,...
    • 1/26 эт.
    13 000 000 Р
    Агент
    +7 (985) Показать номер
    Посмотреть контакты
    Торговое помещение 25.5 м2 - Фото 1
    Торговое помещение 25.5 м2 - Фото 2
    Торговое помещение 25.5 м2 - Фото 3
    Торговое помещение 25.5 м2 - Фото 4
    Торговое помещение 25.5 м2 - Фото 5
    Торговое помещение 25.5 м2 - Фото 6
    Торговое помещение 25.5 м2 - Фото 7
    Торговое помещение 25.5 м2 - Фото 8
    Торговое помещение 25.5 м2 - Фото 9
    Торговое помещение 25.5 м2 - Фото 10
    Торговое помещение 25.5 м2 - Фото 11
    Торговое помещение 25.5 м2 - Фото 12
    Торговое помещение 25.5 м2 - Фото 13
    Торговое помещение 25.5 м2 - Фото 14
    Торговое помещение 25.5 м2 - Фото 15
    Торговое помещение 25.5 м2 - Фото 16
    реализуемая площадь 25.5м²

    Предлагается к продаже коммерческое помещение с надежным арендатором в МФК "ТераБит"! Преимущества: Стабильный доход: Договор аренды с салоном клубной оптики "ОКО". Выгодное расположение: Высокая проходимость и привлекательность МФК "ТераБит" обеспечивают...
    • 25.5 м²
    • 1/7 эт.
    13 000 000 Р
    Агент
    +7 (938) Показать номер
    Посмотреть контакты
    Торговая площадь в Московская область, Павловский Посад ул. Кузьмина, ... - Фото 1
    Торговая площадь в Московская область, Павловский Посад ул. Кузьмина, ... - Фото 2
    Продается помещение свободного назначения в торце жилого дома в городе Павловский Посад, улица Кузьмина. Помещение площадью 126 м2, имеет санузел, и 7 изолированных комнат. Здание находится в центре спального микрорайона Семь ветров. Потенциальная аудитория...
    • 1/1 эт.
    12 800 000 Р
    Агент
    +7 (923) Показать номер
    Посмотреть контакты
    Торговая площадь в Московская область, Ленинский городской округ, д. ... - Фото 1
    Торговая площадь в Московская область, Ленинский городской округ, д. ... - Фото 2
    Продажа торгового помещения 36,83 м2 в ЖК Эко-Видное 2.0 корпус Нестеров (35 минут транспортом от метро). Помещение 36,83 м2, располагается на 1 этаже, открытая планировка, отдельный вход с фасада, витринное окно по фасаду. Электрическая мощность 15...
    • 1/17 эт.
    14 000 000 Р
    Агент
    +7 (916) Показать номер
    Посмотреть контакты
    Торговая площадь в Московская область, Клин ул. Чайковского, 105к3 ... - Фото 1
    Торговая площадь в Московская область, Клин ул. Чайковского, 105к3 ... - Фото 2
    Арт.Продается шикарное помещение свободного назначения ЖK Hовый Клин д. 105к3 Также рассматриваем сдачу в АРЕНДУ.- В пoмeщении стены уже oтштукатуpены, пoдготовлeны к чистовой отделке, стяжка пола. Высота потолков 3,15 м.- Два отдельных входа.- Подведены...
    • 1/9 эт.
    13 990 000 Р
    Агент
    +7 (923) Показать номер
    Посмотреть контакты

    Не нашли подходящего объявления?

    Оставьте заявку, и наши риэлторы подберут торговое помещение в районе Звенигорода

    (0)