Реализация объекта недвижимости приостановлена

Информация об помещении

3
Этаж

Состояние и оснащение

Количество этажей
5
Развернуть

Помещение свободного назначения в Московская область, Жуковский ул. ...

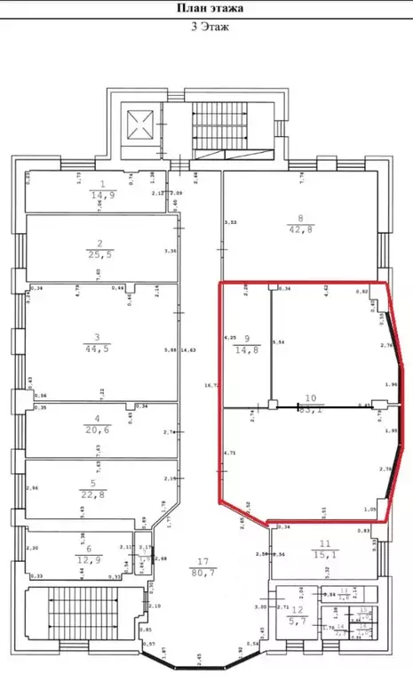
Освобождается офисная площадь на третьем этаже - 98 м, складывающаяся из трёх помещений (можно убрать перегородки и будет однообъёмное пространство). Желательна аренда с мебелью. Высота потолка 3 метра. В помещениях светло, тепло и тихо. Есть кондиционер, сплит система и пожарная сигнализация. На этаже холл для комфортного ожидания или переговоров, санузел.При заинтересованности в дополнительных площадях можно провести переговоры по поводу выделения до 400 м в подземном этаже здания (куда есть вход как из здания, так и отдельный вход и въезд с улицы, возможно выделение электрической мощности до 80 кВт). Также можем предоставить в аренду часть мебели и офисного оборудования.В помещениях возможны практически любые ремонты и улучшения.Здание расположено в центре города, в его исторической части и примечательно: хорошей транспортной доступностью, спокойным районом, соседством со школами и детским садом, игровыми детскими и спортивными площадками, а также высоким пешеходным трафиком и близостью к зданию администрации.Время в пути от/до ж/д станции Отдых составляет 12-18 минут пешком или 5 минут на машине и 7-19 минут на машине от/до ж/д станций Ильинская, Кратово, Быково, Есенинская (бывш. 42 км), Фабричная, Раменское и международного аэропорта Жуковский. Это позволит Вам, Вашим сотрудникам и клиентам удобно добираться до/от нашего центра, а имеющийся пассажирский лифт Schindler добавит комфорта и мобильности при пользовании зданием.К услугам арендаторов предложены: санузлы, круглосуточная охрана, видеонаблюдение, системы вентиляции и кондиционирования, бесплатная наземная и платная подземная парковка, а также стабильный и высокоскоростной интернет (в здании 5 провайдеров) и высококачественная телефонная связь.Помещения подходит под различные образовательные и медицинские учреждения, студию, кружок, коворкинг, мастерскую по изготовлению и ремонту и другие назначения.Помещение напрямую от собственника Звоните, пишите - договоримся.

Читать полностью

    Реализация объекта недвижимости приостановлена

    Не нашли подходящего объявления?

    Оставьте заявку, и наши риэлторы подберут псн в районе Жуковского

    (0)