390 000 000 Р 4 953 000 $ или 4 243 800

Информация об помещении

5583.4 м2
Площадь

Состояние и оснащение

Общая площадь складского комплекса, м2
5583.4
Развернуть
Агент
Григорий
+7 (968) 017-01-24
Начать чат с агентом

мцд Ильинская, г.Жуковский, ул.Луч, 5583 м2, ПСК (ном. объекта: 7866)

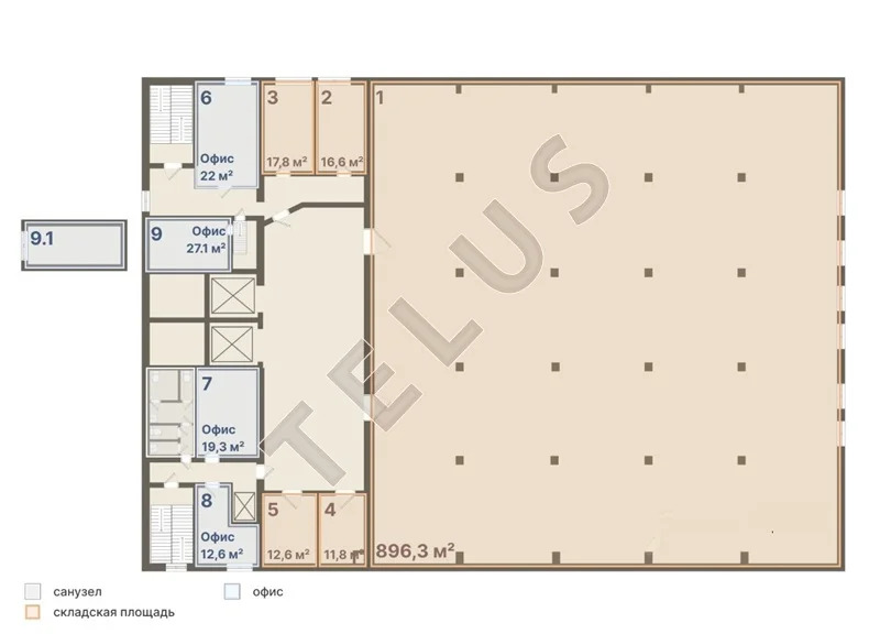
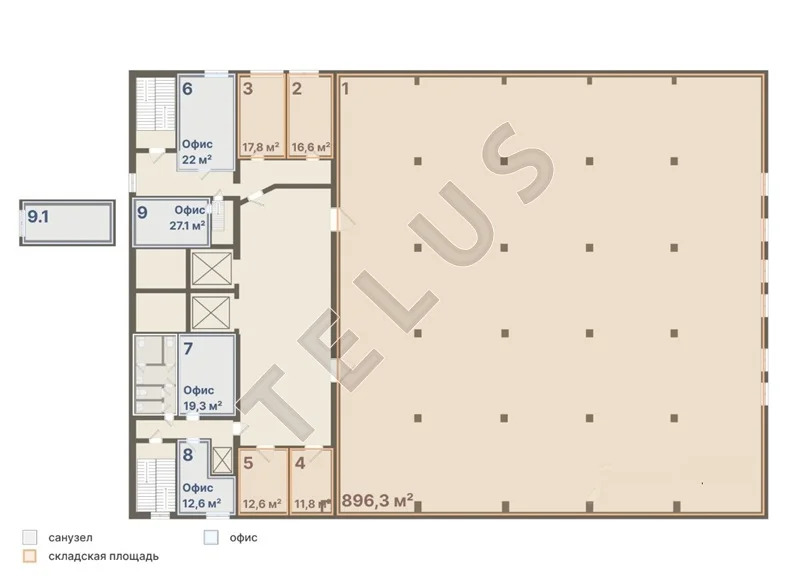
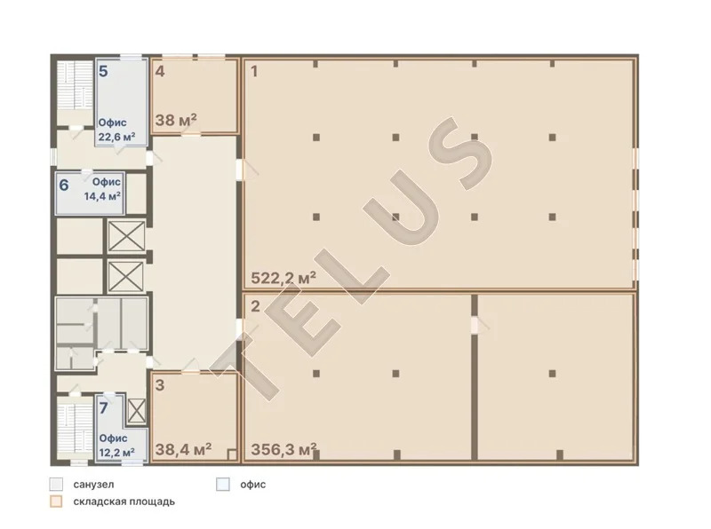
Производственно-складской корпус, общей площадью 5583 м2, расположенный на участке 5819 м2(в собственности).Электрическая мощность 320 кВт с возможностью увеличения(выдано тех разрешение на подключение 1 МВт).Все центральные коммуникации.Само здание состоит из 5 этажей+подвал(1988 год постройки),с нагрузкой на перекрытиях до 1.3 тонн.Железобетонные стены,потолки до 5 метров.Пять зон разгрузки как для легкового,так и для грузового транспорта.Два грузовых лифта с грузоподъемностью до 3.2 тонн каждый.Асфальтированная площадка.Территория огорожена и охраняется.21 км от МКАД по Новоегорьевскому шоссе,7 км от ЦКАД.15 минут от D3 станции Ильинская. Объект №.

Читать полностью

    Для того, чтобы купить склад площадью 5583 кв. метра по адресу: Жуковский, ул. Луч, 6, позвоните по телефону +7 (968) 017-01-24. Торопитесь! Объявление №901102946 о продаже склада площадью 5583 кв. метра опубликовано Вчера.

    Позвонить Написать
    390 000 000 Р4 953 000 $ или 4 243 800
    Агент
    Григорий
    +7 (968) 017-01-24
    Начать чат с агентом
    Похожие предложения
    Продажа склада, Домодедово, Домодедово г. о. - Фото 1
    Продажа склада, Домодедово, Домодедово г. о. - Фото 2
    Продажа склада, Домодедово, Домодедово г. о. - Фото 3
    Продажа склада, Домодедово, Домодедово г. о. - Фото 4
    Продажа склада, Домодедово, Домодедово г. о. - Фото 5
    Продажа склада, Домодедово, Домодедово г. о. - Фото 6
    Продажа склада, Домодедово, Домодедово г. о. - Фото 7
    Продажа склада, Домодедово, Домодедово г. о. - Фото 8
    общая площадь 5544м², полезная площадь 5544м²

    Арт. Предлагается НОВАЯ складская база, с помещениями общей площадью -5 544 м2. Площадь земельного участка -1,2 Га 4 склада. Характеристики: Высота потолков -6м (рабочая); Полы - антипыль Каждый склад оборудован двумя воротами "вноль" Две скважины, два...
    • 5 544 м²
    • 1-й эт.
    380 000 000 Р
    PRO
    +7 (495) Показать номер
    Агентство
    ИП Захарова
    Посмотреть контакты
    МО, Одинцово, Часцы, 7287 м2, Производственно-складской комплекс (ном. ... - Фото 1
    МО, Одинцово, Часцы, 7287 м2, Производственно-складской комплекс (ном. ... - Фото 2
    МО, Одинцово, Часцы, 7287 м2, Производственно-складской комплекс (ном. ... - Фото 3
    МО, Одинцово, Часцы, 7287 м2, Производственно-складской комплекс (ном. ... - Фото 4
    МО, Одинцово, Часцы, 7287 м2, Производственно-складской комплекс (ном. ... - Фото 5
    МО, Одинцово, Часцы, 7287 м2, Производственно-складской комплекс (ном. ... - Фото 6
    МО, Одинцово, Часцы, 7287 м2, Производственно-складской комплекс (ном. ... - Фото 7
    МО, Одинцово, Часцы, 7287 м2, Производственно-складской комплекс (ном. ... - Фото 8
    МО, Одинцово, Часцы, 7287 м2, Производственно-складской комплекс (ном. ... - Фото 9
    МО, Одинцово, Часцы, 7287 м2, Производственно-складской комплекс (ном. ... - Фото 10
    МО, Одинцово, Часцы, 7287 м2, Производственно-складской комплекс (ном. ... - Фото 11
    МО, Одинцово, Часцы, 7287 м2, Производственно-складской комплекс (ном. ... - Фото 12
    МО, Одинцово, Часцы, 7287 м2, Производственно-складской комплекс (ном. ... - Фото 13
    общая площадь 7288м², полезная площадь 7288м²

    Производственно-складской комплекс площадью 7300 масположен на земельном участке 1,3 га. ВРИ участка: под производство, склад. Инженерные коммуникации: канализация - центральная, вода-скважина, отопление дизельное в складской части, в офисной - электрическое,...
    • 7 288 м²
    399 600 000 Р
    Агент
    +7 (965) Показать номер
    Агентство
    Телус
    Посмотреть контакты
    МО, Домодедово, мкр Барыбино, 5500 м2, Склад (ном. объекта: 8111) - Фото 1
    МО, Домодедово, мкр Барыбино, 5500 м2, Склад (ном. объекта: 8111) - Фото 2
    МО, Домодедово, мкр Барыбино, 5500 м2, Склад (ном. объекта: 8111) - Фото 3
    МО, Домодедово, мкр Барыбино, 5500 м2, Склад (ном. объекта: 8111) - Фото 4
    МО, Домодедово, мкр Барыбино, 5500 м2, Склад (ном. объекта: 8111) - Фото 5
    МО, Домодедово, мкр Барыбино, 5500 м2, Склад (ном. объекта: 8111) - Фото 6
    МО, Домодедово, мкр Барыбино, 5500 м2, Склад (ном. объекта: 8111) - Фото 7
    МО, Домодедово, мкр Барыбино, 5500 м2, Склад (ном. объекта: 8111) - Фото 8
    МО, Домодедово, мкр Барыбино, 5500 м2, Склад (ном. объекта: 8111) - Фото 9
    МО, Домодедово, мкр Барыбино, 5500 м2, Склад (ном. объекта: 8111) - Фото 10
    общая площадь 5500м², полезная площадь 5500м²

    Склад 5500 м2 и участок пром назначения 1 га в собственности. Наличие всех коммуникаций, 150 кВт электрической мощности. Сендвич панели, полы-антипыль, потолок 12 метров. Комплекс включает в себя 4 отдельных блока , два по 1300 и два по 1450 м2. Асфальтированная...
    • 5 500 м²
    380 000 000 Р
    Агент
    +7 (968) Показать номер
    Агентство
    Телус
    Посмотреть контакты
    МО, Щелково, территория Транспортная, 3400 м2, Складской комплекс ... - Фото 1
    МО, Щелково, территория Транспортная, 3400 м2, Складской комплекс ... - Фото 2
    МО, Щелково, территория Транспортная, 3400 м2, Складской комплекс ... - Фото 3
    МО, Щелково, территория Транспортная, 3400 м2, Складской комплекс ... - Фото 4
    МО, Щелково, территория Транспортная, 3400 м2, Складской комплекс ... - Фото 5
    МО, Щелково, территория Транспортная, 3400 м2, Складской комплекс ... - Фото 6
    МО, Щелково, территория Транспортная, 3400 м2, Складской комплекс ... - Фото 7
    МО, Щелково, территория Транспортная, 3400 м2, Складской комплекс ... - Фото 8
    МО, Щелково, территория Транспортная, 3400 м2, Складской комплекс ... - Фото 9
    МО, Щелково, территория Транспортная, 3400 м2, Складской комплекс ... - Фото 10
    МО, Щелково, территория Транспортная, 3400 м2, Складской комплекс ... - Фото 11
    МО, Щелково, территория Транспортная, 3400 м2, Складской комплекс ... - Фото 12
    МО, Щелково, территория Транспортная, 3400 м2, Складской комплекс ... - Фото 13
    МО, Щелково, территория Транспортная, 3400 м2, Складской комплекс ... - Фото 14
    общая площадь 3400м², полезная площадь 3400м²

    Складской комплекс 3400 масположенный на промышленной территории в городе Щелково. Коммуникации все в наличии. Высота потолков 8 метров, стены из сэндвич-панелей. Комплекс состоит из складов площадью 1000 м2,1200 м2,1200 м2. В каждом здании офисное помещение...
    • 3 400 м²
    380 000 000 Р
    Агент
    +7 (968) Показать номер
    Агентство
    Телус
    Посмотреть контакты
    МО, Ленинский г.о., Видное, Андреевское, 3678 м2, Склад (ном. объекта: ... - Фото 1
    МО, Ленинский г.о., Видное, Андреевское, 3678 м2, Склад (ном. объекта: ... - Фото 2
    МО, Ленинский г.о., Видное, Андреевское, 3678 м2, Склад (ном. объекта: ... - Фото 3
    МО, Ленинский г.о., Видное, Андреевское, 3678 м2, Склад (ном. объекта: ... - Фото 4
    МО, Ленинский г.о., Видное, Андреевское, 3678 м2, Склад (ном. объекта: ... - Фото 5
    МО, Ленинский г.о., Видное, Андреевское, 3678 м2, Склад (ном. объекта: ... - Фото 6
    МО, Ленинский г.о., Видное, Андреевское, 3678 м2, Склад (ном. объекта: ... - Фото 7
    МО, Ленинский г.о., Видное, Андреевское, 3678 м2, Склад (ном. объекта: ... - Фото 8
    МО, Ленинский г.о., Видное, Андреевское, 3678 м2, Склад (ном. объекта: ... - Фото 9
    МО, Ленинский г.о., Видное, Андреевское, 3678 м2, Склад (ном. объекта: ... - Фото 10
    МО, Ленинский г.о., Видное, Андреевское, 3678 м2, Склад (ном. объекта: ... - Фото 11
    МО, Ленинский г.о., Видное, Андреевское, 3678 м2, Склад (ном. объекта: ... - Фото 12
    МО, Ленинский г.о., Видное, Андреевское, 3678 м2, Склад (ном. объекта: ... - Фото 13
    МО, Ленинский г.о., Видное, Андреевское, 3678 м2, Склад (ном. объекта: ... - Фото 14
    МО, Ленинский г.о., Видное, Андреевское, 3678 м2, Склад (ном. объекта: ... - Фото 15
    МО, Ленинский г.о., Видное, Андреевское, 3678 м2, Склад (ном. объекта: ... - Фото 16
    МО, Ленинский г.о., Видное, Андреевское, 3678 м2, Склад (ном. объекта: ... - Фото 17
    МО, Ленинский г.о., Видное, Андреевское, 3678 м2, Склад (ном. объекта: ... - Фото 18
    МО, Ленинский г.о., Видное, Андреевское, 3678 м2, Склад (ном. объекта: ... - Фото 19
    общая площадь 3679м², полезная площадь 3679м²

    Производственно-складское здание 3478 масположено на земельном участке 0,9 га в собственности. Здание разделено на пять блоков, из них офисная часть 500 м2, остальное - производственно-складская часть. Высота потолков до 9 метров. Коммуникации: собственная...
    • 3 679 м²
    380 000 000 Р
    Агент
    +7 (926) Показать номер
    Агентство
    Телус
    Посмотреть контакты

    Не нашли подходящего объявления?

    Оставьте заявку, и наши риэлторы подберут склад в районе Жуковского

    (0)