Реализация объекта недвижимости приостановлена

Информация о квартире

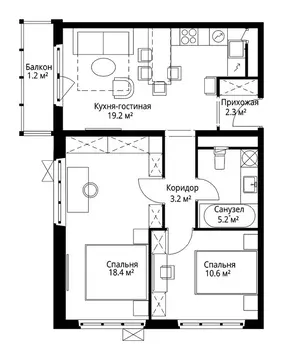
83.0 м2
Площадь
31.0 м2
Кухня
3
Комнаты
1
Этаж
19
Этажность

Дополнительная информация

Тип дома
монолит
Развернуть

Квартира, 3 комнаты, 83.2 м

Уникальное предложение . Лесо-парковое место . Продается просторная квартира с дизайнерским ремонтом в монолитном доме 2017 года постройки. Две Изолированные комнаты обеспечивают комфорт и приватность. Кухня площадью 31 м , что позволяет поставить перегородку и будет третья изолированная комната , кухня-гостиная оборудована современной техникой, включая холодильник и посудомоечную машину и два кондиционера Ванная комната выполнена в светлых тонах с качественной сантехникой. В квартире два санузла Квартира расположена на первом этаже, окна выходят во двор, что обеспечивает тишину и уют. Закрытая территория двора с парковкой под землей гарантирует безопасность и удобство. В доме работает консьерж, а также имеется спортивная площадка.Рядом находятся все необходимая инфраструктура Мы гарантируем безопасную сделку и юридическую поддержку нашим Клиентам. Поможем одобрить ипотеку с сниженной ставкой

Читать полностью

    Реализация объекта недвижимости приостановлена

    Не нашли подходящего объявления?

    Оставьте заявку, и наши риэлторы подберут квартиру в районе Жуковского

    (0)