3 037 925 000 Р 39 581 100 $ или 33 648 800

Информация об помещении

24300 м2
Площадь
1
Этаж
a
Класс здания

Состояние и оснащение

Класс здания
a
Количество этажей
1
Развернуть
Агент
Отдел продаж
+7 (495) 085-95-89
Начать чат с агентом

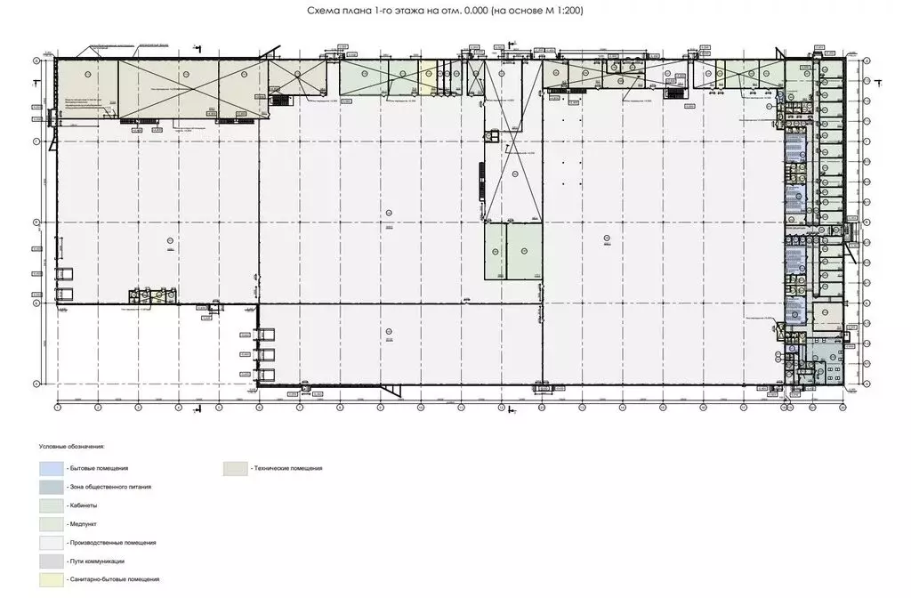
Продаю производство 24300 м2

Объект представляет собой современное одноэтажное производственное здание Класса А общей площадью 24,3 м2 с высокой инженерной оснащённостью и отличной логистикой, расположенное в сформировавшемся промышленно-складском кластере северного направления Москвы.
Максимально быстрый переезд - готовность к запуску 1 квартал 2026 г.
Расположение и логистика
г. Зеленоград (инфраструктура и доступ к квалифицированной рабочей силе)
17 км от МКАД по Ленинградскому шоссе, недалеко от аэропорта Шереметьево
удобный съезд на Фирсановское шоссе, 1,8 км от Ленинградского шоссе
1,8 км до МЦД «Фирсановская»
первая линия Фирсановского шоссе, удобный заезд на участок
Основные характеристики
площадь земельного участка- 4,45 га
эффективная площадь застройки- 48,5%
широкий спектр кодов ВРИ: 6.2, 6.2.1, 6.3, 6.3.1, 6.4, 6.5, 6.6, 6.11
паркинг 20 грузовых, 63 легковых м/м
Конструктивные характеристики объекта
одноэтажное здание, высота потолков - 8 м
эффективный шаг колонн 2412 м
нагрузка на пол до 6 т/м2
бетонный пол с антипылевым покрытием
фасад- трехслойные сэндвич-панели
Инженерная инфраструктура
электрическая мощность до 60 Вт/м2 с возможностью увеличения по запросу Клиента
собственная газовая котельная
теплоснабжение 1,5 Гкал/час
водоснабжение 24,2 м/сутки
класс энергоэффективности А

Читать полностью

    Для того, чтобы купить производственное помещение площадью 24300 кв. метров по адресу: Зеленоград, м. Ховрино, 5500-й проезд, 4/3, позвоните по телефону +7 (495) 085-95-89. Торопитесь! Объявление №901104118 о продаже производственного помещения площадью 24300 кв. метров опубликовано Вчера.

    Позвонить Написать
    3 037 925 000 Р39 581 100 $ или 33 648 800
    Агент
    Отдел продаж
    +7 (495) 085-95-89
    Начать чат с агентом
    Похожие предложения
    Производственное помещение (24300 м) - Фото 1
    Производственное помещение (24300 м) - Фото 2
    Объект представляет собой современное одноэтажное производственное здание Класса А общей площадью 24,3 тыс. м2 с высокой инженерной оснащённостью и отличной логистикой, расположенное в сформировавшемся промышленно-складском кластере северного направления...
    • 1 этаж
    3 037 925 120 Р
    Агент
    +7 (916) Показать номер
    Посмотреть контакты
    ПЛАТИМ АГЕНТАМ. Поможем с планом рассадки, ремонтом, мебелью. Современный индуcтриaльный пapк Aльянс расположен в Виллозском городском поселении, производственной зоны Горелово. Прямой выезд на Волхонское шоссе. До развязки с КАД 6 километров.Налоговая:...
    • 1/2 эт.
    3 000 000 000 Р
    Агент
    +7 (933) Показать номер
    Посмотреть контакты
    ID 29326Более 400 производственных площадок на сайте компании IRES GROUP.Бесплатно подберем производственные площади в любом регионе РФ.Реализуем объекты по ценам собственников. Без комиссии.Продается производственный комплекс общей площадью 30 000 м,...
    • 1/1 эт.
    2 997 000 000 Р
    Агент
    +7 (989) Показать номер
    Посмотреть контакты

    Не нашли подходящего объявления?

    Оставьте заявку, и наши риэлторы подберут производственное помещение в районе Зеленограда

    (0)