280 000 000 Р 3 598 900 $ или 3 085 500

Информация об помещении

1
Этаж

Состояние и оснащение

Количество этажей
1
Развернуть
Агент
+7 (986) 274-27-15
Начать чат с агентом

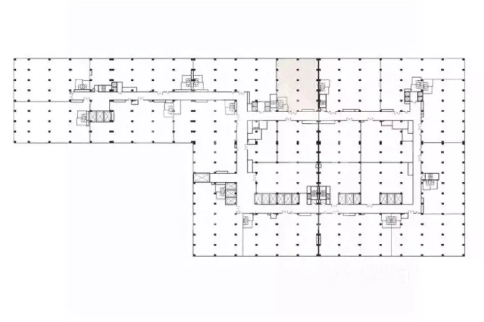
Производственное помещение в Московская область, Солнечногорск ...

Лот 869439 Предложение от Собственника Продаются помещения Light Industrial в 30 км от МКАД. Удобная транспортная доступность: Ленинградское шоссе, трасса М-10, М-11.Современный производственно-складской комплекс, каркас здания железобетонный, стены из трёхслойных сэндвич-панелей 120 мм, ворота Hormann.Рабочая высота 8 м (от чистого пола до металлоконструкций), бетонные полы с антипылевым упрочняющим покрытием, нагрузка 4 т\м2. Возможность установки кран-балки до 5 тонн.Каждый блок оснащен: электричеством, связью, отоплением, водой, канализацией, индивидуальными приборами учета. Автоматическая адресная пожарная сигнализация, противопожарная система.Офисные помещения с отделкой в стиле Loft, планировка свободная. Оборудованные парковочные места, круглосуточный доступ, комплексная эксплуатация объектов, охраняемая территория.Актуальные площади и цены (м2):2000 м2 (1 эт.) -.Чтобы получить ПОДРОБНУЮ ПРЕЗЕНТАЦИЮ С ПЛАНИРОВКОЙ И ФОТОГРАФИЯМИ, звоните или отправьте свой email и номер телефона в сообщении на портале. Высылаем в течение 15 минут по запросу Конт. лицо: Андрей Валерьевич, доб. 253, ЛОТ 869439

Читать полностью
    Позвонить Написать
    280 000 000 Р3 598 900 $ или 3 085 500
    Агент
    +7 (986) 274-27-15
    Начать чат с агентом
    Похожие предложения
    Производственное помещение в Московская область, Солнечногорск ... - Фото 1
    Производственное помещение в Московская область, Солнечногорск ... - Фото 2
    Уникальный номер помещения.Строительство современного производственно-складского комплекса класса А формата light industrialУдобное расположение: 41 км. до МКАД.Добавьте объявление в избранное, чтобы не упустить выгодное предложение Потолок 8 м.Ровный...
    • 1/1 эт.
    271 810 125 Р
    Агент
    +7 (980) Показать номер
    Посмотреть контакты
    Производственное помещение в Москва с. Ознобишино, 195 (2007 м) - Фото 1
    Производственное помещение в Москва с. Ознобишино, 195 (2007 м) - Фото 2
    1006736. Эксклюзивное предложение Складской блок в производственно-складском торговом комплексе формата Light industrial в Новой Москве. Первая линия Варшавского шоссе. 23 км от МКАД, 2 км до ЦКАД. 13 км до Калужского шоссе, 15 км до М-2. 10 км до МЦД-2...
    • 1/1 эт.
    285 663 000 Р
    Агент
    +7 (938) Показать номер
    Посмотреть контакты
    Производственное помещение в Москва ул. Свободы, 35С50 (1500 м) - Фото 1
    Производственное помещение в Москва ул. Свободы, 35С50 (1500 м) - Фото 2
    1107769. Предлагается складское помещение общей площадью 1 500 кв. м. в БЦ Level work Свободы в СЗАО. 1 этаж.Преимущества:Удобный выезд на Волоколамское шоссе.5 км от МКАД. 5 минут езды до станций метро Сходненская , Тушинская .Готовность - 2028 год.Типовой...
    • 1/8 эт.
    280 500 000 Р
    Агент
    +7 (938) Показать номер
    Посмотреть контакты
    Производственное помещение в Москва ул. Свободы, 35С50 (1500 м) - Фото 1
    Производственное помещение в Москва ул. Свободы, 35С50 (1500 м) - Фото 2
    1107769-wi . Предлагается складское помещение общей площадью 1 500 кв. м. в БЦ Level work Свободы в СЗАО. 1 этаж.Преимущества:Удобный выезд на Волоколамское шоссе.5 км от МКАД. 5 минут езды до станций метро Сходненская , Тушинская .Готовность - 2028...
    • 1/8 эт.
    280 500 000 Р
    Агент
    +7 (938) Показать номер
    Посмотреть контакты
    Производственное помещение в Москва с. Ознобишино, 195 (2007 м) - Фото 1
    Производственное помещение в Москва с. Ознобишино, 195 (2007 м) - Фото 2
    1006736-wi . Эксклюзивное предложение Складской блок в производственно-складском торговом комплексе формата Light industrial в Новой Москве. Первая линия Варшавского шоссе. 23 км от МКАД, 2 км до ЦКАД. 13 км до Калужского шоссе, 15 км до М-2. 10 км до...
    • 1/1 эт.
    285 663 000 Р
    Агент
    +7 (938) Показать номер
    Посмотреть контакты

    Не нашли подходящего объявления?

    Оставьте заявку, и наши риэлторы подберут производственное помещение в районе Зеленограда

    (0)