1 767 325 000 Р 22 029 500 $ или 19 213 200

Информация об помещении

1
Этаж

Состояние и оснащение

Количество этажей
1
Развернуть
Агент
+7 (933) 786-94-18
Начать чат с агентом

Производственное помещение в Московская область, Солнечногорск ...

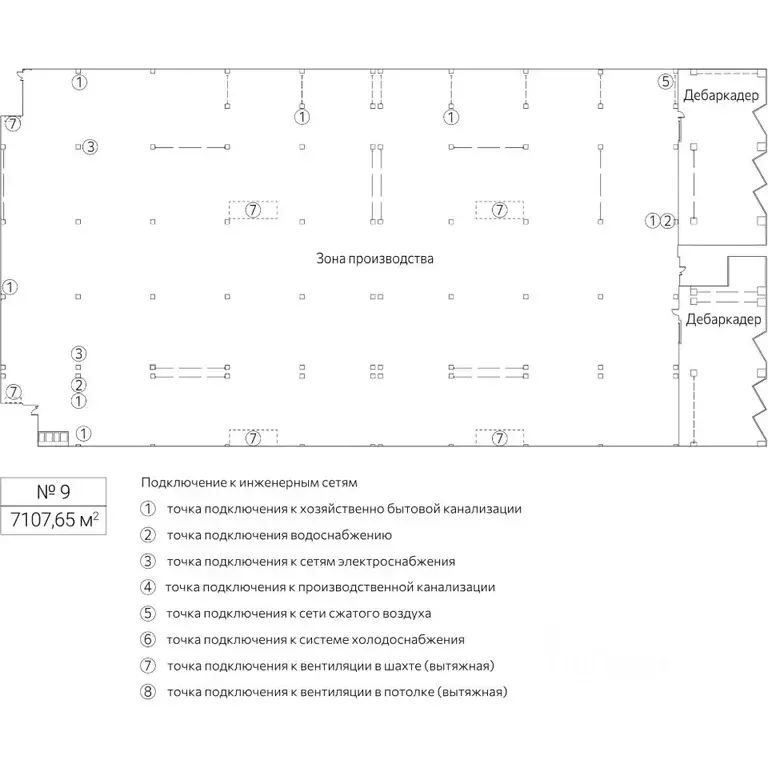
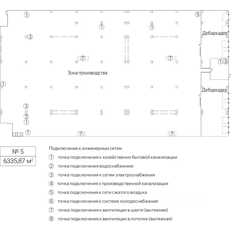
Цифровой промышленный комплекс Industrial City - высококачественные производственно-складские помещения. Пятая очередь станет самым крупным комплексом в Есипово. Локация парка создает идеальную промышленную среду.Налоговая: 44. Лифты: Нет. Вентиляция: Приточно-вытяжная. Кондиционирование: Центральное. Безопасность: Круглосуточный доступ, Круглосуточная охрана, Система пожаротушений, Видеонаблюдение. Парковка: Наземная. Описание помещения: Корпус B - 5049,5 м2 из двух боксов Готовность - 4 кв. 2026г. Мощность электроснабжения - 25 кВтПланировка: открытая. Типовой ремонт. Высокие потолки. Тип налогообложения: С НДС. Лот

Читать полностью
    Позвонить Написать
    1 767 325 000 Р22 029 500 $ или 19 213 200
    Агент
    +7 (933) 786-94-18
    Начать чат с агентом
    Похожие предложения
    Производственное помещение в Московская область, Солнечногорск ... - Фото 1
    Производственное помещение в Московская область, Солнечногорск ... - Фото 2
    Уникальный номер помещения.Строительство современного производственно-складского комплекса класса А формата light industrialУдобное расположение: 41 км. до МКАД.Добавьте объявление в избранное, чтобы не упустить выгодное предложение Потолок 8 м.Ровный...
    • 1/1 эт.
    1 789 874 200 Р
    Агент
    +7 (980) Показать номер
    Посмотреть контакты
    Производственное помещение в Москва ул. Свободы, 35С50 (10000 м) - Фото 1
    Производственное помещение в Москва ул. Свободы, 35С50 (10000 м) - Фото 2
    1107771. Предлагается складское помещение общей площадью 10 000 кв. м. в БЦ Level work Свободы в СЗАО. 1-8 этаж.Преимущества:Удобный выезд на Волоколамское шоссе.5 км от МКАД. 5 минут езды до станций метро Сходненская , Тушинская .Готовность - 2028...
    • 1/8 эт.
    1 870 000 000 Р
    Агент
    +7 (938) Показать номер
    Посмотреть контакты
    Производственное помещение в Москва ул. Свободы, 35С50 (10000 м) - Фото 1
    Производственное помещение в Москва ул. Свободы, 35С50 (10000 м) - Фото 2
    1107771. Предлагается складское помещение общей площадью 10 000 кв. м. в БЦ Level work Свободы в СЗАО. 1-8 этаж.Преимущества:Удобный выезд на Волоколамское шоссе.5 км от МКАД. 5 минут езды до станций метро Сходненская , Тушинская .Готовность - 2028...
    • 1/8 эт.
    1 870 000 000 Р
    Агент
    +7 (938) Показать номер
    Посмотреть контакты
    Производственное помещение в Москва ул. Свободы, 35С50 (10000 м) - Фото 1
    Производственное помещение в Москва ул. Свободы, 35С50 (10000 м) - Фото 2
    1107771. Предлагается складское помещение общей площадью 10 000 кв. м. в БЦ Level work Свободы в СЗАО. 1-8 этаж.Преимущества:Удобный выезд на Волоколамское шоссе.5 км от МКАД. 5 минут езды до станций метро Сходненская , Тушинская .Готовность - 2028...
    • 1/8 эт.
    1 870 000 000 Р
    Агент
    +7 (938) Показать номер
    Посмотреть контакты
    Продажа производственного помещения, Балашиха, Балашиха г. о., ... - Фото 1
    Продажа производственного помещения, Балашиха, Балашиха г. о., ... - Фото 2
    Продажа производственного помещения, Балашиха, Балашиха г. о., ... - Фото 3
    Продажа производственного помещения, Балашиха, Балашиха г. о., ... - Фото 4
    Продажа производственного помещения, Балашиха, Балашиха г. о., ... - Фото 5
    Продажа производственного помещения, Балашиха, Балашиха г. о., ... - Фото 6
    Продажа производственного помещения, Балашиха, Балашиха г. о., ... - Фото 7
    Продажа производственного помещения, Балашиха, Балашиха г. о., ... - Фото 8
    Продажа производственного помещения, Балашиха, Балашиха г. о., ... - Фото 9
    Продажа производственного помещения, Балашиха, Балашиха г. о., ... - Фото 10
    Продажа производственного помещения, Балашиха, Балашиха г. о., ... - Фото 11
    Продажа производственного помещения, Балашиха, Балашиха г. о., ... - Фото 12
    Продажа производственного помещения, Балашиха, Балашиха г. о., ... - Фото 13
    Продажа производственного помещения, Балашиха, Балашиха г. о., ... - Фото 14
    Продажа производственного помещения, Балашиха, Балашиха г. о., ... - Фото 15
    Продажа производственного помещения, Балашиха, Балашиха г. о., ... - Фото 16
    Продажа производственного помещения, Балашиха, Балашиха г. о., ... - Фото 17
    Продажа производственного помещения, Балашиха, Балашиха г. о., ... - Фото 18
    Продажа производственного помещения, Балашиха, Балашиха г. о., ... - Фото 19
    Продажа производственного помещения, Балашиха, Балашиха г. о., ... - Фото 20
    общая площадь 10000м², полезная площадь 10000м²

    Арт. Предлагается к продаже производственно-складской комплекс, расположенный на земельном участке общей площадью – 36225 кв.м, с постройками и действующими арендаторами, приносящими арендный доход. Территория огорожена, охраняется, проезд осуществляется...
    • 10 000 м²
    • 1-й эт.
    1 850 000 000 Р
    PRO
    +7 (495) Показать номер
    Агентство
    ИП Захарова
    Посмотреть контакты

    Не нашли подходящего объявления?

    Оставьте заявку, и наши риэлторы подберут производственное помещение в районе Зеленограда

    (0)