9 710 604 Р 119 600 $ или 103 500

Информация о квартире

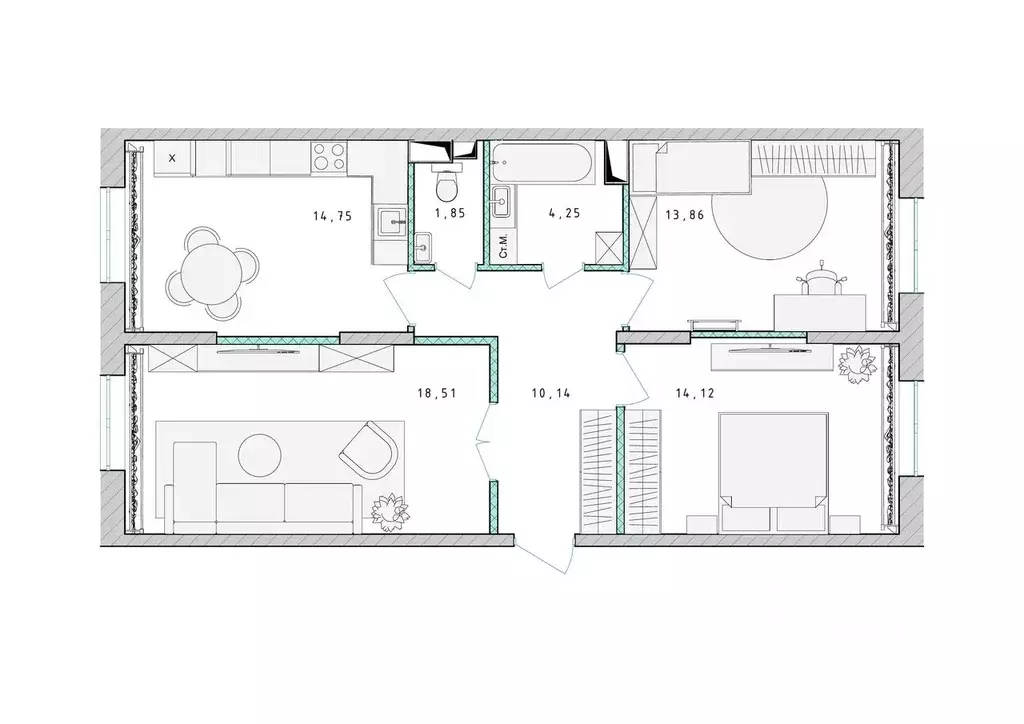
77 м2
Площадь
3
Комнаты
3
Этаж
17
Этажность

Дополнительная информация

Тип дома
монолит
Развернуть
Агент
+7 (495) 138-70-16
Начать чат с агентом

3-к кв. Московская область, Пушкино Ярославское ш., 194 (77.4 м)

Продаётся 3-комнатная квартира в сданном доме (Корпус 1), срок сдачи: 4-кв. 2023, общей площадью 77.40 кв.м., на 3 этаже. Этот современный жилой комплекс сочетает в себе комфорт, природу и близость к городской инфраструктуре. ЖК Серебро - готовые квартиры без отделки в 15 минутах от МКАД.Главные плюсы проекта - удобное расположение, разнообразные планировки и особенный подход к благоустройству. Рядом с домами есть детские площадки, workout зоны и прогулочные аллеи.Расположенный вблизи Ярославского шоссе и окруженный природными красотами, ЖК Серебро идеально подходит для тех, кто ценит гармонию между городской жизнью и спокойствием природы. Находится на пересечении Ярославского и Красноармейского шоссе, с удобными выездами для ежедневных поездок как на автомобиле, так и на общественном транспорте или каршеринге.На территории ЖК есть все для комфортной жизни. На первых этажах - коммерция, которая позволит покупать продукты или необходимые товары для дома, не покидая жилой комплекс. Около первого корпуса есть большой плоскостной паркинг, где удобно оставить автомобиль жильцам и гостям комплекса. Во дворах - места для игр, прогулок и отдыха. Для детей на территории проекта много безопасных детский площадок.ЖК Сереброасположен вблизи берега реки Серебрянка и окружён зелёными зонами. Вы сможете наслаждаться прогулками по набережной, отдыхом в Дендропарке, расположенном в 10 минутах от ЖК площадью 13 Га.ЖК Серебро окружен всеми необходимыми объектами городской инфраструктуры, рядом с домами расположены торговые и развлекательные центры, образовательные учреждения и медицинские клиники.

Читать полностью
    Позвонить Написать
    9 710 604 Р119 600 $ или 103 500
    Агент
    +7 (495) 138-70-16
    Начать чат с агентом
    Похожие предложения
    3-к кв. Московская область, Пушкино Ярославское ш., 194 (86.9 м) - Фото 1
    3-к кв. Московская область, Пушкино Ярославское ш., 194 (86.9 м) - Фото 2
    3-комнатная квартира, общая площадь 86м², кухня 21м²

    Продаётся 3-комнатная квартира в сданном доме (Корпус 1), срок сдачи: 4-кв. 2023, общей площадью 86.90 кв.м., на 5 этаже. Этот современный жилой комплекс сочетает в себе комфорт, природу и близость к городской инфраструктуре. ЖК Серебро...
    • 86 м²
    • 3-ком
    • 5/17 эт.
    • монолит
    9 782 298 Р
    Агент
    +7 (495) Показать номер
    Посмотреть контакты
    1-к кв. Московская область, Пушкино Надсоновский туп. (51.3 м) - Фото 1
    1-к кв. Московская область, Пушкино Надсоновский туп. (51.3 м) - Фото 2
    1-комнатная квартира, общая площадь 51м²

    Продаётся 1-комнатная квартира в строящемся доме (Корпус 1), срок сдачи: I-кв. 2027, общей площадью 51.3 кв.м., на 22 этаже. Новый жилой комплекс Триумф от застройщика Корпорация ВИТасположен по адресу: Россия, Московская область, Пушкино, Надсоновская...
    • 51 м²
    • 1-ком
    • 22/23 эт.
    9 644 400 Р
    Агент
    +7 (958) Показать номер
    Посмотреть контакты
    2-к кв. Московская область, Пушкино Пушкино Град жилой комплекс, к2 ... - Фото 1
    2-к кв. Московская область, Пушкино Пушкино Град жилой комплекс, к2 ... - Фото 2
    2-комнатная квартира, общая площадь 52м²

    Прямая продажа от застройщика Продается 2 комнатная квартира площадью 52.3 кв. м. на 6 этаже 17 этажного дома, 4 подъезд, номер 526. Чтобы забронировать, звоните в отдел продаж прямо сейчас Пушкино Град — жилой квартал в 20 минутах от Москвы. Расположен...
    • 52 м²
    • 2-ком
    • 6/17 эт.
    9 780 100 Р
    Агент
    +7 (923) Показать номер
    Посмотреть контакты
    2-к кв. Московская область, Пушкино Пушкино Град жилой комплекс, к3 ... - Фото 1
    2-к кв. Московская область, Пушкино Пушкино Град жилой комплекс, к3 ... - Фото 2
    2-комнатная квартира, общая площадь 49м², жилая 33м², кухня 5м²

    Прямая продажа от застройщика Продается 2 комнатная квартира площадью 49.6 кв. м. на 6 этаже 17 этажного дома, 1 подъезд, номер 51. Чтобы забронировать, звоните в отдел продаж прямо сейчас Пушкино Град — жилой квартал в 20 минутах от Москвы. Расположен...
    • 49 м²
    • 2-ком
    • 6/17 эт.
    9 672 000 Р
    Агент
    +7 (923) Показать номер
    Посмотреть контакты
    2-комнатная квартира: Пушкино, ЖК Пушкино Град (54.3 м) - Фото 1
    2-комнатная квартира: Пушкино, ЖК Пушкино Град (54.3 м) - Фото 2
    2-комнатная квартира, общая площадь 54м², жилая 36м², кухня 5м²

    Продается 2 комнатная квартира площадью 54.3 кв. м. на 3 этаже 17 этажного дома, 1 подъезд, номер 17.Для более подробного ознакомления вы можете обратиться в отдел продаж. «Пушкино Град — жилой квартал в 20 минутах от Москвы. Расположен в г. Пушкино...
    • 54 м²
    • 2-ком
    • 3/17 эт.
    9 774 000 Р
    Агент
    +7 (985) Показать номер
    Посмотреть контакты

    Не нашли подходящего объявления?

    Оставьте заявку, и наши риэлторы подберут квартиру в новостройке в районе Пушкино

    (0)