Реализация объекта недвижимости приостановлена

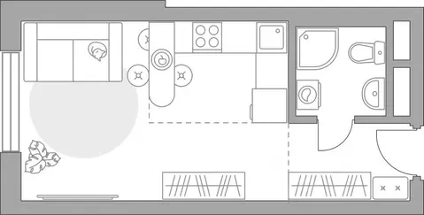
Информация о квартире

30.0 м2
Площадь
5.0 м2
Кухня
студия
Комнат
5
Этаж
17
Этажность

Дополнительная информация

Тип дома
монолит
Развернуть

Студия Московская область, Пушкино Ярославское ш., 194 (30.4 м)

Продаётся студия в сданном доме (Корпус 1), срок сдачи: 4-кв. 2023, общей площадью 30.40 кв.м., на 5 этаже. Этот современный жилой комплекс сочетает в себе комфорт, природу и близость к городской инфраструктуре. ЖК Серебро - готовые квартиры без отделки в 15 минутах от МКАД.Главные плюсы проекта - удобное расположение, разнообразные планировки и особенный подход к благоустройству. Рядом с домами есть детские площадки, workout зоны и прогулочные аллеи.Расположенный вблизи Ярославского шоссе и окруженный природными красотами, ЖК Серебро идеально подходит для тех, кто ценит гармонию между городской жизнью и спокойствием природы. Находится на пересечении Ярославского и Красноармейского шоссе, с удобными выездами для ежедневных поездок как на автомобиле, так и на общественном транспорте или каршеринге.На территории ЖК есть все для комфортной жизни. На первых этажах - коммерция, которая позволит покупать продукты или необходимые товары для дома, не покидая жилой комплекс. Около первого корпуса есть большой плоскостной паркинг, где удобно оставить автомобиль жильцам и гостям комплекса. Во дворах - места для игр, прогулок и отдыха. Для детей на территории проекта много безопасных детский площадок.ЖК Сереброасположен вблизи берега реки Серебрянка и окружён зелёными зонами. Вы сможете наслаждаться прогулками по набережной, отдыхом в Дендропарке, расположенном в 10 минутах от ЖК площадью 13 Га.ЖК Серебро окружен всеми необходимыми объектами городской инфраструктуры, рядом с домами расположены торговые и развлекательные центры, образовательные учреждения и медицинские клиники.

Читать полностью

    Реализация объекта недвижимости приостановлена

    Не нашли подходящего объявления?

    Оставьте заявку, и наши риэлторы подберут квартиру в новостройке в районе Пушкино

    (0)