Реализация объекта недвижимости приостановлена

Информация о квартире

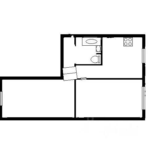
44.0 м2
Площадь
6.0 м2
Кухня
2
Комнаты
1
Этаж
2
Этажность

Дополнительная информация

Тип дома
панельный
Развернуть

2-к кв. Московская область, Воскресенск городской округ, д. Чемодурово ...

Двухкомнатная квартира площадью 44,6 кв.м расположена в кирпичном доме. Объект находится в отличном состоянии после капитального ремонта с использованием качественных материалов: выполнена чистовая отделка, установлены металлопластиковые стеклопакеты, новые межкомнатные двери и современная сантехника. Планировка изолированная: две раздельные комнаты площадью 18 и 14 кв.м, просторная кухня 6 кв.м, совмещенный санузел с современной отделкой. В квартире отсутствуют перепланировки, что обеспечивает юридическую чистоту и простоту сделки. Жилье полностью готово к заселению, что позволяет сэкономить время и ресурсы на ремонте. Расположение объекта является его ключевым преимуществом: в пешей доступности находятся остановка общественного транспорта, супермаркет Пятерочка , пункты выдачи заказов OZON и Wildberries, а также детский сад, школа и поликлиника. Развитая инфраструктура района включает ветеринарную клинику, дом культуры и спортивный комплекс. Для автомобилистов предусмотрена просторная бесплатная парковка и удобный выезд на трассу, что особенно ценно для ежедневных поездок. Пешее расстояние до платформы Трофимово составляет 25 минут, на общественном транспорте до центра города можно добраться за 7-10 минут. Близость лесного массива создает возможности для активного отдыха и прогулок на свежем воздухе. Объект представляет собой практичное решение для постоянного проживания благодаря удачному сочетанию транспортной доступности, развитой социальной инфраструктуры и качественного ремонта. Квартира подходит как для молодых семей, так и для инвестиционных целей. Код пользователя: 187048Номер в базе: 9749368

Читать полностью

    Реализация объекта недвижимости приостановлена

    Не нашли подходящего объявления?

    Оставьте заявку, и наши риэлторы подберут квартиру в районе Чемодурово

    (0)