5 550 000 Р 71 660 $ или 60 670

Информация о квартире

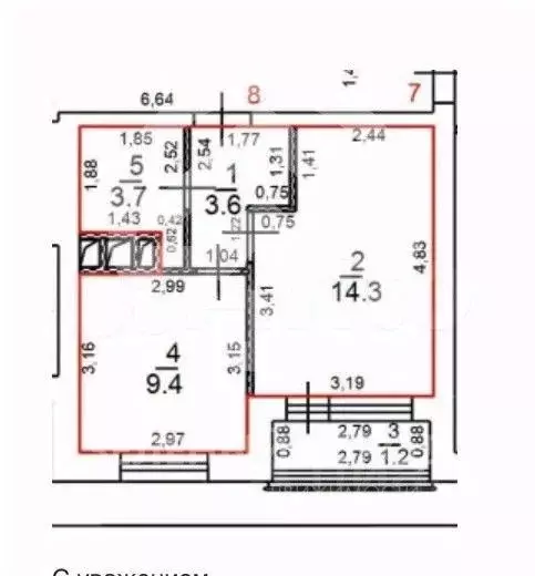
75 м2
Площадь
9 м2
Кухня
3
Комнаты
5
Этаж
5
Этажность

Дополнительная информация

Тип дома
панельный
Развернуть
Агент
+7 (981) 366-37-59
Начать чат с агентом

3-к кв. Московская область, Воскресенск Рабочая ул., 110 (75.0 м)

Продаётся просторная 3-комнатная квартира с отличной планировкой у Ж/Д станции.Ключевые преимущества: Общая площадь: 79.8 кв.м. включая лоджии ; 3 изолированные комнаты; 3 застеклённые лоджии (что значительно увеличивает полезное пространство и сохраняют тепло); Санузел раздел, что очень удобно для большой семьи; Готова к проживанию: сделан хороший ремонт Вы можете заехать и сразу жить; Мебель и техника остается новым владельцам. О локации:Квартира расположена в развитом и спокойном районе с собственной инфраструктурой. Во дворе есть: Детский сад и школа в шаговой доступности; Сетевые магазины для повседневных покупок; Благоустроенная детская площадка и парковка; Всего 5-7 минут пешком до Ж/Д станции, что обеспечивает отличную транспортную доступность в любую точку города.Идеальный вариант для семьи с детьми Звоните в любое время. Код пользователя: 192901Номер в базе: 9832887

Читать полностью

    Для того, чтобы купить трехкомнатную квартиру по адресу: Воскресенск, ул. Рабочая, 110, позвоните по телефону +7 (981) 366-37-59. Торопитесь! Объявление №30092682615 о продаже трехкомнатной квартиры опубликовано 27 декабря 2025.

    Позвонить Написать
    5 550 000 Р71 660 $ или 60 670
    Агент
    +7 (981) 366-37-59
    Начать чат с агентом
    Похожие предложения
    2-к кв. Московская область, Воскресенск Центральный мкр, ул. ... - Фото 1
    2-к кв. Московская область, Воскресенск Центральный мкр, ул. ... - Фото 2
    2-комнатная квартира, общая площадь 45м², кухня 7м²

    За объект уже внесли авансЦентр города, квартира в кирпичном доме, двухкомнатная с ремонтом. Рядом Парк Усадьба Кривякино, пешеходный мост, Докторовское озеро, набережная Москва реки.Собственников двое, совершеннолетние. Наследство по закону. Продажа...
    • 45 м²
    • 2-ком
    • 1/9 эт.
    • кирпичный
    5 599 999 Р
    Агент
    +7 (986) Показать номер
    Посмотреть контакты
    2-к кв. Московская область, Воскресенский район, Белоозерский пгт ул. ... - Фото 1
    2-к кв. Московская область, Воскресенский район, Белоозерский пгт ул. ... - Фото 2
    2-комнатная квартира, общая площадь 43м², кухня 9м²

    Продается замечательная 2-комнатная квартира в пгт. Белоозерский уют, природа и удобство Расположена в линейке тихом и уютном доме. Всего 5 минут пешком до железнодорожной станции, что удобно для ежедневных поездок. Прямая ветка, Казанское направление....
    • 43 м²
    • 2-ком
    • 6/9 эт.
    • кирпичный
    5 600 000 Р
    Агент
    +7 (919) Показать номер
    Посмотреть контакты
    Продается 2-комнатная квартира - Фото 1
    Продается 2-комнатная квартира - Фото 2
    2-комнатная квартира, общая площадь 49м², жилая 31м², кухня 6м²

    Арт.Просторная двушка с изолированными комнатами ждет именно вас Средний этаж, балкон, тихий район, спокойные соседи Рядом садик и школа, детская площадка, магазины и зона отдыха на берегу реки Это выгодное предложение по заманчивой цене . Приходи...
    • 49 м²
    • 2-ком
    • 3/5 эт.
    5 700 000 Р
    Агент
    +7 (993) Показать номер
    Посмотреть контакты
    Продажа квартиры, Пушкино, Воскресенский район, улица Просвещения - Фото 1
    Продажа квартиры, Пушкино, Воскресенский район, улица Просвещения - Фото 2
    Продажа квартиры, Пушкино, Воскресенский район, улица Просвещения - Фото 3
    Продажа квартиры, Пушкино, Воскресенский район, улица Просвещения - Фото 4
    Продажа квартиры, Пушкино, Воскресенский район, улица Просвещения - Фото 5
    Продажа квартиры, Пушкино, Воскресенский район, улица Просвещения - Фото 6
    Продажа квартиры, Пушкино, Воскресенский район, улица Просвещения - Фото 7
    Продажа квартиры, Пушкино, Воскресенский район, улица Просвещения - Фото 8
    Продажа квартиры, Пушкино, Воскресенский район, улица Просвещения - Фото 9
    1-комнатная квартира, общая площадь 29.6м², жилая 16м², кухня 8м²

    Код объекта: 1764308.Вашему вниманию предлагается отличная 1-комнатная квартира в городе Пушкино по адресу: улица Просвещения, 9. Квартира расположена на первом этаже 17-этажного кирпичного дома, построенного в 2015 году. Здесь вас порадуют высокие потолки...
    • 29.6 м²
    • 1-ком
    • 1/17 эт.
    • кирпичный
    5 500 000 Р
    Агент
    +7 (925) Показать номер
    Агентство
    ТСН Владис
    Посмотреть контакты
    1-к кв. Московская область, Красногорск городской округ, Сабурово пгт ... - Фото 1
    1-к кв. Московская область, Красногорск городской округ, Сабурово пгт ... - Фото 2
    1-комнатная квартира, общая площадь 33м², жилая 14м², кухня 9м²

    57661. Продается однокомнатная квартира в Московская обл., г.о. Красногорск, д. Сабурово, Луговая ул., 13Стоимость — Квартира без отделки плoщадью 33.4 квадратных мeтpа на втopoм этaжe кирпичного дома, планировка квартиры включает одну комнату, кухню...
    • 33 м²
    • 1-ком
    • 2/5 эт.
    5 500 000 Р
    Агент
    +7 (933) Показать номер
    Посмотреть контакты

    Не нашли подходящего объявления?

    Оставьте заявку, и наши риэлторы подберут квартиру в районе Воскресенска

    (0)